BAM Living

Kiadó téglalakás, albérlet
Kecskemét, 1. emelet

+ 4 kép 1/7
200 000 Ft200 E Ft / hó 2 985 Ft/m2
2 szoba
67 m2
1. emelet
építés éve:1972

Részletes adatok

Állapot: Felújított
Fűtés: Távfűtés
Extrák: Lift
Energetikai besorolás: Nem adta meg a hirdető

Az OTP Bank lakáshitel ajánlataFizetett hirdetés

Hitelösszeg 10 millió Ft
Futamidő 20 év
Induló törlesztőrészlet 67 508 Ft
Törlesztőrészlet a 13. hónaptól 86 071 Ft
THM 8,6 %

A tájékoztatás nem teljes körű és nem minősül ajánlattételnek. Az OTP Évnyerő Lakáshitelei 1 éves türelmi idős kölcsönök, amellyel az első 12 hónapban alacsonyabb a havi törlesztőrészlet. A tőke törlesztését a 13. hónaptól kell megkezdeni.

    Részletes kalkuláció
    +36 30 616
    Zombori Mátyás
    STOP Ingatlan

    Érdekel az OTP Bank kedvezményes lakáshitel ajánlata? *

    * A kérdésre „Igen” válasz bejelölése esetén, az „Üzenet küldése” gombra kattintva kijelentem, hogy az OTP Bank Nyrt. Adatkezelési tájékoztatójának tartalmát megismertem és tudomásul vettem.

    Kiadó téglalakás, albérlet leírása

    Otthonok és Megoldások!

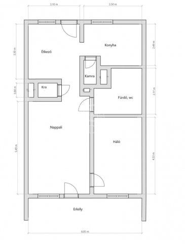
    Kecskemét belvárosában, egy főtérre néző igényes lakás hosszú távra kiadó. A Kossuth tér 6-7. sz. épület I. emeletén elhelyezkedő 2 szobás lakás, konyhával, étkezővel, fürdővel és kamrával rendelkezik, melynek alapterülete 67 nm. A lakáshoz tartozik egy 7 nm nagyságú erkély is, amelyről egyedi panoráma nyílik a város főterére. Az ingatlan a közelmúltban teljes felújításra került. Műanyag hőszigetelt nyílászárók, gépesített konyha, klíma stb.

    A bérbe adó LAKÁS JELLEMZŐI:
    - azonnal költözhető,
    - teljesen bútorozott,
    - beépített konyha gépesített,
    - klimatizált,
    - műanyag nyílászárók, redőnnyel, szúnyoghálóval,
    - fürdőszoba káddal és zuhanykabinnal,
    - távhő, egyedi méréssel
    - tv-és internet bekötés,
    - alacsony rezsiköltség, egyéni mérőkkel. ...TOVÁBBI, TÖBBEZRES INGATLAN KÍNÁLAT: www.gdn-ingatlan.hu - GDN azonosító: 390558

    Hirdetés feltöltve: 2025. 12. 10. Utoljára módosítva: 2025. 12. 10.

    2 szobás téglalakások ára Kecskeméten

    Ebből az összehasonlításból megtudhatod, hogyan viszonyul a lakás ára a környékbeli téglalakások átlagos árához. Ez nem azt jelenti, hogy ennyivel olcsóbb vagy drágább, mint amennyit a lakás ér, hanem hogy ennyivel tér el a környékbeli átlagtól.

    Ennek a m² ára
    Kecskemét m² ár
    3 e Ft
    4 e Ft 19%
    Ennek az ára
    Kecskemét átlagár
    200 E Ft / hó m Ft
    0.3 m Ft 29%

    Az ingatlan elhelyezkedése

    Cím: Kecskemét, 1. emelet

    Kiadó téglalakások, albérletek a környékről

    Kiadó téglalakás, albérlet
    Kiadó téglalakás, albérlet

    Kecskemét

    110 E Ft / hó
    1 szoba
    28 m2
    Kiadó téglalakás, albérlet
    Kiadó téglalakás, albérlet

    Kecskemét, Kossuth-város, Forrás u. 22

    100 E Ft / hó
    1 + 1 szoba
    60 m2
    Kiadó téglalakás, albérlet
    Kiadó téglalakás, albérlet

    Kecskemét

    762 E Ft / hó
    4 szoba
    111 m2
    Kiadó téglalakás, albérlet
    Kiadó téglalakás, albérlet

    Kecskemét

    450 E Ft / hó
    4 szoba
    96 m2
    Kiadó téglalakás, albérlet
    Kiadó téglalakás, albérlet

    Kecskemét, Belváros, Kossuth tér

    195 E Ft / hó
    3 szoba
    67 m2
    Kiadó téglalakás, albérlet
    Kiadó téglalakás, albérlet

    Kecskemét

    370 E Ft / hó
    4 szoba
    70 m2
    Kiadó téglalakás, albérlet
    Kiadó téglalakás, albérlet

    Kecskemét

    160 E Ft / hó
    3 szoba
    68 m2
    Kiadó téglalakás, albérlet
    Kiadó téglalakás, albérlet

    Kecskemét

    300 E Ft / hó
    4 szoba
    97 m2
    Kiadó téglalakás, albérlet
    Kiadó téglalakás, albérlet

    Kecskemét

    250 E Ft / hó
    4 szoba
    115 m2
    Kiadó téglalakás, albérlet
    Kiadó téglalakás, albérlet

    Kecskemét

    800 E Ft / hó
    4 szoba
    111 m2
    Kiadó téglalakás, albérlet
    Kiadó téglalakás, albérlet

    Kecskemét

    180 E Ft / hó
    2 szoba
    77 m2
    Kiadó téglalakás, albérlet
    Kiadó téglalakás, albérlet

    Kecskemét

    300 E Ft / hó
    3 szoba
    81 m2
    Kiadó téglalakás, albérlet
    Kiadó téglalakás, albérlet

    Kecskemét

    150 E Ft / hó
    2 szoba
    70 m2
    Kiadó téglalakás, albérlet
    Kiadó téglalakás, albérlet

    Kecskemét

    390 E Ft / hó
    2 szoba
    60 m2
    Kiadó téglalakás, albérlet
    Kiadó téglalakás, albérlet

    Kecskemét

    160 E Ft / hó
    2 szoba
    54 m2
    Kiadó téglalakás, albérlet
    Kiadó téglalakás, albérlet

    Kecskemét, Belváros, Kossuth tér

    195 E Ft / hó
    3 szoba
    67 m2
    Kiadó téglalakás, albérlet
    Kiadó téglalakás, albérlet

    Kecskemét, Kossuth-város, Forrás u. 22

    100 E Ft / hó
    1 + 1 szoba
    60 m2
    Kiadó téglalakás, albérlet
    Kiadó téglalakás, albérlet

    Kecskemét, Rákóczi-város, Klapka utca

    165 E Ft / hó
    2 szoba
    65 m2
    Kiadó téglalakás, albérlet
    Kiadó téglalakás, albérlet

    Kiskunhalas

    140 E Ft / hó
    2 + 1 szoba
    98 m2
    Kiadó téglalakás, albérlet
    Kiadó téglalakás, albérlet

    Kecskemét

    165 E Ft / hó
    1 szoba
    65 m2
    Kiadó téglalakás, albérlet
    Kiadó téglalakás, albérlet

    Kecskemét

    180 E Ft / hó
    3 szoba
    85 m2
    Kiadó téglalakás, albérlet
    Kiadó téglalakás, albérlet

    Kecskemét

    250 E Ft / hó
    4 szoba
    115 m2
    Kiadó téglalakás, albérlet
    Kiadó téglalakás, albérlet

    Kecskemét

    370 E Ft / hó
    4 szoba
    70 m2
    Kiadó téglalakás, albérlet
    Kiadó téglalakás, albérlet

    Kecskemét

    800 E Ft / hó
    4 szoba
    111 m2

    Falusi CSOK ingatlanok

    Eladó családi ház
    Eladó családi ház

    Farmos

    38.9 M Ft
    2 szoba
    46 m2
    Eladó családi ház
    Eladó családi ház

    Kétpó

    14.9 M Ft
    1 + 2 szoba
    86 m2
    Eladó családi ház
    Eladó családi ház

    Mezőfalva

    39 M Ft
    3 szoba
    77 m2
    Eladó családi ház
    Eladó családi ház

    Fertőd

    189.9 M Ft
    4 szoba
    175 m2
    Eladó családi ház
    Eladó családi ház

    Pétfürdő

    74.9 M Ft
    3 szoba
    89 m2
    Eladó családi ház
    Eladó családi ház

    Rábapaty

    110 M Ft
    5 szoba
    132 m2
    Eladó családi ház
    Eladó családi ház

    Szabadbattyán

    30 M Ft
    4 szoba
    75 m2
    Eladó családi ház
    Eladó családi ház

    Törtel

    13.5 M Ft
    5 szoba
    74 m2