Kiadó téglalakás, albérlet
Eger, 3. emelet

1/2
140 000 Ft140 E Ft / hó 2 258 Ft/m2
3 szoba
62 m2
3. emelet

Részletes adatok

Állapot: Átlagos
Fűtés: Egyéb
Energetikai besorolás: Nem adta meg a hirdető

Az OTP Bank lakáshitel ajánlataFizetett hirdetés

Hitelösszeg 10 millió Ft
Futamidő 20 év
Induló törlesztőrészlet 67 508 Ft
Törlesztőrészlet a 13. hónaptól 86 071 Ft
THM 8,7 %

A tájékoztatás nem teljes körű és nem minősül ajánlattételnek. Az OTP Évnyerő Lakáshitelei 1 éves türelmi idős kölcsönök, amellyel az első 12 hónapban alacsonyabb a havi törlesztőrészlet. A tőke törlesztését a 13. hónaptól kell megkezdeni.

    Részletes kalkuláció
    +36 20 252
    Makrai Mónika
    referens

    Érdekel az OTP Bank kedvezményes lakáshitel ajánlata? *

    * A kérdésre „Igen” válasz bejelölése esetén, az „Üzenet küldése” gombra kattintva kijelentem, hogy az OTP Bank Nyrt. Adatkezelési tájékoztatójának tartalmát megismertem és tudomásul vettem.

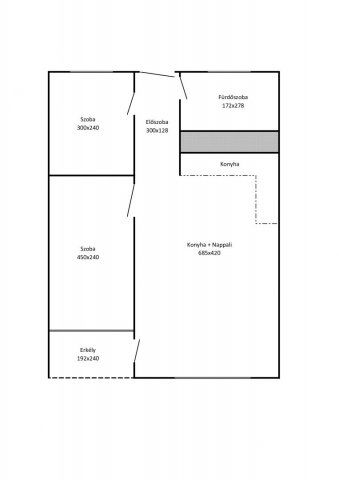
    Kiadó téglalakás, albérlet leírása

    Egerben a Berze Nagy János utcában 1+ 2 szobás, erkélyes lakás, garázzsal kiadó!
    A lakás tiszta, szép rendezett lépcsőház 3. emeletén található.

    Az épület szigetelt, műanyag nyílászáros

    Helységlista:
    - amerikai konyhás nappali,
    - erkély,
    - 2 háló szoba,
    - fürdőszoba,
    -radiátor,
    - parketta
    - garázs ( 5,25 X 2,85 ) 25.000. Ft/ hó áron bérelhető

    A lakás hosszú távra kiadó, minimum 1 év. 2 havi kaució+ 1 havi bérleti díj, közjegyzői okirat.
    Dohányzás, állat nem megengedett.

    A kiadó lakás, csak az Ingatlan Eger Kft. portfóliójában szerepel!
    megtekintése rugalmasan megoldott, kulcsom van hozzá.

    Hirdetés feltöltve: 2025. 10. 09. Utoljára módosítva: 2025. 10. 09.

    Az ingatlan elhelyezkedése

    Cím: Eger, 3. emelet

    Kiadó ingatlanok, albérletek a környékről

    Kiadó téglalakás, albérlet
    Kiadó téglalakás, albérlet

    Eger

    140 E Ft / hó
    1 szoba
    32 m2
    Kiadó téglalakás, albérlet
    Kiadó téglalakás, albérlet

    Eger, Tihamér, Hell Miksa utca

    150 E Ft / hó
    2 szoba
    54 m2
    Kiadó téglalakás, albérlet
    Kiadó téglalakás, albérlet

    Eger

    110 E Ft / hó
    2 szoba
    42 m2
    Kiadó téglalakás, albérlet
    Kiadó téglalakás, albérlet

    Eger

    230 E Ft / hó
    3 szoba
    65 m2
    Kiadó téglalakás, albérlet
    Kiadó téglalakás, albérlet

    Eger

    180 E Ft / hó
    2 + 1 szoba
    62 m2
    Kiadó téglalakás, albérlet
    Kiadó téglalakás, albérlet

    Eger

    110 E Ft / hó
    1 szoba
    30 m2
    Kiadó téglalakás, albérlet
    Kiadó téglalakás, albérlet

    Eger

    180 E Ft / hó
    2 + 1 szoba
    62 m2
    Kiadó téglalakás, albérlet
    Kiadó téglalakás, albérlet

    Eger

    220 E Ft / hó
    4 szoba
    109 m2
    Kiadó téglalakás, albérlet
    Kiadó téglalakás, albérlet

    Eger

    150 E Ft / hó
    2 szoba
    60 m2
    Kiadó téglalakás, albérlet
    Kiadó téglalakás, albérlet

    Eger

    120 E Ft / hó
    1 szoba
    42 m2
    Kiadó téglalakás, albérlet
    Kiadó téglalakás, albérlet

    Eger

    180 E Ft / hó
    2 szoba
    56 m2
    Kiadó téglalakás, albérlet
    Kiadó téglalakás, albérlet

    Eger

    230 E Ft / hó
    3 szoba
    65 m2
    Kiadó téglalakás, albérlet
    Kiadó téglalakás, albérlet

    Eger

    180 E Ft / hó
    2 szoba
    56 m2
    Kiadó téglalakás, albérlet
    Kiadó téglalakás, albérlet

    Eger

    140 E Ft / hó
    1 szoba
    32 m2
    Kiadó téglalakás, albérlet
    Kiadó téglalakás, albérlet

    Gyöngyös

    137 E Ft / hó
    3 szoba
    66 m2
    Kiadó téglalakás, albérlet
    Kiadó téglalakás, albérlet

    Gyöngyös

    130 E Ft / hó
    2 szoba
    54 m2
    Kiadó téglalakás, albérlet
    Kiadó téglalakás, albérlet

    Eger

    160 E Ft / hó
    1 + 1 szoba
    49 m2
    Kiadó téglalakás, albérlet
    Kiadó téglalakás, albérlet

    Eger

    110 E Ft / hó
    1 szoba
    30 m2
    Kiadó téglalakás, albérlet
    Kiadó téglalakás, albérlet

    Gyöngyös, Jó szerencsét utca

    100 E Ft / hó
    2 szoba
    49 m2
    Kiadó téglalakás, albérlet
    Kiadó téglalakás, albérlet

    Eger

    160 E Ft / hó
    1 + 1 szoba
    49 m2
    Kiadó téglalakás, albérlet
    Kiadó téglalakás, albérlet

    Gyöngyös, Egri út

    140 E Ft / hó
    1 + 2 szoba
    70 m2
    Kiadó téglalakás, albérlet
    Kiadó téglalakás, albérlet

    Gyöngyös

    180 E Ft / hó
    3 szoba
    89 m2
    Kiadó téglalakás, albérlet
    Kiadó téglalakás, albérlet

    Eger

    160 E Ft / hó
    1 + 1 szoba
    49 m2
    Kiadó téglalakás, albérlet
    Kiadó téglalakás, albérlet

    Gyöngyös

    197 E Ft / hó
    3 szoba
    86 m2

    Falusi CSOK ingatlanok

    Eladó téglalakás
    Eladó téglalakás

    Balatonszemes

    110.9 M Ft
    2 szoba
    60 m2
    Eladó családi ház
    Eladó családi ház

    Szécsisziget

    12.5 M Ft
    1 szoba
    57 m2
    Eladó családi ház
    Eladó családi ház

    Ugod

    53.8 M Ft
    3 szoba
    137 m2
    Eladó családi ház
    Eladó családi ház

    Úrkút, Temető utca

    99 M Ft
    7 szoba
    540 m2
    Eladó családi ház
    Eladó családi ház

    Tihany

    210 M Ft
    3 szoba
    112 m2
    Eladó családi ház
    Eladó családi ház

    Szigetbecse

    99 M Ft
    3 szoba
    86 m2
    Eladó családi ház
    Eladó családi ház

    Becsehely

    18.5 M Ft
    2 szoba
    99 m2
    Eladó családi ház
    Eladó családi ház

    Tápióbicske

    37.5 M Ft
    2 szoba
    70 m2