River Life

Kiadó téglalakás, albérlet
Budapest, XIII. kerület, 1. emelet

+ 7 kép 1/10
290 000 Ft290 E Ft / hó 6 042 Ft/m2
2 szoba
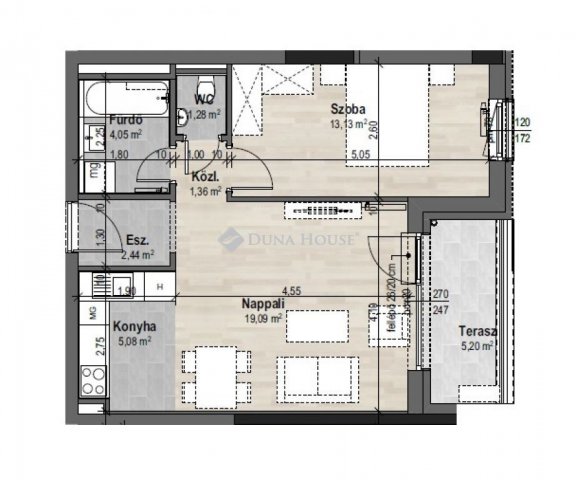
48 m²
1. emelet
építés éve:2025

Részletes adatok

Fűtés: Egyéb
Emelet: 1. emelet
Extrák: Lift
Energetikai besorolás: A+

Az OTP Bank lakáshitel ajánlataFizetett hirdetés

Hitelösszeg 10 millió Ft
Futamidő 20 év
Induló törlesztőrészlet 67 508 Ft
Törlesztőrészlet a 13. hónaptól 86 071 Ft
THM 8,6 %

A tájékoztatás nem teljes körű és nem minősül ajánlattételnek. Az OTP Évnyerő Lakáshitelei 1 éves türelmi idős kölcsönök, amellyel az első 12 hónapban alacsonyabb a havi törlesztőrészlet. A tőke törlesztését a 13. hónaptól kell megkezdeni.

    Részletes kalkuláció
    +36 1 444
    Erdei Anna Erika
    Duna House Béke tér

    Érdekel az OTP Bank kedvezményes lakáshitel ajánlata? *

    * A kérdésre „Igen” válasz bejelölése esetén, az „Üzenet küldése” gombra kattintva kijelentem, hogy az OTP Bank Nyrt. Adatkezelési tájékoztatójának tartalmát megismertem és tudomásul vettem.

    Kiadó téglalakás, albérlet leírása

    KIADÓ egy alacsony rezsijű, bútorozott, gépesített, MODERN, ÚJ otthon a Szabolcs utcában.Azonnal költözhető.Kiadó lakás, Budapest, XIII. kerületének egyik legkedveltebb városrészében, a Szabolcs utcában egy ÚJ építésű, liftes, MODERN, akadálymentes társasházban, PRÉMIUM állapotú, 48 nm + 5nm erkélyes, első emeleten lévő, utcai nézetű, porta szolgálatos lakás.ELSŐ LAKÓJÁT várja a berendezett lakás, melyhez teremgarázsban beálló opcionálisan bérelhető.Főbb jellemzők:Elosztás: klimatizált, amerikai konyhás nappali + tágas hálószoba + külön fürdő + wc + előszoba + 5 nm-es erkély.Felszereltség: Bútorozott, gépesített (hűtő, indukciós főzőlap, sütő, mikró, mosogatógép ) Rendkívül alacsony fenntartás: a közös költség 24 000.-Ft , minden közüzem egyedi fogyasztás és mérés alapján kerül elszámolásra.Lokáció: KIVÁLÓ közlekedés: Metró, 14-es, 4-6 villamosok, 75, 79 Troli, 30, 230, 105, 210-es buszok néhány perces séta távolságraSportolási lehetőség a közelben, Westend, Városliget, Hősök tere 10 perc séta távolságraVásárlási lehetőség kiváló, Westend, Lidl, piac, éttermek, sétatávolságra.Bérleti feltételek:Minimum 1 évre bérelhetőHavi bérleti díj: 290.000 Ft/hó + közös költségKaució: 2 havi bérleti díjKiköltözésre vonatkozó közjegyzői okirat vállalásaAktív munkaviszony / jövedelem meglétének az igazolásaAzonnali költözésKisállat hozható.Ha a lakás felkeltette érdeklődését, ne hagyja ki ezt a kiváló lehetőséget, keressen bizalommal.

    Hirdetés feltöltve: 2026. 04. 10. Utoljára módosítva: 2026. 04. 10.

    2 szobás téglalakások ára Budapesten

    Ebből az összehasonlításból megtudhatod, hogyan viszonyul a lakás ára a környékbeli téglalakások átlagos árához. Ez nem azt jelenti, hogy ennyivel olcsóbb vagy drágább, mint amennyit a lakás ér, hanem hogy ennyivel tér el a környékbeli átlagtól.

    Ennek a m² ára
    XIII. kerület m² ár
    Budapest m² ár
    6 e Ft
    6 e Ft 0%
    7 e Ft 8%
    Ennek az ára
    XIII. kerület átlagár
    Budapest átlagár
    290 E Ft / hó m Ft
    0.3 m Ft 8%
    0.5 m Ft 39%

    Az ingatlan elhelyezkedése

    Cím: Budapest, XIII. kerület, 1. emelet

    Kiadó ingatlanok, albérletek a környékről

    VII. kerület
    Kiadó téglalakás, albérlet

    Budapest, VII. kerület

    250 E Ft / hó
    1 szoba
    21 m²
    VI. kerület, Külső Terézváros, Munkácsy Mihály utca
    Kiadó téglalakás, albérlet

    Budapest, VI. kerület

    220 E Ft / hó
    2 szoba
    60 m²
    XIII. kerület, Újlipótváros, Kádár utca
    Kiadó téglalakás, albérlet

    Budapest, XIII. kerület

    245 E Ft / hó
    2 + 1 szoba
    64 m²
    XIII. kerület
    Kiadó téglalakás, albérlet

    Budapest, XIII. kerület

    455 E Ft / hó
    4 szoba
    84 m²
    III. kerület, Békásmegyer, Bécsi út
    Kiadó téglalakás, albérlet

    Budapest, III. kerület

    285 E Ft / hó
    2 szoba
    55 m²
    VIII. kerület, Teleki László tér
    Kiadó téglalakás, albérlet

    Budapest, VIII. kerület

    240 E Ft / hó
    1 + 1 szoba
    51 m²
    XIII. kerület
    Kiadó téglalakás, albérlet

    Budapest, XIII. kerület

    770 E Ft / hó
    3 szoba
    106 m²
    XIII. kerület
    Kiadó téglalakás, albérlet

    Budapest, XIII. kerület

    1078 E Ft / hó
    3 szoba
    105 m²
    XIII. kerület
    Kiadó téglalakás, albérlet

    Budapest, XIII. kerület

    406 E Ft / hó
    3 szoba
    70 m²
    XIII. kerület, Angyalföld, Kádár utca
    Kiadó téglalakás, albérlet

    Budapest, XIII. kerület

    250 E Ft / hó
    1 szoba
    53 m²
    XIII. kerület
    Kiadó téglalakás, albérlet

    Budapest, XIII. kerület

    471 E Ft / hó
    3 szoba
    80 m²
    XIII. kerület
    Kiadó téglalakás, albérlet

    Budapest, XIII. kerület

    501 E Ft / hó
    3 szoba
    60 m²
    XIII. kerület, Vizafogó, Kassák Lajos utca
    Kiadó téglalakás, albérlet

    Budapest, XIII. kerület

    250 E Ft / hó
    1 + 1 szoba
    45 m²
    VIII. kerület, József utca
    Kiadó téglalakás, albérlet

    Budapest, VIII. kerület

    120 E Ft / hó
    1 szoba
    32 m²
    II. kerület, Rózsadomb, Bem rakpart
    Kiadó téglalakás, albérlet

    Budapest, II. kerület

    290 E Ft / hó
    1 + 1 szoba
    61 m²
    VII. kerület, Külső Erzsébetváros, Rákóczi út
    Kiadó téglalakás, albérlet

    Budapest, VII. kerület

    270 E Ft / hó
    1 + 1 szoba
    46 m²
    XIII. kerület
    Kiadó téglalakás, albérlet

    Budapest, XIII. kerület

    501 E Ft / hó
    3 szoba
    60 m²
    VI. kerület, Külső Terézváros, Hajós utca
    Kiadó téglalakás, albérlet

    Budapest, VI. kerület

    700 E Ft / hó
    3 szoba
    150 m²
    XIII. kerület
    Kiadó téglalakás, albérlet

    Budapest, XIII. kerület

    1155 E Ft / hó
    3 szoba
    105 m²
    V. kerület, Lipótváros, Szemere utca
    Kiadó téglalakás, albérlet

    Budapest, V. kerület

    399 E Ft / hó
    2 szoba
    67 m²
    XIII. kerület
    Kiadó téglalakás, albérlet

    Budapest, XIII. kerület

    270 E Ft / hó
    1 szoba
    42 m²
    XIII. kerület
    Kiadó téglalakás, albérlet

    Budapest, XIII. kerület

    330 E Ft / hó
    2 szoba
    50 m²
    XIII. kerület, Újlipótváros, Pozsonyi út
    Kiadó téglalakás, albérlet

    Budapest, XIII. kerület

    674 E Ft / hó
    2 szoba
    53 m²
    XIII. kerület, Népsziget, Meder utca
    Kiadó téglalakás, albérlet

    Budapest, XIII. kerület

    258 E Ft / hó
    1 + 1 szoba
    36 m²

    Falusi CSOK ingatlanok

    Pécsvárad
    Eladó családi ház

    Pécsvárad

    189 M Ft
    7 szoba
    618 m²
    Bodajk
    Eladó ikerház

    Bodajk

    69.4 M Ft
    5 szoba
    90 m²
    Lovászi
    Eladó családi ház

    Lovászi

    25 M Ft
    3 + 1 szoba
    120 m²
    Gellénháza
    Eladó családi ház

    Gellénháza

    42.5 M Ft
    3 szoba
    83 m²
    Badacsonytördemic
    Eladó családi ház

    Badacsonytördemic

    90 M Ft
    3 szoba
    130 m²
    Ceglédbercel
    Eladó családi ház

    Ceglédbercel

    79.9 M Ft
    5 szoba
    140 m²
    Ceglédbercel
    Eladó családi ház

    Ceglédbercel

    53 M Ft
    3 szoba
    67 m²
    Kocsér
    Eladó családi ház

    Kocsér

    17.9 M Ft
    1 + 2 szoba
    73 m²