Seven Pearl

Kiadó téglalakás, albérlet
Budapest, X. kerület, Gergely utca, Családi ház

+ 14 kép 1/17
180 000 Ft180 E Ft / hó 6 000 Ft/m2
1 szoba
30 m2
Családi ház
építés éve:2018

Részletes adatok

Állapot: Átlagos
Fűtés: Házközponti
Emelet: 1. emelet
Parkolás: Kocsibeálló
Extrák: Lift
Energetikai besorolás: C

Az OTP Bank lakáshitel ajánlataFizetett hirdetés

Hitelösszeg 10 millió Ft
Futamidő 20 év
Induló törlesztőrészlet 67 508 Ft
Törlesztőrészlet a 13. hónaptól 86 071 Ft
THM 8,6 %

A tájékoztatás nem teljes körű és nem minősül ajánlattételnek. Az OTP Évnyerő Lakáshitelei 1 éves türelmi idős kölcsönök, amellyel az első 12 hónapban alacsonyabb a havi törlesztőrészlet. A tőke törlesztését a 13. hónaptól kell megkezdeni.

    Részletes kalkuláció
    +36 70 383
    Szimeth Norbert
    Balla Ingatlan - XVIII. kerület, Gyál, Üllő, Vecsés, Péteri

    Érdekel az OTP Bank kedvezményes lakáshitel ajánlata? *

    * A kérdésre „Igen” válasz bejelölése esetén, az „Üzenet küldése” gombra kattintva kijelentem, hogy az OTP Bank Nyrt. Adatkezelési tájékoztatójának tartalmát megismertem és tudomásul vettem.

    Kiadó téglalakás, albérlet leírása

    Azonnal költözhető, akadálymentes, napfényes garzonlakás kiadó a X. kerületben; Rózsaliget lakópark (2018)
    A Gergely utca végén, a modern és rendezett Rózsaliget lakóparkban (épült: 2018) hosszú távra kiadó egy 30 m²-es, alacsony rezsijű, akadálymentes garzonlakás, amely azonnal költözhető. A lakópark fiatalos, tiszta és biztonságos környezete ideális választás mindazoknak, akik modern, könnyen fenntartható otthont keresnek kiváló közlekedéssel és zöld környezettel.
    A lakás főbb jellemzői
    • Akadálymentes társasház és akadálymentes lakás
    • I. emeleti, liftes épület
    • Déli tájolás, három nagy ablakon át egész nap természetes fény
    • 270 cm belmagasság, tágas térérzet
    • Hőszigetelt nyílászárók, alumínium redőnyökkel
    • Házközponti fűtés, hőmennyiség alapú elszámolással
    • Hűtő-fűtő klíma a szobában
    • Franciaerkélyes teraszajtó, amely még világosabbá teszi a teret
    • Az ablakok utcára néznek, nem másik háztömbre; így a lakás intim, kellemes hangulatú
    Gépesítés
    A lakás teljesen gépesített, azonnal használatra kész:
    • elektromos tűzhely
    • szagelszívó
    • hűtőgép
    • mosógép
    • mikrohullámú sütő
    Bútorozottság
    A lakás nem bútorozott, csak részben:
    • előszobaszekrény
    • egy kisebb szekrény a szobában
    • étkezőasztal székekkel Más bútor nincs, így a bérlő saját ízlésére formálhatja a teret.
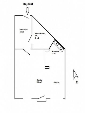
    Elrendezés
    A lakás három helyiségből áll: előszoba, fürdőszoba WC-vel, valamint egy tágas szoba amerikai konyhával. A praktikus elrendezés könnyen berendezhető, minden négyzetméter jól használható.
    Parkolás
    A bérleményhez tartozik a lakópark területén belül, zárt, biztonságos felszíni parkolóhely, amely a bérleti díj része.
    Környezet: városi kényelem, természetközeli hangulat
    A lakópark egyik különlegessége, hogy mindössze kb. 100 méterre található a helyi bányató, amely rendezett környezetével, zöld területeivel és nyugodt hangulatával igazi felüdülést nyújt a mindennapokban. A környék csendes, tiszta és gondozott, mégis minden fontos szolgáltatás könnyen elérhető.
    Közlekedés – gyors, kényelmes, kiszámítható
    A lakás elhelyezkedése fővárosi viszonylatban is kiváló:
    • 85-ös, 68-as és 268-as busz gyors eléréssel
    • M3 metró (Határ út, KÖKI) kb. 10 percen belül elérhető
    Költségek
    • Közös költség: 15.000 Ft
    • Fűtés: télen is 10.000 Ft alatt tartható
    • Víz, csatorna, villany: fogyasztás alapján
    • Internet: Telekom és ONE szolgáltatók elérhetők
    Bérleti feltételek
    • Bérleti díj: 180.000 Ft / hó + rezsi
    • Kaució: 2 havi díj (360.000 Ft)
    • Közjegyzői kiürítési nyilatkozat szükséges, költsége fele-fele arányban fizetendő
    • Ideális bérlő: egyedülálló, nemdohányzó, háziállat nélkül

    Hirdetés feltöltve: 2025. 12. 31.

    1 szobás téglalakások ára Budapesten

    Ebből az összehasonlításból megtudhatod, hogyan viszonyul a lakás ára a környékbeli téglalakások átlagos árához. Ez nem azt jelenti, hogy ennyivel olcsóbb vagy drágább, mint amennyit a lakás ér, hanem hogy ennyivel tér el a környékbeli átlagtól.

    Ennek a m² ára
    X. kerület m² ár
    Budapest m² ár
    6 e Ft
    2 e Ft -291%
    7 e Ft 16%
    Ennek az ára
    X. kerület átlagár
    Budapest átlagár
    180 E Ft / hó m Ft
    0.1 m Ft -227%
    0.2 m Ft 28%

    Az ingatlan elhelyezkedése

    Cím: Budapest, X. kerület, Gergely utca, Családi ház

    Kiadó ingatlanok, albérletek a környékről

    Kiadó téglalakás, albérlet
    Kiadó téglalakás, albérlet

    III. kerület

    200 E Ft / hó
    1 szoba
    25 m2
    Kiadó téglalakás, albérlet
    Kiadó téglalakás, albérlet

    XIV. kerület, Herminamező

    250 E Ft / hó
    2 szoba
    51 m2
    Kiadó téglalakás, albérlet
    Kiadó téglalakás, albérlet

    X. kerület

    250 E Ft / hó
    3 szoba
    44 m2
    Kiadó téglalakás, albérlet
    Kiadó téglalakás, albérlet

    VII. kerület, Külső Erzsébetváros, Rózsa utca

    260 E Ft / hó
    1 szoba
    33 m2
    Kiadó téglalakás, albérlet
    Kiadó téglalakás, albérlet

    X. kerület, Óhegy, Kada utca

    200 E Ft / hó
    2 szoba
    56 m2
    Kiadó téglalakás, albérlet
    Kiadó téglalakás, albérlet

    X. kerület, Óhegy, Makk utca

    260 E Ft / hó
    45 m2
    Kiadó téglalakás, albérlet
    Kiadó téglalakás, albérlet

    X. kerület, Óhegy

    175 E Ft / hó
    1 szoba
    32 m2
    Kiadó üzlethelyiség
    Kiadó üzlethelyiség

    VI. kerület

    500 E Ft / hó
    168 m2
    Kiadó téglalakás, albérlet
    Kiadó téglalakás, albérlet

    X. kerület

    180 E Ft / hó
    1 szoba
    27 m2
    Kiadó téglalakás, albérlet
    Kiadó téglalakás, albérlet

    II. kerület

    350 E Ft / hó
    2 szoba
    68 m2
    Kiadó téglalakás, albérlet
    Kiadó téglalakás, albérlet

    VI. kerület, Külső Terézváros, Rippl-Rónai utca

    260 E Ft / hó
    2 szoba
    26 m2
    Kiadó téglalakás, albérlet
    Kiadó téglalakás, albérlet

    X. kerület, Óhegy, Ihász utca 5

    175 E Ft / hó
    1 szoba
    32 m2
    Kiadó téglalakás, albérlet
    Kiadó téglalakás, albérlet

    IX. kerület, Ferencváros, Vágóhíd utca

    195 E Ft / hó
    1 szoba
    30 m2
    Kiadó téglalakás, albérlet
    Kiadó téglalakás, albérlet

    X. kerület, Óhegy, Ihász utca 5

    175 E Ft / hó
    1 szoba
    32 m2
    Kiadó üzlethelyiség
    Kiadó üzlethelyiség

    II. kerület

    90 E Ft / hó
    14 m2
    Kiadó téglalakás, albérlet
    Kiadó téglalakás, albérlet

    X. kerület

    250 E Ft / hó
    2 szoba
    56 m2
    Kiadó panellakás, albérlet
    Kiadó panellakás, albérlet

    XX. kerület

    150 E Ft / hó
    1 szoba
    17 m2
    Kiadó téglalakás, albérlet
    Kiadó téglalakás, albérlet

    X. kerület, Gyárdűlő

    360 E Ft / hó
    3 szoba
    64 m2
    Kiadó téglalakás, albérlet
    Kiadó téglalakás, albérlet

    VII. kerület, Külső Erzsébetváros, Damjanich utca

    249 E Ft / hó
    2 szoba
    56 m2
    Kiadó téglalakás, albérlet
    Kiadó téglalakás, albérlet

    X. kerület

    350 E Ft / hó
    3 szoba
    60 m2
    Kiadó téglalakás, albérlet
    Kiadó téglalakás, albérlet

    II. kerület

    250 E Ft / hó
    1 szoba
    28 m2
    Kiadó téglalakás, albérlet
    Kiadó téglalakás, albérlet

    X. kerület, Zágrábi utca

    225 E Ft / hó
    1 + 1 szoba
    40 m2
    Kiadó panellakás, albérlet
    Kiadó panellakás, albérlet

    IV. kerület, Újpest, Nyár utca

    198 E Ft / hó
    1 + 1 szoba
    34 m2
    Kiadó téglalakás, albérlet
    Kiadó téglalakás, albérlet

    X. kerület, Óhegy, Makk utca

    260 E Ft / hó
    1 + 1 szoba
    45 m2

    Falusi CSOK ingatlanok

    Eladó családi ház
    Eladó családi ház

    Fadd

    25 M Ft
    3 + 1 szoba
    79 m2
    Eladó családi ház
    Eladó családi ház

    Balatonkeresztúr

    119 M Ft
    6 szoba
    180 m2
    Eladó családi ház
    Eladó családi ház

    Ácsteszér

    45 M Ft
    4 szoba
    152 m2
    Eladó családi ház
    Eladó családi ház

    Röszke

    99.99 M Ft
    4 szoba
    122 m2
    Eladó családi ház
    Eladó családi ház

    Onga

    72.9 M Ft
    4 szoba
    109 m2
    Eladó családi ház
    Eladó családi ház

    Egyed

    24.9 M Ft
    2 + 1 szoba
    56 m2
    Eladó családi ház
    Eladó családi ház

    Doboz

    11.99 M Ft
    2 + 1 szoba
    89 m2
    Eladó családi ház
    Eladó családi ház

    Háromfa, Kossuth

    22.4 M Ft
    139 m2