NapForrás 20 - Buda

Kiadó téglalakás, albérlet
Budapest, VII. kerület, Belső Erzsébetváros, Kertész utca, 3. emelet

+ 8 kép 1/11
280 000 Ft280 E Ft / hó 3 733 Ft/m2
2 szoba
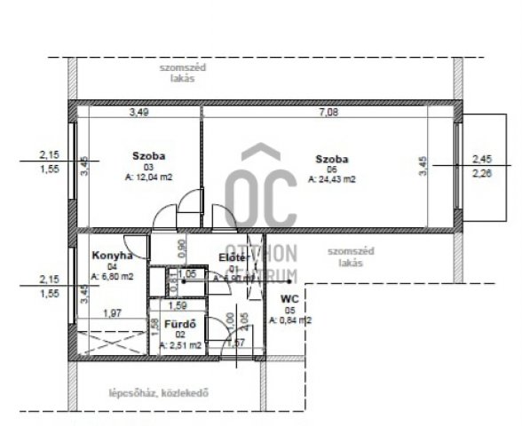
75 m²
3. emelet
építés éve:1890

Részletes adatok

Fűtés: Gázkazán
Emelet: 3. emelet
Közmű: Gáz, Villany, Csatorna
Energetikai besorolás: Nem adta meg a hirdető

Az OTP Bank lakáshitel ajánlataFizetett hirdetés

Hitelösszeg 10 millió Ft
Futamidő 20 év
Induló törlesztőrészlet 67 508 Ft
Törlesztőrészlet a 13. hónaptól 86 071 Ft
THM 8,6 %

A tájékoztatás nem teljes körű és nem minősül ajánlattételnek. Az OTP Évnyerő Lakáshitelei 1 éves türelmi idős kölcsönök, amellyel az első 12 hónapban alacsonyabb a havi törlesztőrészlet. A tőke törlesztését a 13. hónaptól kell megkezdeni.

    Részletes kalkuláció
    +36 70 465
    Szuromi Mirella
    referens

    Érdekel az OTP Bank kedvezményes lakáshitel ajánlata? *

    * A kérdésre „Igen” válasz bejelölése esetén, az „Üzenet küldése” gombra kattintva kijelentem, hogy az OTP Bank Nyrt. Adatkezelési tájékoztatójának tartalmát megismertem és tudomásul vettem.

    Kiadó téglalakás, albérlet leírása

    VII. kerületben, a Kertész utcában, liftes társasház 3. emeletén kiadásra kínálok egy 75 nm-es, 2 szobás, cirkófűtéses, bútorozatlan, udvari nézetű lakást.
    A lakás jó elosztású, csendes, rendezett társasházban található.
    Közös költség: 40 000 Ft/hó, amely tartalmazza a korlátlan vízfogyasztást, a felújítási alapot, a lift üzemeltetését és a szemétszállítást.
    A lakás hosszú távra kiadó.
    További információért kérem, keressen bizalommal.

    Egyedi igényekre szabott lakáshitelekkel állunk rendelkezésére.
    Bankfüggetlen Hitelcentrumunk az országban elérhető összes bank és hitelintézet ajánlatát versenyezteti az Ön számára díjmentesen.
    Munkatársaink nagy szakmai tapasztalattal, teljes körű CSOK PLUSZ és OTTHON START PROGRAM ügyintézéssel várják Önt előre egyeztetett időpontban akár a normál munkaidő után is.

    Hirdetés feltöltve: 2026. 03. 15. Utoljára módosítva: 2026. 04. 01.

    2 szobás téglalakások ára Budapesten

    Ebből az összehasonlításból megtudhatod, hogyan viszonyul a lakás ára a környékbeli téglalakások átlagos árához. Ez nem azt jelenti, hogy ennyivel olcsóbb vagy drágább, mint amennyit a lakás ér, hanem hogy ennyivel tér el a környékbeli átlagtól.

    Ennek a m² ára
    Belső Erzsébetváros m² ár
    VII. kerület m² ár
    Budapest m² ár
    4 e Ft
    6 e Ft 38%
    6 e Ft 37%
    7 e Ft 43%
    Ennek az ára
    Belső Erzsébetváros átlagár
    VII. kerület átlagár
    Budapest átlagár
    280 E Ft / hó m Ft
    0.3 m Ft 1%
    0.3 m Ft 8%
    0.5 m Ft 41%

    Az ingatlan elhelyezkedése

    Cím: Budapest, VII. kerület, Belső Erzsébetváros, Kertész utca, 3. emelet

    Kiadó ingatlanok, albérletek a környékről

    VII. kerület, Belső Erzsébetváros, Holló utca
    Kiadó téglalakás, albérlet

    Budapest, VII. kerület

    300 E Ft / hó
    2 szoba
    42 m²
    VII. kerület
    Kiadó téglalakás, albérlet

    Budapest, VII. kerület

    655 E Ft / hó
    100 m²
    XIV. kerület
    Kiadó téglalakás, albérlet

    Budapest, XIV. kerület

    225 E Ft / hó
    2 szoba
    49 m²
    VII. kerület
    Kiadó téglalakás, albérlet

    Budapest, VII. kerület

    303 E Ft / hó
    2 szoba
    74 m²
    VII. kerület
    Kiadó téglalakás, albérlet

    Budapest, VII. kerület

    2876 E Ft / hó
    4 szoba
    157 m²
    VI. kerület, Külső Terézváros, Bajza utca
    Kiadó téglalakás, albérlet

    Budapest, VI. kerület

    273 E Ft / hó
    2 szoba
    57 m²
    VII. kerület
    Kiadó téglalakás, albérlet

    Budapest, VII. kerület

    404 E Ft / hó
    2 + 1 szoba
    59 m²
    III. kerület
    Kiadó panellakás, albérlet

    Budapest, III. kerület

    250 E Ft / hó
    2 szoba
    50 m²
    VII. kerület
    Kiadó téglalakás, albérlet

    Budapest, VII. kerület

    620 E Ft / hó
    4 szoba
    102 m²
    XI. kerület, Kelenföld, Petzvál József utca
    Kiadó téglalakás, albérlet

    Budapest, XI. kerület

    310 E Ft / hó
    1 + 2 szoba
    57 m²
    VII. kerület, Belső Erzsébetváros, Rózsa
    Kiadó téglalakás, albérlet

    Budapest, VII. kerület

    255 E Ft / hó
    2 szoba
    52 m²
    V. kerület, Lipótváros, Akadémia utca 11
    Kiadó téglalakás, albérlet

    Budapest, V. kerület

    220 E Ft / hó
    1 + 1 szoba
    52 m²
    XIII. kerület, Angyalföld, Zsinór utca
    Kiadó téglalakás, albérlet

    Budapest, XIII. kerület

    195 E Ft / hó
    1 + 1 szoba
    51 m²
    VII. kerület
    Kiadó téglalakás, albérlet

    Budapest, VII. kerület

    300 E Ft / hó
    2 szoba
    37 m²
    VII. kerület
    Kiadó téglalakás, albérlet

    Budapest, VII. kerület

    1952 E Ft / hó
    3 szoba
    85 m²
    XI. kerület, Kelenföld, Fehérvári út
    Kiadó téglalakás, albérlet

    Budapest, XI. kerület

    300 E Ft / hó
    2 szoba
    50 m²
    VII. kerület
    Kiadó téglalakás, albérlet

    Budapest, VII. kerület

    768 E Ft / hó
    4 szoba
    95 m²
    VIII. kerület
    Kiadó üzlethelyiség

    Budapest, VIII. kerület

    1200 E Ft / hó
    160 m²
    XIII. kerület, Szabolcs utca
    Kiadó téglalakás, albérlet

    Budapest, XIII. kerület

    295 E Ft / hó
    2 szoba
    51 m²
    IX. kerület, Ferencváros, Gubacsi út
    Kiadó iroda

    Budapest, IX. kerület

    614 E Ft / hó
    20 szoba
    2000 m²
    VII. kerület
    Kiadó téglalakás, albérlet

    Budapest, VII. kerület

    290 E Ft / hó
    2 szoba
    58 m²
    XVI. kerület, Sashalom, Thököly út 69
    Kiadó téglalakás, albérlet

    Budapest, XVI. kerület

    205 E Ft / hó
    1 + 1 szoba
    34 m²
    VII. kerület, Belső Erzsébetváros, Budapest VII. kerület Holló utca
    Kiadó téglalakás, albérlet

    Budapest, VII. kerület

    250 E Ft / hó
    1 szoba
    32 m²
    VIII. kerület, Józsefváros, Kisfaludy utca
    Kiadó téglalakás, albérlet

    Budapest, VIII. kerület

    625 E Ft / hó
    2 + 1 szoba
    78 m²

    Falusi CSOK ingatlanok

    Cserépfalu
    Eladó családi ház

    Cserépfalu

    58 M Ft
    4 szoba
    143 m²
    Ceglédbercel
    Eladó családi ház

    Ceglédbercel

    79.9 M Ft
    5 szoba
    140 m²
    Ábrahámhegy
    Eladó családi ház

    Ábrahámhegy

    139 M Ft
    4 szoba
    106 m²
    Úrkút
    Eladó családi ház

    Úrkút

    94.9 M Ft
    4 szoba
    186 m²
    Bősárkány
    Eladó családi ház

    Bősárkány

    60 M Ft
    4 szoba
    107 m²
    Magyarszék
    Eladó családi ház

    Magyarszék

    48.5 M Ft
    3 + 1 szoba
    86 m²
    Balatonszemes
    Eladó téglalakás

    Balatonszemes

    123.3 M Ft
    2 szoba
    70 m²
    Kunadacs
    Eladó családi ház

    Kunadacs

    74 M Ft
    5 szoba
    220 m²