Seven Pearl

Kiadó panellakás, albérlet
Kecskemét, 4. emelet

+ 11 kép 1/14
160 000 Ft160 E Ft / hó 2 581 Ft/m2
2 szoba
62 m²
4. emelet
építés éve:1980

Részletes adatok

Állapot: Átlagos
Fűtés: Távfűtés
Emelet: 4. emelet
Energetikai besorolás: Nem adta meg a hirdető

Az OTP Bank lakáshitel ajánlataFizetett hirdetés

Hitelösszeg 10 millió Ft
Futamidő 20 év
Induló törlesztőrészlet 67 508 Ft
Törlesztőrészlet a 13. hónaptól 86 071 Ft
THM 8,6 %

A tájékoztatás nem teljes körű és nem minősül ajánlattételnek. Az OTP Évnyerő Lakáshitelei 1 éves türelmi idős kölcsönök, amellyel az első 12 hónapban alacsonyabb a havi törlesztőrészlet. A tőke törlesztését a 13. hónaptól kell megkezdeni.

    Részletes kalkuláció
    +36 30 238
    Juhász Imre
    Kecskemét Nagykőrösi utca 13 - OTP Ingatlanpont Iroda

    Érdekel az OTP Bank kedvezményes lakáshitel ajánlata? *

    * A kérdésre „Igen” válasz bejelölése esetén, az „Üzenet küldése” gombra kattintva kijelentem, hogy az OTP Bank Nyrt. Adatkezelési tájékoztatójának tartalmát megismertem és tudomásul vettem.

    Kiadó panellakás, albérlet leírása

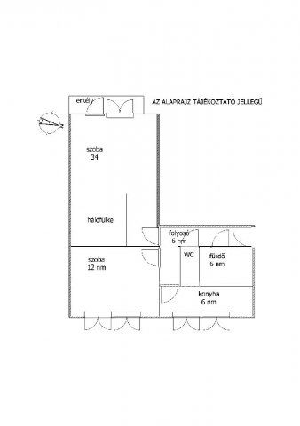
    Kecskemét, belvárosi, bútorozott, erkélyes lakás kiadó. Az ingatlan egy ötszintes társasház, negyedik emeletén található. A nyílászárókat kicserélték, a vizesblokkot felújították, a közlekedő és a konyha járólappal, a nappali laminált padlóval burkolt. A nappaliban hálófülke került kialakításra, a folyosón tolóajtós beépített szekrény, az erkélyen tároló szekrény található. A távfűtéses otthon, klímával felszerelt, alacsony rezsijű.
    Az átlagos költségek: fűtés-melegvíz 12 e. Ft,
    közös költség 11 e. Ft,
    gáz 1 e. Ft/hó.
    Ideális családosok számára, frekventált fekvése miatt, a közelben iskola, óvoda és bölcsőde is található.
    A bérbeadás feltétele 2 havi kaució és egy havi lakbér, közjegyzői okirat készítése, melyet a főbérlő fizet, aki számlaképes és a tartózkodási hely bejelentkezéséhez is hozzájárul. Kisállat tulajdonosok kérem ne jelentkezzenek.
    Azonnal birtokba vehető!

    Hirdetés feltöltve: 2026. 02. 16. Utoljára módosítva: 2026. 02. 23.

    2 szobás panellakások ára Kecskeméten

    Ebből az összehasonlításból megtudhatod, hogyan viszonyul a lakás ára a környékbeli panellakások átlagos árához. Ez nem azt jelenti, hogy ennyivel olcsóbb vagy drágább, mint amennyit a lakás ér, hanem hogy ennyivel tér el a környékbeli átlagtól.

    Ennek a m² ára
    Kecskemét m² ár
    3 e Ft
    2 e Ft -56%
    Ennek az ára
    Kecskemét átlagár
    160 E Ft / hó m Ft
    0.1 m Ft -83%

    Az ingatlan elhelyezkedése

    Cím: Kecskemét, 4. emelet

    Kiadó ingatlanok, albérletek a környékről

    Kecskemét, Kossuth-város, Téglás utca
    Kiadó panellakás, albérlet

    Kecskemét

    200 E Ft / hó
    2 szoba
    46 m²
    Kecskemét
    Kiadó panellakás, albérlet

    Kecskemét

    165 E Ft / hó
    2 szoba
    55 m²
    Kecskemét, Széchenyi-város, Batthyány
    Kiadó panellakás, albérlet

    Kecskemét

    200 E Ft / hó
    2 szoba
    55 m²
    Kecskemét
    Kiadó panellakás, albérlet

    Kecskemét

    170 E Ft / hó
    2 szoba
    50 m²
    Kecskemét
    Kiadó panellakás, albérlet

    Kecskemét

    130 E Ft / hó
    2 szoba
    55 m²
    Kecskemét
    Kiadó panellakás, albérlet

    Kecskemét

    140 E Ft / hó
    2 szoba
    55 m²
    Kecskemét
    Kiadó panellakás, albérlet

    Kecskemét

    195 E Ft / hó
    2 szoba
    54 m²
    Kecskemét, Kossuth-város, Téglás utca
    Kiadó panellakás, albérlet

    Kecskemét

    200 E Ft / hó
    2 szoba
    46 m²
    Kecskemét
    Kiadó panellakás, albérlet

    Kecskemét

    165 E Ft / hó
    2 szoba
    55 m²
    Kecskemét
    Kiadó panellakás, albérlet

    Kecskemét

    300 E Ft / hó
    3 szoba
    80 m²
    Kecskemét
    Kiadó panellakás, albérlet

    Kecskemét

    200 E Ft / hó
    3 szoba
    63 m²
    Kecskemét, Belváros, Burga utca
    Kiadó panellakás, albérlet

    Kecskemét

    160 E Ft / hó
    2 szoba
    63 m²
    Kecskemét, Széchenyi-város, Batthyány
    Kiadó panellakás, albérlet

    Kecskemét

    200 E Ft / hó
    2 szoba
    55 m²
    Kecskemét
    Kiadó panellakás, albérlet

    Kecskemét

    145 E Ft / hó
    2 szoba
    50 m²
    Kecskemét, Kossuth-város, Mátis Kálmán utca
    Kiadó panellakás, albérlet

    Kecskemét

    150 E Ft / hó
    2 szoba
    50 m²
    Kecskemét
    Kiadó panellakás, albérlet

    Kecskemét

    240 E Ft / hó
    2 szoba
    53 m²
    Kecskemét, Kossuth-város, Mátis Kálmán utca
    Kiadó panellakás, albérlet

    Kecskemét

    150 E Ft / hó
    2 szoba
    50 m²
    Kecskemét, Árpád-város, Damjanich utca
    Kiadó panellakás, albérlet

    Kecskemét

    200 E Ft / hó
    3 szoba
    63 m²
    Kecskemét
    Kiadó téglalakás, albérlet

    Kecskemét

    270 E Ft / hó
    2 szoba
    48 m²
    Kecskemét
    Kiadó panellakás, albérlet

    Kecskemét

    130 E Ft / hó
    2 szoba
    55 m²
    Kecskemét, Kossuth-város, Mátis Kálmán utca
    Kiadó panellakás, albérlet

    Kecskemét

    150 E Ft / hó
    2 szoba
    50 m²
    Kecskemét
    Kiadó panellakás, albérlet

    Kecskemét

    150 E Ft / hó
    2 szoba
    50 m²
    Kecskemét
    Kiadó panellakás, albérlet

    Kecskemét

    150 E Ft / hó
    2 szoba
    50 m²
    Kecskemét
    Kiadó panellakás, albérlet

    Kecskemét

    130 E Ft / hó
    2 szoba
    55 m²

    Falusi CSOK ingatlanok

    Pécsvárad
    Eladó családi ház

    Pécsvárad

    140 M Ft
    4 + 1 szoba
    119 m²
    Nagyharsány
    Eladó téglalakás

    Nagyharsány

    22.5 M Ft
    3 szoba
    71 m²
    Tatárszentgyörgy
    Eladó családi ház

    Tatárszentgyörgy

    67 M Ft
    4 szoba
    92 m²
    Seregélyes
    Eladó családi ház

    Seregélyes

    75 M Ft
    6 szoba
    160 m²
    Szob
    Eladó sorház

    Szob

    16 M Ft
    2 szoba
    45 m²
    Ceglédbercel
    Eladó családi ház

    Ceglédbercel

    104.9 M Ft
    3 szoba
    150 m²
    Jakabszállás
    Eladó családi ház

    Jakabszállás

    105 M Ft
    6 szoba
    180 m²
    Pannonhalma, Szent Márton utca 9
    Eladó családi ház

    Pannonhalma

    97.9 M Ft
    3 szoba
    100 m²