Astora Olive Club House

Kiadó iroda
Veszprém, Dózsaváros, 1. emelet

+ 4 kép 1/7
85 100 Ft85 E Ft / hó 3 700 Ft/m2
1 szoba
23 m²
1. emelet

Részletes adatok

Fűtés: Egyéb
Emelet: 1. emelet
Energetikai besorolás: Nem adta meg a hirdető

Az OTP Bank lakáshitel ajánlataFizetett hirdetés

Hitelösszeg 10 millió Ft
Futamidő 20 év
Induló törlesztőrészlet 67 508 Ft
Törlesztőrészlet a 13. hónaptól 86 071 Ft
THM 8,6 %

A tájékoztatás nem teljes körű és nem minősül ajánlattételnek. Az OTP Évnyerő Lakáshitelei 1 éves türelmi idős kölcsönök, amellyel az első 12 hónapban alacsonyabb a havi törlesztőrészlet. A tőke törlesztését a 13. hónaptól kell megkezdeni.

    Részletes kalkuláció
    +36 70 380
    Nívó Ingatlanforgalmi Szakértői Iroda
    Nívó Ingatlanforgalmi Szakértő Iroda

    Érdekel az OTP Bank kedvezményes lakáshitel ajánlata? *

    * A kérdésre „Igen” válasz bejelölése esetén, az „Üzenet küldése” gombra kattintva kijelentem, hogy az OTP Bank Nyrt. Adatkezelési tájékoztatójának tartalmát megismertem és tudomásul vettem.

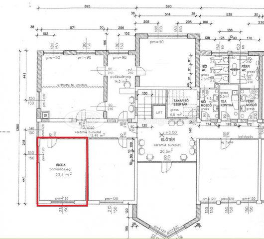
    Kiadó iroda leírása

    Veszprémben belváros közelében, irodaépületben, 1. emeleti, 23 m2-es, egy helyiségből álló iroda bérbeadó.

    Az irodaépület és az iroda riasztóval, klímával, beléptető rendszerrel ellátott. Parkolni egy sorompóval ellátott udvarban lehetséges. A 23 m2-es irodablokkhoz felszíni parkoló tartozik.

    A bérleti díj magában foglalja a fűtést-hűtést illetve a közös helyiségek villany fogyasztását, szocblokk és a közös helyiségek takarítását, teakonyha használatot. A villany saját óráról működő, fogyasztás alapján elszámolt.

    Minimum bérleti idő: 1 év. Bérleti díj: 3.700 Ft/m2 + ÁFA + villany/hó. A Tulajdonos elvárása, hogy szerződéskötéskor kaució megfizetése szükséges, ami foglalóként is biztosíték illetve az ingatlan birtokba adásakor a bérleti díj előre megfizetése.

    Az ingatlan megtekintése irodánkkal előre egyeztetett időpontban történik. Szívesen állunk rendelkezésre!

    Keresünk és kínálunk eladó és bérbeadó ingatlanokat, albérleteket Veszprém, Balaton, Bakony, Káli-medence régióban.
    Ügyeleti telefonszámunk: +36-70-3-800-323.
    A Nívó Ingatlanforgalmi Szakértői Iroda teljes eladó és bérbeadó ingatlan és albérlet kínálatát megtekintheti a www.nivoingatlan.hu oldalunkon.

    Irodai azonosító kód: N4770 Nívó ingatlan: N4770

    Hirdetés feltöltve: 2026. 03. 12. Utoljára módosítva: 2026. 05. 12.

    Irodák ára Veszprémben

    Ebből az összehasonlításból megtudhatod, hogyan viszonyul a lakás ára a környékbeli irodák átlagos árához. Ez nem azt jelenti, hogy ennyivel olcsóbb vagy drágább, mint amennyit a lakás ér, hanem hogy ennyivel tér el a környékbeli átlagtól.

    Ennek a m² ára
    Dózsaváros m² ár
    Veszprém m² ár
    4 e Ft
    4 e Ft 0%
    4 e Ft 2%
    Ennek az ára
    Dózsaváros átlagár
    Veszprém átlagár
    85 E Ft / hó m Ft
    0.5 m Ft 81%
    0.2 m Ft 64%

    Az ingatlan elhelyezkedése

    Cím: Veszprém, Dózsaváros, 1. emelet

    Kiadó irodák a környékről

    Veszprém, Dózsaváros, Jutasi út
    Kiadó iroda

    Veszprém

    250 E Ft / hó
    76 m²
    Várpalota, Szent István
    Kiadó iroda

    Várpalota

    214 E Ft / hó
    53 m²
    Veszprém, Dózsaváros, Óváros Tér
    Kiadó iroda

    Veszprém

    200 E Ft / hó
    45 m²
    Veszprém, Dózsaváros, Óváros Tér
    Kiadó iroda

    Veszprém

    100 E Ft / hó
    23 m²
    Veszprém, Dózsaváros
    Kiadó iroda

    Veszprém

    95 E Ft / hó
    2 szoba
    32 m²
    Ajka
    Kiadó iroda

    Ajka

    80 E Ft / hó
    300 m²
    Veszprém, Dózsaváros
    Kiadó iroda

    Veszprém

    57 E Ft / hó
    1 szoba
    13 m²
    Veszprém, Dózsaváros, Óváros Tér 10
    Kiadó iroda

    Veszprém

    80 E Ft / hó
    14 m²
    Veszprém, Dózsaváros, Házgyári út
    Kiadó iroda

    Veszprém

    1393 E Ft / hó
    774 m²
    Veszprém, Dózsaváros
    Kiadó iroda

    Veszprém

    300 E Ft / hó
    4 szoba
    100 m²
    Veszprém
    Kiadó iroda

    Veszprém

    200 E Ft / hó
    4 szoba
    150 m²
    Veszprém, Dózsaváros
    Kiadó iroda

    Veszprém

    95 E Ft / hó
    2 szoba
    32 m²
    Veszprém, Dózsaváros
    Kiadó iroda

    Veszprém

    284 E Ft / hó
    3 szoba
    141 m²
    Pápa
    Kiadó iroda

    Pápa

    260 E Ft / hó
    20 m²
    Veszprém, Dózsaváros
    Kiadó iroda

    Veszprém

    103 E Ft / hó
    1 szoba
    23 m²
    Veszprém, Dózsaváros
    Kiadó iroda

    Veszprém

    477 E Ft / hó
    7 szoba
    106 m²
    Veszprém
    Kiadó iroda

    Veszprém

    157 E Ft / hó
    40 m²
    40 m²
    Várpalota, Szent István
    Kiadó iroda

    Várpalota

    388 E Ft / hó
    3 szoba
    97 m²
    Veszprém, Dózsaváros
    Kiadó iroda

    Veszprém

    99 E Ft / hó
    1 szoba
    22 m²
    Veszprém, Dózsaváros, Jutasi út
    Kiadó iroda

    Veszprém

    260 E Ft / hó
    71 m²
    Veszprém, Dózsaváros
    Kiadó iroda

    Veszprém

    626 E Ft / hó
    3 szoba
    112 m²
    Veszprém, Dózsaváros, Jutasi út
    Kiadó iroda

    Veszprém

    250 E Ft / hó
    76 m²
    Veszprém, Belváros, Óváros Tér
    Kiadó iroda

    Veszprém

    120 E Ft / hó
    27 m²
    Veszprém, Belváros, Óváros Tér
    Kiadó iroda

    Veszprém

    80 E Ft / hó
    14 m²

    Falusi CSOK ingatlanok

    Kaposgyarmat
    Eladó családi ház

    Kaposgyarmat

    695 M Ft
    6 szoba
    610 m²
    Villány
    Eladó családi ház

    Villány

    31 M Ft
    1 szoba
    35 m²
    Nagyhegyes
    Eladó családi ház

    Nagyhegyes

    54.99 M Ft
    2 szoba
    79 m²
    Bakonycsernye
    Eladó családi ház

    Bakonycsernye

    39 M Ft
    3 szoba
    350 m²
    Szigetújfalu
    Eladó családi ház

    Szigetújfalu

    66 M Ft
    3 szoba
    118 m²
    Mikebuda
    Eladó családi ház

    Mikebuda

    45.9 M Ft
    7 szoba
    120 m²
    Balatonkenese
    Eladó családi ház

    Balatonkenese

    165.7 M Ft
    2 + 4 szoba
    179 m²
    Galgahévíz
    Eladó családi ház

    Galgahévíz

    43 M Ft
    3 szoba
    115 m²