Kiadó ipari ingatlan
Székesfehérvár
Részletes adatok
Az OTP Bank lakáshitel ajánlataFizetett hirdetés
A tájékoztatás nem teljes körű és nem minősül ajánlattételnek. Az OTP Évnyerő Lakáshitelei 1 éves türelmi idős kölcsönök, amellyel az első 12 hónapban alacsonyabb a havi törlesztőrészlet. A tőke törlesztését a 13. hónaptól kell megkezdeni.
Kiadó ipari ingatlan leírása
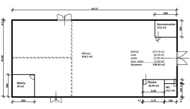
Bip-003644. Ipari Parkban az M7-es autópálya közelében 940m2 alapterületű műhely kiadó!
Jellemzők:
‣ ~4m belmagasság
‣ 3db szintbeli ipari kapu (2,9m x 3,6m)
‣ áramkapacitás: 3x100A
‣ 24 órás porta és biztonsági szolgálat
‣ fűtés gázüzemű sugárzókkal megoldott
‣ közművek önállóan mérhetőek
Bérleti díj: 1400+ÁFA/m2/hó +rezsi +kaució
Ha felkeltette érdeklődését, hívja irodánkat bizalommal, éljen ingyenes, személyre szabott hitelügyintézés szolgáltatásunkkal. Segítünk továbbá adásvételhez szükséges ügyvédi közreműködésben, energetikai tanúsítvány, valamint értékbecslés elkészítésében.
For English details please send us a message or an e-mail, thank you. ...TOVÁBBI, TÖBBEZRES INGATLAN KÍNÁLAT: www.gdn-ingatlan.hu - GDN azonosító: 381160
Hirdetés feltöltve: 2025. 04. 10. Utoljára módosítva: 2025. 09. 17.
Ipari ingatlanok ára Székesfehérvárott
Ebből az összehasonlításból megtudhatod, hogyan viszonyul a lakás ára a környékbeli ipari ingatlanok átlagos árához. Ez nem azt jelenti, hogy ennyivel olcsóbb vagy drágább, mint amennyit a lakás ér, hanem hogy ennyivel tér el a környékbeli átlagtól.
Az ingatlan elhelyezkedése
Cím: Székesfehérvár
Kiadó ipari ingatlanok a környékről

Székesfehérvár, Prohászka, LogStar Park -logisztikai központ, gyárcsarnok-cégközpont
