Astora Olive Club House

Kiadó ipari ingatlan
Hódmezővásárhely, 10 felett

+ 6 kép 1/9
250 000 Ft250 E Ft / hó 1 471 Ft/m2
170 m²
10 felett

Részletes adatok

Állapot: Átlagos
Fűtés: Elektromos
Emelet: 10 felett
Energetikai besorolás: Nem adta meg a hirdető

Az OTP Bank lakáshitel ajánlataFizetett hirdetés

Hitelösszeg 10 millió Ft
Futamidő 20 év
Induló törlesztőrészlet 67 508 Ft
Törlesztőrészlet a 13. hónaptól 86 071 Ft
THM 8,6 %

A tájékoztatás nem teljes körű és nem minősül ajánlattételnek. Az OTP Évnyerő Lakáshitelei 1 éves türelmi idős kölcsönök, amellyel az első 12 hónapban alacsonyabb a havi törlesztőrészlet. A tőke törlesztését a 13. hónaptól kell megkezdeni.

    Részletes kalkuláció
    +36 30 742
    Sárai-Kovács Ágnes
    Városi Ingatlaniroda - VING

    Érdekel az OTP Bank kedvezményes lakáshitel ajánlata? *

    * A kérdésre „Igen” válasz bejelölése esetén, az „Üzenet küldése” gombra kattintva kijelentem, hogy az OTP Bank Nyrt. Adatkezelési tájékoztatójának tartalmát megismertem és tudomásul vettem.

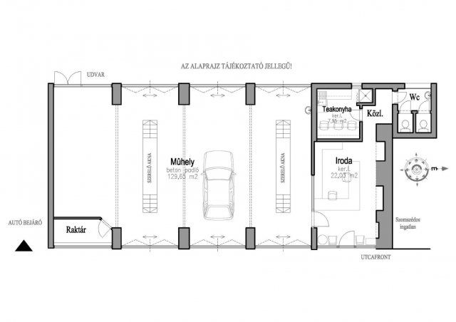
    Kiadó ipari ingatlan leírása

    Kiadó ~170,00 m2 alapterületű, autószerelő műhely és iroda helyiség szociális blokkal.
    A műhelyben 2 szerelőakna és a pilléreket összekötő rácsos tartó szerkezet található.
    3 méternél szélesebb, nyitható ajtók kerültek beépítésre az utcafronton és az udvar felöli homlokzaton is. Az épület előtti parkolóhelyek a főútról könnyen megközelíthetőek.
    A bérlés feltétele: 2 havi kaució + 1 havi bérleti díj (250 000.-Ft+ÁFA) és 1 éves bérleti szerződés.
    Az ingatlan használaton kívül van, azonnal kivehető!
    Néhány információ még az ingatlanról:

    - Alapterület: ~170,00 m2
    - Autószerelő műhely: ~130,00 m2
    - Iroda, konyha mosdó: ~40,00 m2
    - Áramellátás: Ipari áram
    - Fűtés: gázkazán, klíma
    - bérleti díj: 250 000.- Ft + ÁFA / hó

    Az ingatlannal kapcsolatos kérdéseivel várom hívását, a hét bármely napján.
    Ügyfeleink számára irodánk teljes jogi hátteret, adás-vétellel kapcsolatos térítésmentes jogi tanácsadást biztosít.
    Bank semleges hitelügyintézéssel, díjmentes hitelszűréssel és tanácsadással is hozzájárulunk, hogy megtalálja az ön számára legkedvezőbb megoldást.

    Hirdetés feltöltve: 2026. 03. 04. Utoljára módosítva: 2026. 03. 04.

    Az ingatlan elhelyezkedése

    Cím: Hódmezővásárhely, 10 felett

    Kiadó ingatlanok a környékről

    Szeged, Belváros, Bartók tér
    Kiadó téglalakás, albérlet

    Szeged

    160 E Ft / hó
    1 + 1 szoba
    41 m²
    Deszk
    Kiadó ipari ingatlan

    Deszk

    375 E Ft / hó
    2 szoba
    250 m²
    Hódmezővásárhely
    Kiadó ipari ingatlan

    Hódmezővásárhely

    579 E Ft / hó
    500 m²
    Derekegyház
    Kiadó ipari ingatlan

    Derekegyház

    2400 E Ft / hó
    2.75 ha
    2400 m²
    Szeged
    Kiadó sorház, albérlet

    Szeged

    280 E Ft / hó
    3 + 1 szoba
    90 m²
    Szeged
    Kiadó ipari ingatlan

    Szeged

    500 E Ft / hó
    600 m²
    Hódmezővásárhely
    Kiadó ipari ingatlan

    Hódmezővásárhely

    945 E Ft / hó
    630 m²
    Szentes
    Kiadó ipari ingatlan

    Szentes

    400 E Ft / hó
    6.02 ha
    3040 m²
    Szeged
    Kiadó téglalakás, albérlet

    Szeged

    200 E Ft / hó
    2 szoba
    33 m²
    Hódmezővásárhely
    Kiadó ipari ingatlan

    Hódmezővásárhely

    945 E Ft / hó
    630 m²
    Újszentiván
    Kiadó ipari ingatlan

    Újszentiván

    216 E Ft / hó
    3 ha
    120 m²
    Hódmezővásárhely
    Kiadó ipari ingatlan

    Hódmezővásárhely

    690 E Ft / hó
    3000 m²
    350 m²
    Hódmezővásárhely
    Kiadó ipari ingatlan

    Hódmezővásárhely

    2084 E Ft / hó
    1800 m²
    Hódmezővásárhely
    Kiadó ipari ingatlan

    Hódmezővásárhely

    1000 E Ft / hó
    3439 m²
    350 m²
    Hódmezővásárhely
    Kiadó ipari ingatlan

    Hódmezővásárhely

    1000 E Ft / hó
    3439 m²
    350 m²
    Hódmezővásárhely
    Kiadó ipari ingatlan

    Hódmezővásárhely

    945 E Ft / hó
    630 m²
    Szeged, Belváros, Bécsi körút
    Kiadó téglalakás, albérlet

    Szeged

    225 E Ft / hó
    2 + 1 szoba
    55 m²
    Szeged
    Kiadó téglalakás, albérlet

    Szeged

    170 E Ft / hó
    2 szoba
    55 m²
    Szeged, Újszeged, Csanádi utca
    Kiadó téglalakás, albérlet

    Szeged

    170 E Ft / hó
    1 + 1 szoba
    47 m²
    Hódmezővásárhely
    Kiadó ipari ingatlan

    Hódmezővásárhely

    1000 E Ft / hó
    9109 m²
    Hódmezővásárhely
    Kiadó ipari ingatlan

    Hódmezővásárhely

    750 E Ft / hó
    1388 m²
    500 m²
    Hódmezővásárhely, Erzsébeti út
    Kiadó ipari ingatlan

    Hódmezővásárhely

    2779 E Ft / hó
    2400 m²
    Szeged
    Kiadó téglalakás, albérlet

    Szeged

    220 E Ft / hó
    2 szoba
    37 m²
    Szeged, Belváros, Kígyó utca
    Kiadó téglalakás, albérlet

    Szeged

    290 E Ft / hó
    2 szoba
    66 m²

    Falusi CSOK ingatlanok

    Herend
    Eladó téglalakás

    Herend

    59.99 M Ft
    3 szoba
    69 m²
    Kemeneshőgyész
    Eladó családi ház

    Kemeneshőgyész

    8 M Ft
    2 szoba
    60 m²
    Vilonya
    Eladó családi ház

    Vilonya

    135 M Ft
    4 szoba
    202 m²
    Nyírtura
    Eladó családi ház

    Nyírtura

    69.9 M Ft
    4 szoba
    120 m²
    Úri
    Eladó családi ház

    Úri

    260 M Ft
    7 szoba
    300 m²
    Tápióbicske
    Eladó családi ház

    Tápióbicske

    15 M Ft
    2 szoba
    62 m²
    Magyarszék
    Eladó családi ház

    Magyarszék

    48.5 M Ft
    3 + 1 szoba
    86 m²
    Palkonya
    Eladó családi ház

    Palkonya

    137 M Ft
    6 szoba
    160 m²