Oasis Residence

Kiadó ipari ingatlan
Diósd

+ 16 kép 1/19
895 880 Ft896 E Ft / hó 3 143 Ft/m2
285 m²

Részletes adatok

Telekméret: 5053 m2
Fűtés: Egyéb
Energetikai besorolás: Nem adta meg a hirdető

Az OTP Bank lakáshitel ajánlataFizetett hirdetés

Hitelösszeg 10 millió Ft
Futamidő 20 év
Induló törlesztőrészlet 67 508 Ft
Törlesztőrészlet a 13. hónaptól 86 071 Ft
THM 8,6 %

A tájékoztatás nem teljes körű és nem minősül ajánlattételnek. Az OTP Évnyerő Lakáshitelei 1 éves türelmi idős kölcsönök, amellyel az első 12 hónapban alacsonyabb a havi törlesztőrészlet. A tőke törlesztését a 13. hónaptól kell megkezdeni.

    Részletes kalkuláció
    +36 30 560
    Nyegrutz Tamás
    referens

    Érdekel az OTP Bank kedvezményes lakáshitel ajánlata? *

    * A kérdésre „Igen” válasz bejelölése esetén, az „Üzenet küldése” gombra kattintva kijelentem, hogy az OTP Bank Nyrt. Adatkezelési tájékoztatójának tartalmát megismertem és tudomásul vettem.

    Kiadó ipari ingatlan leírása

    Ipari ingatlan bérbeadó Diósd kiemelt gazdasági övezetében
    Budapest határán, Diósd egyik legfontosabb ipari‑gazdasági övezetében kínálunk bérbeadásra egy nettó hasznos 285 m², jó műszaki állapotú, önálló ipari/műhely ingatlant.

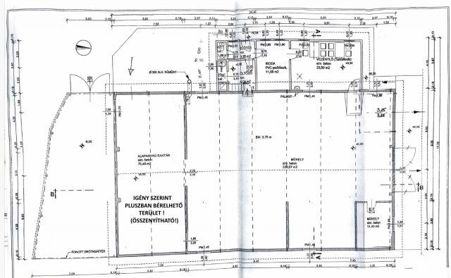
    FIGYELEM: igény szerint az alaprajzon látható ALAPANYAG RAKTÁR ( 76,49 m² ) pluszban bérelhető a területhez, ebben az esetben az össz. alapterület: 361,49 m² lenne. Ez a terület jelenleg leválasztásra került, de kérésre egybenyitható / hasznosítható !

    Az épület 2026. márciusától használatba vehető, és alkalmas gyártási, műhely-, logisztikai vagy szolgáltatóipari tevékenységre.

    Az ingatlan nagy áramkapacitással (120 A), radiátoros gázfűtéssel, teherbíró ipari aljzattal, saját iroda- és szociális blokkal, valamint őrzött, betonozott udvarral rendelkezik.
    A telephely kamionnal is könnyedén megközelíthető, a beállás és rakodás zavartalanul megoldható.

    Az épület előtt több autó számára biztosított a parkolás, de igény szerint további szabad, külső terület is bérelhető hozzá.
    Az épület napelemrendszerrel felszerelt, amely jelentősen csökkenti az üzemeltetési költségeket.

    Főbb műszaki jellemzők:

    Acélvázas, téglafalazatú ipari épület
    - 120 A ipari áram, külön mérőórákkal
    - Teherbíró, betonozott ipari padló
    - Radiátoros gázfűtés
    - LED-es ipari világítás
    - 3,75 méter belmagasság
    - Saját irodahelyiségek és szociális blokk (mosdó, öltöző, teakonyha)
    - Zárt, őrzött, kamerázott udvar
    - Napelemrendszer telepítve
    - Kamionnal is könnyen megközelíthető és bejárható
    - Különálló épület, teljes egészében saját használatú

    Elhelyezkedés és megközelíthetőség: Diósd ipari övezetének központi részén található, kiváló közlekedési kapcsolatokkal.

    - Budapest: 10–12 perc
    - M0 / M1 / M7 autópályák: 2–4 perc
    - Jó tömegközlekedés a környéken
    - Biztonságos, fejlődő vállalati környezet

    A lokáció ideális olyan vállalkozások számára, amelyeknek fontos a gyors autópálya‑kapcsolat, a könnyű áruszállítás és a főváros közelsége.

    Felhasználási lehetőségek:

    - Gyártó- és termelőüzem
    - Autószerviz, CNC-, lakatos-, faipari vagy fémipari műhely
    - Logisztikai raktár + iroda kombináció
    - E‑kereskedelmi háttérbázis
    - Kisvállalati telephely
    - Szolgáltatóipari műhelyek

    Bérleti díj: a szerződni kívánt bérleti díj: 8 EUR/m²/hó + rezsi + ÁFA (forintban fizetve). ...TOVÁBBI, TÖBBEZRES INGATLAN KÍNÁLAT: www.gdn-ingatlan.hu - GDN azonosító: 393124

    Hirdetés feltöltve: 2026. 03. 03. Utoljára módosítva: 2026. 03. 22.

    Az ingatlan elhelyezkedése

    Cím: Diósd

    Kiadó ingatlanok a környékről

    Tököl
    Kiadó ipari ingatlan

    Tököl

    124 E Ft / hó
    115 m²
    Törökbálint, LogStar Park -logisztikai központ, gyárcsarnok-cégközpont
    Kiadó ipari ingatlan

    Törökbálint

    17466 E Ft / hó
    9.4 ha
    8100 m²
    Gyál
    Kiadó téglalakás, albérlet

    Gyál

    180 E Ft / hó
    1 szoba
    20 m²
    Érd
    Kiadó családi ház, albérlet

    Érd

    150 E Ft / hó
    1 szoba
    40 m²
    Gyál
    Kiadó téglalakás, albérlet

    Gyál

    230 E Ft / hó
    1 szoba
    30 m²
    Tököl
    Kiadó ipari ingatlan

    Tököl

    1108 E Ft / hó
    1400 m²
    676 m²
    Felsőpakony, Nincs utca
    Kiadó ipari ingatlan

    Felsőpakony

    1750 E Ft / hó
    1539 m²
    Aszód, Kossuth Lajos utca
    Kiadó téglalakás, albérlet

    Aszód

    200 E Ft / hó
    3 szoba
    56 m²
    Érd
    Kiadó téglalakás, albérlet

    Érd

    150 E Ft / hó
    1 szoba
    23 m²
    Bugyi
    Kiadó ipari ingatlan

    Bugyi

    300 E Ft / hó
    500 m²
    Bag
    Kiadó ipari ingatlan

    Bag

    1200 E Ft / hó
    3 szoba
    600 m²
    Diósd
    Kiadó ipari ingatlan

    Diósd

    1120 E Ft / hó
    500 m²
    350 m²
    Diósd
    Kiadó ipari ingatlan

    Diósd

    1135 E Ft / hó
    5053 m²
    361 m²
    Dunakeszi
    Kiadó családi ház, albérlet

    Dunakeszi

    450 E Ft / hó
    3 szoba
    100 m²
    Dunaharaszti
    Kiadó téglalakás, albérlet

    Dunaharaszti

    320 E Ft / hó
    3 szoba
    60 m²
    Kerepes, Béke utca
    Kiadó ipari ingatlan

    Kerepes

    200 E Ft / hó
    1400 m²
    Gyál, Bánki Donát utca
    Kiadó ipari ingatlan

    Gyál

    250 E Ft / hó
    165 m²
    Halásztelek, II. Rákóczi Ferenc út 77
    Kiadó téglalakás, albérlet

    Halásztelek

    275 E Ft / hó
    2 szoba
    100 m²
    Szigetszentmiklós
    Kiadó ipari ingatlan

    Szigetszentmiklós

    5737 E Ft / hó
    1.74 ha
    Törökbálint, LogStar Park -logisztikai központ, gyárcsarnok-cégközpont
    Kiadó ipari ingatlan

    Törökbálint

    2156 E Ft / hó
    9.4 ha
    1000 m²
    Felsőpakony, Nincs utca
    Kiadó ipari ingatlan

    Felsőpakony

    799 E Ft / hó
    540 m²
    Budaörs
    Kiadó családi ház, albérlet

    Budaörs

    1125 E Ft / hó
    4 szoba
    160 m²
    Diósd
    Kiadó ipari ingatlan

    Diósd

    896 E Ft / hó
    5053 m²
    285 m²
    Gyál
    Kiadó ipari ingatlan

    Gyál

    480 E Ft / hó
    350 m²

    Falusi CSOK ingatlanok

    Balatonszemes
    Eladó téglalakás

    Balatonszemes

    91.5 M Ft
    2 szoba
    60 m²
    Balatonszemes
    Eladó téglalakás

    Balatonszemes

    119.9 M Ft
    2 szoba
    81 m²
    Balatonakali
    Eladó ikerház

    Balatonakali

    129 M Ft
    4 szoba
    145 m²
    Szabadbattyán
    Eladó családi ház

    Szabadbattyán

    147.99 M Ft
    5 szoba
    255 m²
    Nagyharsány
    Eladó téglalakás

    Nagyharsány

    22.5 M Ft
    3 szoba
    71 m²
    Újszilvás
    Eladó családi ház

    Újszilvás

    49.9 M Ft
    8 szoba
    310 m²
    Osztopán
    Eladó családi ház

    Osztopán

    26.6 M Ft
    2 szoba
    73 m²
    Homokbödöge
    Eladó családi ház

    Homokbödöge

    47.9 M Ft
    4 + 1 szoba
    167 m²