City Pearl

Kiadó ipari ingatlan
Diósd

+ 15 kép 1/18
809 742 Ft810 E Ft / hó 2 841 Ft/m2
285 m²
építés éve:1970

Részletes adatok

Állapot: Átlagos
Telekméret: 5053 m2
Fűtés: Gázkazán
Parkolás: Kocsibeálló
Energetikai besorolás: Nem adta meg a hirdető

Az OTP Bank lakáshitel ajánlataFizetett hirdetés

Hitelösszeg 10 millió Ft
Futamidő 20 év
Induló törlesztőrészlet 67 508 Ft
Törlesztőrészlet a 13. hónaptól 86 071 Ft
THM 8,6 %

A tájékoztatás nem teljes körű és nem minősül ajánlattételnek. Az OTP Évnyerő Lakáshitelei 1 éves türelmi idős kölcsönök, amellyel az első 12 hónapban alacsonyabb a havi törlesztőrészlet. A tőke törlesztését a 13. hónaptól kell megkezdeni.

    Részletes kalkuláció
    +36 30 560
    Nyegrutz Tamás
    referens

    Érdekel az OTP Bank kedvezményes lakáshitel ajánlata? *

    * A kérdésre „Igen” válasz bejelölése esetén, az „Üzenet küldése” gombra kattintva kijelentem, hogy az OTP Bank Nyrt. Adatkezelési tájékoztatójának tartalmát megismertem és tudomásul vettem.

    Kiadó ipari ingatlan leírása

    Ipari ingatlan bérbeadó Diósd kiemelt gazdasági övezetében
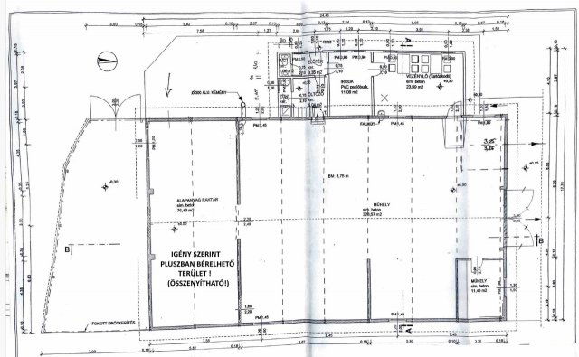
    Budapest határán, Diósd egyik legfontosabb ipari‑gazdasági övezetében kínálunk bérbeadásra egy nettó hasznos 285 m², jó műszaki állapotú, önálló ipari/műhely ingatlant.

    FIGYELEM: igény szerint az alaprajzon látható ALAPANYAG RAKTÁR ( 76,49 m² ) pluszban bérelhető a területhez, ebben az esetben az össz. alapterület: 361,49 m² lenne. Ez a terület jelenleg leválasztásra került, de kérésre egybenyitható / hasznosítható !

    Az épület 2026. márciusától használatba vehető, és alkalmas gyártási, műhely-, logisztikai vagy szolgáltatóipari tevékenységre.

    Az ingatlan nagy áramkapacitással (120 A), radiátoros gázfűtéssel, teherbíró ipari aljzattal, saját iroda- és szociális blokkal, valamint őrzött, betonozott udvarral rendelkezik.
    A telephely kamionnal is könnyedén megközelíthető, a beállás és rakodás zavartalanul megoldható.

    Az épület előtt több autó számára biztosított a parkolás, de igény szerint további szabad, külső terület is bérelhető hozzá.
    Az épület napelemrendszerrel felszerelt, amely jelentősen csökkenti az üzemeltetési költségeket.

    Főbb műszaki jellemzők:

    Acélvázas, téglafalazatú ipari épület
    - 120 A ipari áram, külön mérőórákkal
    - Teherbíró, betonozott ipari padló
    - Radiátoros gázfűtés
    - LED-es ipari világítás
    - 3,75 méter belmagasság
    - Saját irodahelyiségek és szociális blokk (mosdó, öltöző, teakonyha)
    - Zárt, őrzött, kamerázott udvar
    - Napelemrendszer telepítve
    - Kamionnal is könnyen megközelíthető és bejárható
    - Különálló épület, teljes egészében saját használatú

    Elhelyezkedés és megközelíthetőség: Diósd ipari övezetének központi részén található, kiváló közlekedési kapcsolatokkal.

    - Budapest: 10–12 perc
    - M0 / M1 / M7 autópályák: 2–4 perc
    - Jó tömegközlekedés a környéken
    - Biztonságos, fejlődő vállalati környezet

    A lokáció ideális olyan vállalkozások számára, amelyeknek fontos a gyors autópálya‑kapcsolat, a könnyű áruszállítás és a főváros közelsége.

    Felhasználási lehetőségek:

    - Gyártó- és termelőüzem
    - Autószerviz, CNC-, lakatos-, faipari vagy fémipari műhely
    - Logisztikai raktár + iroda kombináció
    - E‑kereskedelmi háttérbázis
    - Kisvállalati telephely
    - Szolgáltatóipari műhelyek

    Bérleti díj: a szerződni kívánt bérleti díj: 8 EUR/m²/hó + rezsi + ÁFA (forintban fizetve). ...TOVÁBBI, TÖBBEZRES INGATLAN KÍNÁLAT: www.gdn-ingatlan.hu - GDN azonosító: 393125

    Hirdetés feltöltve: 2026. 03. 03. Utoljára módosítva: 2026. 05. 29.

    Az ingatlan elhelyezkedése

    Cím: Diósd

    Kiadó ingatlanok a környékről

    Diósd
    Kiadó ipari ingatlan

    Diósd

    1026 E Ft / hó
    5053 m²
    361 m²
    Érd
    Kiadó téglalakás, albérlet

    Érd

    300 E Ft / hó
    2 szoba
    62 m²
    Felsőpakony, Nincs utca
    Kiadó ipari ingatlan

    Felsőpakony

    799 E Ft / hó
    540 m²
    Nagykovácsi
    Kiadó ikerház, albérlet

    Nagykovácsi

    888 E Ft / hó
    3 szoba
    200 m²
    Vác
    Kiadó ipari ingatlan

    Vác

    3904 E Ft / hó
    1300 m²
    Pomáz
    Kiadó ipari ingatlan

    Pomáz

    220 E Ft / hó
    138 m²
    Szentendre, Céh utca 8
    Kiadó téglalakás, albérlet

    Szentendre

    110 E Ft / hó
    1 szoba
    20 m²
    Érd
    Kiadó üzlethelyiség

    Érd

    80 E Ft / hó
    1 szoba
    10 m²
    Felsőpakony
    Kiadó ipari ingatlan

    Felsőpakony

    1870 E Ft / hó
    5090 m²
    2700 m²
    Sülysáp
    Kiadó ipari ingatlan

    Sülysáp

    570 E Ft / hó
    285 m²
    Vác
    Kiadó téglalakás, albérlet

    Vác

    220 E Ft / hó
    2 + 1 szoba
    57 m²
    Érd
    Kiadó családi ház, albérlet

    Érd

    699 E Ft / hó
    5 szoba
    210 m²
    Tököl
    Kiadó ipari ingatlan

    Tököl

    1049 E Ft / hó
    1400 m²
    676 m²
    Gödöllő
    Kiadó iroda

    Gödöllő

    250 E Ft / hó
    2 szoba
    100 m²
    Érd
    Kiadó családi ház, albérlet

    Érd

    250 E Ft / hó
    2 szoba
    40 m²
    Szigethalom
    Kiadó családi ház, albérlet

    Szigethalom

    250 E Ft / hó
    2 szoba
    60 m²
    Szigetszentmiklós, Városkörnyék, Rákóczi Ferenc út
    Kiadó téglalakás, albérlet

    Szigetszentmiklós

    200 E Ft / hó
    2 szoba
    56 m²
    Diósd
    Kiadó ipari ingatlan

    Diósd

    810 E Ft / hó
    5053 m²
    285 m²
    Kerepes, Béke utca
    Kiadó ipari ingatlan

    Kerepes

    200 E Ft / hó
    1400 m²
    Érd
    Kiadó családi ház, albérlet

    Érd

    699 E Ft / hó
    5 szoba
    210 m²
    Tököl
    Kiadó ipari ingatlan

    Tököl

    117 E Ft / hó
    115 m²
    Érd
    Kiadó téglalakás, albérlet

    Érd

    300 E Ft / hó
    2 szoba
    62 m²
    Alsónémedi
    Kiadó ipari ingatlan

    Alsónémedi

    2130 E Ft / hó
    2 szoba
    1200 m²
    Érd, Érdliget - Kutyavár, Lótusz
    Kiadó családi ház, albérlet

    Érd

    600 E Ft / hó
    8 szoba
    260 m²

    Falusi CSOK ingatlanok

    Mikebuda
    Eladó családi ház

    Mikebuda

    45.9 M Ft
    7 szoba
    120 m²
    Galgahévíz
    Eladó családi ház

    Galgahévíz

    43 M Ft
    3 szoba
    115 m²
    Szigliget, Soponyai út
    Eladó ikerház

    Szigliget

    429 M Ft
    7 + 2 szoba
    212 m²
    Balatonszemes
    Eladó téglalakás

    Balatonszemes

    123.3 M Ft
    2 szoba
    0 m²
    Egyházasrádóc
    Eladó családi ház

    Egyházasrádóc

    79.5 M Ft
    4 szoba
    100 m²
    Balatonszepezd
    Eladó családi ház

    Balatonszepezd

    299 M Ft
    5 szoba
    220 m²
    Balatonszemes
    Eladó téglalakás

    Balatonszemes

    125.2 M Ft
    2 szoba
    50 m²
    Lajoskomárom
    Eladó családi ház

    Lajoskomárom

    22.9 M Ft
    2 szoba
    66 m²