Astora Art House

Eladó telek
Siófok

110 000 000 Ft110 M Ft 102 996 Ft/m2
1068 m²

Részletes adatok

Telekméret: 1068 m2
Fűtés: Egyéb
Közmű: Víz, Villany
Övezet: Lakóövezet
Energetikai besorolás: Nem adta meg a hirdető

Az OTP Bank lakáshitel ajánlataFizetett hirdetés

+36 30 147
Pintérné Németh Krisztina
referens

Érdekel az OTP Bank kedvezményes lakáshitel ajánlata? *

* A kérdésre „Igen” válasz bejelölése esetén, az „Üzenet küldése” gombra kattintva kijelentem, hogy az OTP Bank Nyrt. Adatkezelési tájékoztatójának tartalmát megismertem és tudomásul vettem.

Eladó telek leírása

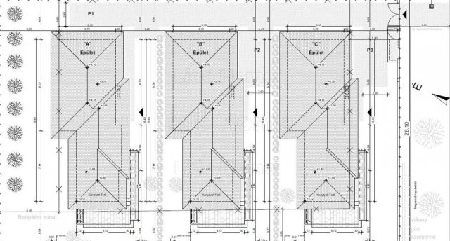
A LIDO HOME ingatlan siófoki irodája eladásra kínálja ezt az ÚJ ÉPÍTÉSŰ CSALÁDI HÁZAS projektet Siófok belvárosában. A telek elhelyezkedése kiváló, a város központjában található, a közelben közintézmények, bevásárlási lehetőségek, iskolák, óvodák, bölcsőde is néhány percre gyalog! Vasútállomás néhány perc séta, a Balaton-part kb. 900 méterre található! Az 1068 m2-es telekre 3 db családi ház tervezése megtörtént, a közművek -részben a telken, részben a telek előtt - rendelkezésre állnak. A projekt keretében 3 db családi ház kerül megépítésre egy telken, a házak önálló helyrajzi számmal fognak rendelkezni. A házak 30 cm-es tégla falazattal készülnek, hőszigeteléssel, magas műszaki tartalommal. -egyenként kb. 350 m2-es telken épülnek, nettó 64 m2 alapterülettel, 10,86 m2 terasszal -amerikai konyhás nappali + 2 szoba -előszoba, fürdőszoba WC-vel, közlekedő -a melegvíz ellátást, illetve fűtést hőszivattyú biztosítja padlófűtéssel -a nyílászárók motoros redőnnyel lesznek ellátva -a tetőre napelem kerül felhelyezésre Minden ház esetében 1 db gépkocsi beálló zárt udvaron, viacolor burkolattal benne van az árban. Az ingatlan előre egyeztetetten megtekinthető. Az ingatlan autóval Budapestről 80 perc alatt elérhető az M7 autópályáról. Amennyiben a LIDO HOME által kínált SIÓFOKI CSALÁDI HÁZAS PROJEKT, vagy bármely a kínálatunkban található egyéb INGATLAN felkeltette az érdeklődését, hívjon a megadott telefonszámon. Vásárolna, de nincs rá keret? Kollégám díjmentes, bank semleges hitel ügyintézéssel áll rendelkezésére. LIDO HOME- Ingatlanok egy életen át!

Hirdetés feltöltve: 2026. 04. 16. Utoljára módosítva: 2026. 05. 05.

Telkek ára Siófokon

Ebből az összehasonlításból megtudhatod, hogyan viszonyul a lakás ára a környékbeli telkek átlagos árához. Ez nem azt jelenti, hogy ennyivel olcsóbb vagy drágább, mint amennyit a lakás ér, hanem hogy ennyivel tér el a környékbeli átlagtól.

Ennek a m² ára
Siófok m² ár
103 e Ft
73 e Ft -41%
Ennek az ára
Siófok átlagár
110 M Ft m Ft
74.1 m Ft -48%

Az ingatlan elhelyezkedése

Cím: Siófok

Eladó telkek a környékről

Siófok
Eladó telek

Siófok

130 M Ft
1678 m²
Siófok
Eladó telek

Siófok

94.9 M Ft
814 m²
0 m²
Kőröshegy
Eladó telek

Kőröshegy

26 M Ft
830 m²
0 m²
Siófok
Eladó telek

Siófok

34 M Ft
933 m²
0 m²
Siófok
Eladó telek

Siófok

36.9 M Ft
600 m²
Fonyód
Eladó telek

Fonyód

24.4 M Ft
675 m²
0 m²
Nagyberény
Eladó telek

Nagyberény

7.49 M Ft
2007 m²
0 m²
Siófok
Eladó telek

Siófok

51.9 M Ft
792 m²
Nagyberény
Eladó telek

Nagyberény

7.49 M Ft
2007 m²
0 m²
Siófok
Eladó telek

Siófok

100.6 M Ft
4573 m²
Siófok
Eladó telek

Siófok

59.9 M Ft
2862 m²
0 m²
Siófok
Eladó telek

Siófok

60 M Ft
2862 m²
Balatonszemes
Eladó telek

Balatonszemes

14.999 M Ft
3386 m²
0 m²
Siófok
Eladó telek

Siófok

59 M Ft
839 m²
Siófok
Eladó telek

Siófok

16.8 M Ft
3111 m²
Bábonymegyer
Eladó telek

Bábonymegyer

4.5 M Ft
2698 m²
0 m²
Siófok, Somlay Artúr utca
Eladó telek

Siófok

45 M Ft
1679 m²
Siófok
Eladó telek

Siófok

39.5 M Ft
805 m²
Siófok
Eladó telek

Siófok

70 M Ft
810 m²
Kőröshegy
Eladó telek

Kőröshegy

26 M Ft
830 m²
0 m²
Siófok
Eladó telek

Siófok

56.9 M Ft
1044 m²
0 m²
Siófok
Eladó telek

Siófok

31.99 M Ft
659 m²
Nagyberény
Eladó telek

Nagyberény

7.5 M Ft
1748 m²
0 m²
Kereki
Eladó telek

Kereki

36.999 M Ft
1.23 ha
0 m²

Falusi CSOK ingatlanok

Apaj
Eladó családi ház

Apaj

52.9 M Ft
3 szoba
70 m²
Balatonőszöd
Eladó családi ház

Balatonőszöd

72 M Ft
4 szoba
92 m²
Törtel
Eladó családi ház

Törtel

20 M Ft
2 szoba
63 m²
Hegyeshalom, Margaréta utca 12
Eladó téglalakás

Hegyeshalom

32.89 M Ft
1 szoba
27 m²
Kamond
Eladó családi ház

Kamond

39.9 M Ft
4 szoba
101 m²
Somlóvásárhely
Eladó családi ház

Somlóvásárhely

26.9 M Ft
2 + 1 szoba
102 m²
Balatonszárszó
Eladó családi ház

Balatonszárszó

30 M Ft
3 szoba
45 m²
Somlóvásárhely
Eladó családi ház

Somlóvásárhely

29.9 M Ft
3 + 1 szoba
93 m²