Aerogate Homes

Eladó telek
Miskolc

+ 4 kép 1/7
8 990 000 Ft8.99 M Ft 4 784 Ft/m2
1879 m²

Részletes adatok

Telekméret: 1879 m2
Fűtés: Egyéb
Közmű: Víz
Övezet: Lakóövezet
Energetikai besorolás: Nem adta meg a hirdető

Az OTP Bank lakáshitel ajánlataFizetett hirdetés

Hitelösszeg 10 millió Ft
Futamidő 20 év
Induló törlesztőrészlet 67 508 Ft
Törlesztőrészlet a 13. hónaptól 86 071 Ft
THM 8,6 %

A tájékoztatás nem teljes körű és nem minősül ajánlattételnek. Az OTP Évnyerő Lakáshitelei 1 éves türelmi idős kölcsönök, amellyel az első 12 hónapban alacsonyabb a havi törlesztőrészlet. A tőke törlesztését a 13. hónaptól kell megkezdeni.

    Részletes kalkuláció
    +36 30 366
    NEXTRA INGATLAN
    referens

    Érdekel az OTP Bank kedvezményes lakáshitel ajánlata? *

    * A kérdésre „Igen” válasz bejelölése esetén, az „Üzenet küldése” gombra kattintva kijelentem, hogy az OTP Bank Nyrt. Adatkezelési tájékoztatójának tartalmát megismertem és tudomásul vettem.

    Eladó telek leírása

    Miskolctapolca egyik közkedvelt részén kínálunk megvételre egy üdülőövezeti telket, amely jogerős építési engedéllyel rendelkezik.

    Területe: 1879 m²

    A vezetékes víz a telken belül elérhető, míg villany és gáz az utcában rendelkezésre áll.

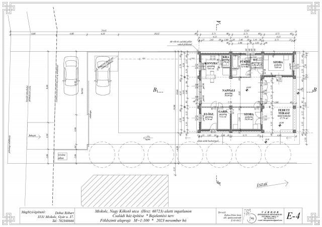
    Az ingatlanhoz tartozó építési engedély egy 81 m² alapterületű lakóház felépítésére szól.
    A tervdokumentáció és a jogerős építési engedély rendelkezésre áll, és a vételár részét képezi.

    Ideális választás mindazok számára, akik nyugodt, természetközeli környezetben szeretnék megvalósítani álmaik otthonát vagy üdülőjét.

    Hirdetés feltöltve: 2026. 03. 21. Utoljára módosítva: 2026. 03. 21.

    Telkek ára Miskolcon

    Ebből az összehasonlításból megtudhatod, hogyan viszonyul a lakás ára a környékbeli telkek átlagos árához. Ez nem azt jelenti, hogy ennyivel olcsóbb vagy drágább, mint amennyit a lakás ér, hanem hogy ennyivel tér el a környékbeli átlagtól.

    Ennek a m² ára
    Miskolc m² ár
    5 e Ft
    41 e Ft 88%
    Ennek az ára
    Miskolc átlagár
    8.99 M Ft m Ft
    53.2 m Ft 83%

    Az ingatlan elhelyezkedése

    Cím: Miskolc

    Eladó telkek a környékről

    Miskolc
    Eladó telek

    Miskolc

    3200 M Ft
    52.85 ha
    Miskolc
    Eladó telek

    Miskolc

    6.99 M Ft
    707 m²
    Miskolc
    Eladó telek

    Miskolc

    383.831 M Ft
    2.05 ha
    2.05 ha
    Miskolc
    Eladó telek

    Miskolc

    9.9 M Ft
    864 m²
    Ózd
    Eladó telek

    Ózd

    1.2 M Ft
    3000 m²
    0 m²
    Miskolc
    Eladó telek

    Miskolc

    185 M Ft
    7.29 ha
    Miskolc, Miskolc-Tapolca, Iglói utca
    Eladó telek

    Miskolc

    21.9 M Ft
    2 szoba
    Miskolc, Bábonyibérc, Feszty Árpád utca
    Eladó telek

    Miskolc

    43 M Ft
    5941 m²
    Miskolc
    Eladó telek

    Miskolc

    7.9 M Ft
    2530 m²
    Edelény, 27 főút
    Eladó telek

    Edelény

    8 M Ft
    8399 m²
    0 m²
    Miskolc
    Eladó telek

    Miskolc

    990 M Ft
    16.5 ha
    Bekecs, Kenderföld utca
    Eladó telek

    Bekecs

    2.9 M Ft
    339 m²
    Miskolc
    Eladó telek

    Miskolc

    5.9 M Ft
    889 m²
    0 m²
    Miskolc
    Eladó telek

    Miskolc

    0.99 M Ft
    1432 m²
    0 m²
    Miskolc
    Eladó telek

    Miskolc

    185 M Ft
    7.29 ha
    Miskolc, Miskolc-Tapolca, Remete utca
    Eladó telek

    Miskolc

    5.5 M Ft
    432 m²
    0 m²
    Miskolc
    Eladó telek

    Miskolc

    7.9 M Ft
    2530 m²
    Onga
    Eladó telek

    Onga

    25.461 M Ft
    2173 m²
    Miskolc
    Eladó telek

    Miskolc

    3200 M Ft
    52.85 ha
    Miskolc
    Eladó telek

    Miskolc

    0.99 M Ft
    1129 m²
    0 m²
    Ózd
    Eladó telek

    Ózd

    2.5 M Ft
    2009 m²
    0 m²
    Ózd
    Eladó telek

    Ózd

    2.3 M Ft
    963 m²
    0 m²
    Miskolc
    Eladó telek

    Miskolc

    5.9 M Ft
    1126 m²
    0 m²
    Miskolc
    Eladó telek

    Miskolc

    6.99 M Ft
    707 m²

    Falusi CSOK ingatlanok

    Szigliget
    Eladó családi ház

    Szigliget

    299 M Ft
    3 szoba
    95 m²
    Nyírbogdány
    Eladó családi ház

    Nyírbogdány

    48 M Ft
    4 szoba
    135 m²
    Herend
    Eladó téglalakás

    Herend

    59.99 M Ft
    3 szoba
    69 m²
    Gyöngyössolymos
    Eladó családi ház

    Gyöngyössolymos

    57.99 M Ft
    4 szoba
    160 m²
    Tápióbicske
    Eladó családi ház

    Tápióbicske

    17.4 M Ft
    2 szoba
    84 m²
    Hosszúhetény, Iskola utca 2
    Eladó családi ház

    Hosszúhetény

    9.3 M Ft
    4 szoba
    145 m²
    Gesztely
    Eladó családi ház

    Gesztely

    34.9 M Ft
    3 szoba
    95 m²
    Bodolyabér, Zrínyi utca
    Eladó családi ház

    Bodolyabér

    24.9 M Ft
    5 szoba
    125 m²