Metrodom

Eladó telek
Diósd

+ 2 kép 1/5
89 000 000 Ft89 M Ft 50 857 Ft/m2
1750 m2

Részletes adatok

Telekméret: 1750 m2
Fűtés: Egyéb
Övezet: Lakóövezet
Energetikai besorolás: Nem adta meg a hirdető

Az OTP Bank lakáshitel ajánlataFizetett hirdetés

+36 70 455
Bognár László
referens

Érdekel az OTP Bank kedvezményes lakáshitel ajánlata? *

* A kérdésre „Igen” válasz bejelölése esetén, az „Üzenet küldése” gombra kattintva kijelentem, hogy az OTP Bank Nyrt. Adatkezelési tájékoztatójának tartalmát megismertem és tudomásul vettem.

Eladó telek leírása

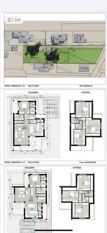
Eladó belterületi telek Diósdon – 2 ház építésére alkalmas!

Eladásra kínálok Diósd belterületén egy nagy méretű, összközműves telket, kiváló ár-érték aránnyal.
Az ingatlan építési engedéllyel és tervekkel rendelkezik 2 családi ház építésére, így azonnal kezdhető az építkezés!

Főbb adatok:

Helyszín: Diósd, belterület

Méret: 1750 m²

Összközműves (víz, villany, csatorna)

Építési engedély és tervdokumentáció rendelkezésre áll

Besorolás: Lke-11 (kertvárosias lakóövezet)
Beépíthetőség: 20%
Megengedett építménymagasság: 5,5 m
Építési mód: szabadon álló

Csendes, rendezett környék, mégis közel mindenhez

Kiváló befektetési lehetőség, akár két generáció részére is

Kitűnő ár-érték arány!
Jöjjön el, nézze meg, nem fog csalódni! ...TOVÁBBI, TÖBBEZRES INGATLAN KÍNÁLAT: www.gdn-ingatlan.hu - GDN azonosító: 389165

Hirdetés feltöltve: 2025. 11. 05. Utoljára módosítva: 2025. 11. 05.

Telkek ára Diósdon

Ebből az összehasonlításból megtudhatod, hogyan viszonyul a lakás ára a környékbeli telkek átlagos árához. Ez nem azt jelenti, hogy ennyivel olcsóbb vagy drágább, mint amennyit a lakás ér, hanem hogy ennyivel tér el a környékbeli átlagtól.

Ennek a m² ára
Diósd m² ár
51 e Ft
171 e Ft 70%
Ennek az ára
Diósd átlagár
89 M Ft m Ft
60.1 m Ft -48%

Az ingatlan elhelyezkedése

Cím: Diósd

Eladó telkek a környékről

Eladó telek
Eladó telek

Sóskút

32.17 M Ft
6434 m²
Eladó telek
Eladó telek

Diósd, Homokos utca

39.9 M Ft
683 m²
Eladó telek
Eladó telek

Diósd

42 M Ft
700 m²
Eladó telek
Eladó telek

Tápiószele

2.8 M Ft
1140 m²
Eladó telek
Eladó telek

Budakeszi, Budakeszi kertváros

6.9 M Ft
1400 m²
Eladó telek
Eladó telek

Tápiószele

4.9 M Ft
1453 m²
Eladó telek
Eladó telek

Diósd, Balatoni út

101 M Ft
959 m²
959 m2
Eladó telek
Eladó telek

Csömör, Híd utca

75 M Ft
3052 m²
Eladó telek
Eladó telek

Diósd

34 M Ft
1867 m²
1867 m2
Eladó telek
Eladó telek

Diósd, SEREGÉLY utca

40.9 M Ft
700 m²
Eladó telek
Eladó telek

Érd

42 M Ft
2200 m²
2200 m2
Eladó telek
Eladó telek

Diósd, Homokbánya utca

44 M Ft
683 m²
683 m2
Eladó telek
Eladó telek

Vecsés, Vecsés

999.9 M Ft
21400 m²
Eladó telek
Eladó telek

Kerepes, Kerepes 4483 utca

11.1 M Ft
556 m²
Eladó telek
Eladó telek

Csömör, Csömör - szántó terület

70 M Ft
9000 m²
Eladó telek
Eladó telek

Diósd

44 M Ft
1107 m²
Eladó telek
Eladó telek

Diósd

47.9 M Ft
631 m²
631 m2
Eladó telek
Eladó telek

Törökbálint, Anna hegy

170 M Ft
20000 m²
20000 m2
Eladó telek
Eladó telek

Diósd

55 M Ft
1581 m²
Eladó telek
Eladó telek

Budaörs, Szabadság utca

280 M Ft
10000 m²
Eladó telek
Eladó telek

Diósd

89.9 M Ft
720 m²
720 m2
Eladó telek
Eladó telek

Törökbálint

96 M Ft
9600 m²
9600 m2
Eladó telek
Eladó telek

Szentendre

32 M Ft
2926 m²
Eladó telek
Eladó telek

Pilisborosjenő

121 M Ft
2580 m²

Falusi CSOK ingatlanok

Eladó családi ház
Eladó családi ház

Velény

6.3 M Ft
2 szoba
60 m2
Eladó ikerház
Eladó ikerház

Táborfalva

49.9 M Ft
4 szoba
54 m2
Eladó családi ház
Eladó családi ház

Vásárosdombó

14.99 M Ft
2 szoba
69 m2
Eladó családi ház
Eladó családi ház

Badacsonytördemic

182.36 M Ft
4 szoba
160 m2
Eladó családi ház
Eladó családi ház

Tápióság

62 M Ft
4 szoba
72 m2
Eladó családi ház
Eladó családi ház

Ónod, Kossuth út 10

27.499 M Ft
3 + 2 szoba
120 m2
Eladó családi ház
Eladó családi ház

Kenyeri

21.8 M Ft
2 szoba
75 m2
Eladó családi ház
Eladó családi ház

Vasvár

64.9 M Ft
3 szoba
91 m2