Astora Márvány8

Eladó telek
Budapest, XX. kerület

+ 10 kép 1/13
39 900 000 Ft39.9 M Ft 505 063 Ft/m2
79 m2

Részletes adatok

Telekméret: 79 m2
Fűtés: Egyéb
Közmű: Víz, Gáz, Villany, Csatorna
Övezet: Lakóövezet
Energetikai besorolás: Nem adta meg a hirdető

Az OTP Bank lakáshitel ajánlataFizetett hirdetés

+36 1 444
Balázs István Jácint
Duna House Kispest

Érdekel az OTP Bank kedvezményes lakáshitel ajánlata? *

* A kérdésre „Igen” válasz bejelölése esetén, az „Üzenet küldése” gombra kattintva kijelentem, hogy az OTP Bank Nyrt. Adatkezelési tájékoztatójának tartalmát megismertem és tudomásul vettem.

Eladó telek leírása

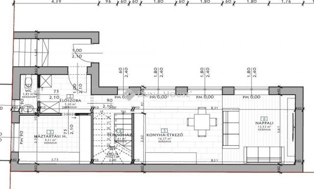
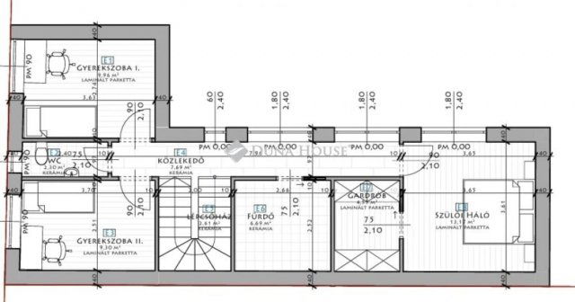
Építési telek eladó Budapest XX. kerület, Nagysándor József utca

Eladásra kínálunk egy kiváló adottságokkal rendelkező építési telket Budapest XX. kerületének kertvárosi részén, a Nagysándor József utcában.
A telek érvényes építési engedéllyel rendelkezik, mely alapján egy modern, kétszintes családi ház építhető rá, 60 m² alapterületű földszinttel és 60 m² emeleti szinttel összesen 120 m² lakótérrel.

Főbb jellemzők:

Beépíthetőség: kétszintes, összesen 120 m² lakóház

Érvényes építési engedély az építkezés akár azonnal megkezdhető

Csendes, kertvárosi környezet, rendezett utcakép, barátságos szomszédság

Közművek a telek előtt / telken belül (ha pontosítani szeretnéd, bele tudom írni)

Környék, infrastruktúra:

A telek kiváló közlekedéssel rendelkezik: néhány perces sétával elérhető buszmegálló, a HÉV és vasútállomás pedig könnyen megközelíthető, így a belváros is gyorsan elérhető.
A közelben óvoda, iskola, boltok, orvosi rendelő, gyógyszertár és bevásárlási lehetőségek találhatók, így ideális választás családok számára is.

Miért érdemes megvenni?

Ez a telek remek lehetőséget kínál arra, hogy saját igényeid szerint építsd meg álmaid otthonát egy nyugodt, zöldövezeti környezetben, mégis jó közlekedési kapcsolatokkal.
A jogilag rendezett helyzet és az érvényes építési engedély pedig garantálja, hogy az építkezés zökkenőmentesen elindulhat.
A Duna House teljes kínálatával kapcsolatban segítségére tudok lenni.
Amennyiben telefonon nem ér el, kérem küldjön érdeklődő üzenetet.
Szükség esetén román nyelven is tudok segíteni

Referencia szám: TK066596

Hirdetés feltöltve: 2025. 10. 30. Utoljára módosítva: 2025. 12. 17.

Telkek ára Budapesten

Ebből az összehasonlításból megtudhatod, hogyan viszonyul a lakás ára a környékbeli telkek átlagos árához. Ez nem azt jelenti, hogy ennyivel olcsóbb vagy drágább, mint amennyit a lakás ér, hanem hogy ennyivel tér el a környékbeli átlagtól.

Ennek a m² ára
XX. kerület m² ár
Budapest m² ár
505 e Ft
448 e Ft -13%
171 e Ft -195%
Ennek az ára
XX. kerület átlagár
Budapest átlagár
39.9 M Ft m Ft
106.9 m Ft 63%
190.7 m Ft 79%

Az ingatlan elhelyezkedése

Cím: Budapest, XX. kerület

Eladó ingatlanok a környékről

Eladó téglalakás
Eladó téglalakás

VI. kerület, Külső Terézváros, Szív utca

119.5 M Ft
3 szoba
94 m2
Eladó téglalakás
Eladó téglalakás

I. kerület, Krisztinaváros, Feszty Árpád utca

78.99 M Ft
1 szoba
28 m2
Eladó telek
Eladó telek

XX. kerület

89.9 M Ft
556 m²
Eladó téglalakás
Eladó téglalakás

III. kerület, Rómaifürdő, Királyok útja

139 M Ft
3 szoba
65 m2
Eladó téglalakás
Eladó téglalakás

XX. kerület

81.9 M Ft
3 szoba
76 m2
Eladó téglalakás
Eladó téglalakás

VIII. kerület

69.9 M Ft
2 szoba
36 m2
Eladó telek
Eladó telek

XX. kerület

39.9 M Ft
79 m²
Eladó téglalakás
Eladó téglalakás

XVII. kerület

92.9 M Ft
3 szoba
79 m2
Eladó téglalakás
Eladó téglalakás

XXI. kerület

32 M Ft
1 + 2 szoba
19 m2
Eladó téglalakás
Eladó téglalakás

V. kerület, Belváros, Petőfi Sándor utca

134 M Ft
2 szoba
59 m2
Eladó téglalakás
Eladó téglalakás

XII. kerület

73.99 M Ft
2 szoba
43 m2
Eladó téglalakás
Eladó téglalakás

XII. kerület

119 M Ft
3 szoba
65 m2
Eladó téglalakás
Eladó téglalakás

V. kerület, Belváros, Belgrád rakpart

78 M Ft
1 + 1 szoba
42 m2
Eladó telek
Eladó telek

XX. kerület

39.9 M Ft
79 m²
Eladó panellakás
Eladó panellakás

III. kerület

55.7 M Ft
1 szoba
32 m2
Eladó üzlethelyiség
Eladó üzlethelyiség

II. kerület, Országút, Margit körút

6.999 M Ft
5 m2
Eladó téglalakás
Eladó téglalakás

III. kerület, Óbuda, Szomolnok utca

89.9 M Ft
2 + 2 szoba
96 m2
Eladó téglalakás
Eladó téglalakás

VIII. kerület, Palotanegyed, Rákóczi út

190 M Ft
5 szoba
121 m2
Eladó téglalakás
Eladó téglalakás

IV. kerület, Újpest, Kassai utca

84.9 M Ft
2 + 1 szoba
71 m2
Eladó telek
Eladó telek

XX. kerület

2499 M Ft
32855 m²
Eladó téglalakás
Eladó téglalakás

XIII. kerület, Angyalföld, Fiastyúk utca

39.9 M Ft
1 + 1 szoba
34 m2
Eladó telek
Eladó telek

XX. kerület

197.841 M Ft
15578 m²
Eladó panellakás
Eladó panellakás

VIII. kerület

57.95 M Ft
1 + 1 szoba
41 m2
Eladó téglalakás
Eladó téglalakás

VII. kerület

89.9 M Ft
2 szoba
60 m2

Falusi CSOK ingatlanok

Eladó családi ház
Eladó családi ház

Döbrönte

110 M Ft
2 + 2 szoba
183 m2
Eladó téglalakás
Eladó téglalakás

Rétság

44.9 M Ft
2 szoba
55 m2
Eladó családi ház
Eladó családi ház

Vásárosdombó

14.99 M Ft
2 szoba
69 m2
Eladó családi ház
Eladó családi ház

Kisdér

149.8 M Ft
4 szoba
205 m2
Eladó családi ház
Eladó családi ház

Dunaszekcső

27.5 M Ft
3 szoba
128 m2
Eladó családi ház
Eladó családi ház

Bajánsenye

34.9 M Ft
5 szoba
130 m2
Eladó családi ház
Eladó családi ház

Tapsony

23.8 M Ft
3 szoba
130 m2
Eladó családi ház
Eladó családi ház

Tápióság

30 M Ft
3 szoba
67 m2