Oasis Residence

Eladó téglalakás
Veresegyház, 1. emelet

+ 3 kép 1/6
69 990 000 Ft69.99 M Ft 1 128 871 Ft/m2
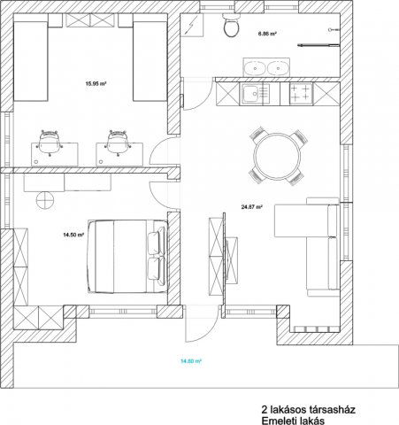
2 szoba
62 m²
1. emelet
építés éve:1980

Részletes adatok

Állapot: Felújított
Fűtés: Egyéb
Emelet: 1. emelet
Parkolás: Kocsibeálló
Komfort: Összkomfortos
Energetikai besorolás: Nem adta meg a hirdető

Az OTP Bank lakáshitel ajánlataFizetett hirdetés

+36 20 203
Jenei Szilvia
referens

Érdekel az OTP Bank kedvezményes lakáshitel ajánlata? *

* A kérdésre „Igen” válasz bejelölése esetén, az „Üzenet küldése” gombra kattintva kijelentem, hogy az OTP Bank Nyrt. Adatkezelési tájékoztatójának tartalmát megismertem és tudomásul vettem.

Eladó téglalakás leírása

Felújítás alatt álló, kertkapcsolatos lakások eladók Veresegyházon!

Eladásra kínálok egy kétlakásos társasház , emeleti lakását Veresegyházon, a vasúti megálló közelében, csendes, jól megközelíthető környezetben.

Az ingatlan egy 400 m²-es telken helyezkedik el. A ház teljes körű felújítás alatt áll:
új tetőszerkezet
10 cm külső hőszigetelés
modern, energia hatékony műszaki megoldások

Várható költözés: 2026. április

Műszaki tartalom:

• hőszivattyús rendszer
• teljes padlófűtés
• klíma minden lakásban
• korszerű, energia hatékony kialakítás

Kertkapcsolat:

Mindkét lakáshoz kb. 200 m² saját kertrész tartozik.
A kerítés a ház sarkával egy vonalba kerül kialakításra, így autóbeállási lehetőség biztosított telken belül.

A lakások a ház két oldalán helyezkednek el, teljesen külön bejárattal, ügyvéd általi megosztással.

Amit kínálunk:

praktikus térkialakítás
modern, energiatakarékos műszaki megoldások
saját kertkapcsolat
klíma a lakásokban
egyedi igények figyelembe vétele a kivitelezés során

Ideális választás családoknak, első otthonnak vagy akár befektetésnek is.

Várom hívását a hét bármely napján. ...TOVÁBBI, TÖBBEZRES INGATLAN KÍNÁLAT: www.gdn-ingatlan.hu - GDN azonosító: 393038

Hirdetés feltöltve: 2026. 02. 26. Utoljára módosítva: 2026. 05. 15.

2 szobás téglalakások ára Veresegyházon

Ebből az összehasonlításból megtudhatod, hogyan viszonyul a lakás ára a környékbeli téglalakások átlagos árához. Ez nem azt jelenti, hogy ennyivel olcsóbb vagy drágább, mint amennyit a lakás ér, hanem hogy ennyivel tér el a környékbeli átlagtól.

Ennek a m² ára
Veresegyház m² ár
1129 e Ft
1559 e Ft 28%
Ennek az ára
Veresegyház átlagár
69.99 M Ft m Ft
84.1 m Ft 17%

Az ingatlan elhelyezkedése

Cím: Veresegyház, 1. emelet

Eladó téglalakások a környékről

Göd
Eladó téglalakás

Göd

28.9 M Ft
2 szoba
46 m²
Veresegyház
Eladó téglalakás

Veresegyház

125 M Ft
4 szoba
109 m²
Göd
Eladó téglalakás

Göd

46.5 M Ft
3 szoba
69 m²
Veresegyház
Eladó téglalakás

Veresegyház

84.3 M Ft
2 szoba
58 m²
Veresegyház
Eladó téglalakás

Veresegyház

52.878 M Ft
1 szoba
32 m²
Veresegyház
Eladó téglalakás

Veresegyház

123.4 M Ft
3 szoba
85 m²
Veresegyház
Eladó téglalakás

Veresegyház

125 M Ft
4 szoba
109 m²
Göd
Eladó téglalakás

Göd

44.5 M Ft
3 szoba
69 m²
Veresegyház
Eladó téglalakás

Veresegyház

125 M Ft
4 szoba
109 m²
Veresegyház
Eladó téglalakás

Veresegyház

125 M Ft
4 szoba
109 m²
Veresegyház
Eladó téglalakás

Veresegyház

68.716 M Ft
2 szoba
46 m²
Veresegyház
Eladó téglalakás

Veresegyház

77.584 M Ft
2 szoba
49 m²
Göd
Eladó téglalakás

Göd

44.5 M Ft
3 szoba
70 m²
Göd
Eladó téglalakás

Göd

29.5 M Ft
2 szoba
47 m²
Veresegyház
Eladó téglalakás

Veresegyház

110.787 M Ft
3 szoba
69 m²
Veresegyház
Eladó téglalakás

Veresegyház

129.2 M Ft
5 szoba
114 m²
Göd
Eladó téglalakás

Göd

28.9 M Ft
2 szoba
44 m²
Veresegyház
Eladó téglalakás

Veresegyház

99.8 M Ft
2 szoba
69 m²
Göd
Eladó téglalakás

Göd

28.9 M Ft
2 szoba
46 m²
Veresegyház
Eladó téglalakás

Veresegyház

121.3 M Ft
3 szoba
84 m²
Göd
Eladó téglalakás

Göd

66.9 M Ft
4 szoba
94 m²
Göd
Eladó téglalakás

Göd

44.5 M Ft
3 szoba
73 m²
Göd
Eladó téglalakás

Göd

44.9 M Ft
3 szoba
58 m²
Veresegyház
Eladó téglalakás

Veresegyház

99.761 M Ft
2 szoba
52 m²

Falusi CSOK ingatlanok

Tápiógyörgye
Eladó családi ház

Tápiógyörgye

22.5 M Ft
3 + 1 szoba
83 m²
Ceglédbercel
Eladó családi ház

Ceglédbercel

89 M Ft
4 szoba
135 m²
Tápióság
Eladó családi ház

Tápióság

57 M Ft
4 szoba
94 m²
Sumony
Eladó családi ház

Sumony

19 M Ft
4 szoba
120 m²
Balatonszemes, Ady Endre u
Eladó téglalakás

Balatonszemes

64.9 M Ft
1 szoba
37 m²
Balatonszemes
Eladó téglalakás

Balatonszemes

119.9 M Ft
2 szoba
0 m²
Jászkarajenő
Eladó családi ház

Jászkarajenő

17 M Ft
3 szoba
81 m²
Tápióság
Eladó családi ház

Tápióság

71.5 M Ft
4 szoba
72 m²