River Life

Eladó téglalakás
Újszász, 1. emelet

+ 2 kép 1/5
50 700 000 Ft50.7 M Ft 975 000 Ft/m2
3 szoba
52 m²
1. emelet
építés éve:2026

Részletes adatok

Fűtés: Egyéb
Emelet: 1. emelet
Közmű: Gáz, Csatorna
Energetikai besorolás: A+

Az OTP Bank lakáshitel ajánlataFizetett hirdetés

+36 70 374
Koltai Levente
referens

Érdekel az OTP Bank kedvezményes lakáshitel ajánlata? *

* A kérdésre „Igen” válasz bejelölése esetén, az „Üzenet küldése” gombra kattintva kijelentem, hogy az OTP Bank Nyrt. Adatkezelési tájékoztatójának tartalmát megismertem és tudomásul vettem.

Eladó téglalakás leírása

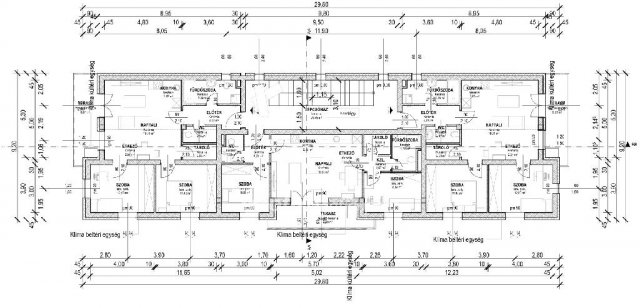
Jász-Nagykun-Szolnok vármegye, Újszász központi részén 32 lakásos lakópark új, hatlakásos kétszintes lakóépületének 52,92 m2 hasznos alapterületű emeleti lakása eladó! A társasház 872 m2-es telken, beton alapon 30-as Leier téglából, 15 cm-es homlokzati szigeteléssel, 25 cm kőzetgyapottal szigetelt, alu-profilon gipszkarton álmennyezettel szerelt fa födémmel, fa tetőszerkezeten beton cserepezéssel készül, körben csatornával ellátva. A külső műanyag ablakok 3 rétegű üvegezéssel készülnek, a bejárat biztonsági ajtóval kivitelezett. A belső terek elválasztására a kivitelező részéről garantált keretösszegig elérhető dekorajtók kerülnek beépítésre. A lakás egy nappalival, két szobával, egy konyhával, egy étkezővel, egy fürdőszoba-WC helyiséggel, egy különnyíló WC-helyiséggel, egy tárolóval, egy előszobával, egy közlekedővel és egy 8.6 m2-es terasszal rendelkezik. A belső helyiségek a vevő igényeinek megfelelően a keretösszegig laminált padló- és járólap burkolatot kapnak. A fürdőszoba és a WC-helyiség modern hidegburkolattal lesz kivitelezve, valamint új szaniterek kerülnek beépítésre. Az ingatlanban a közművek közül az egyfázisú (1x32 Amper), a (20 Amper) H-tarifás villany-, a vezetékes víz-ellátás és a csatorna a telken belül megtalálható. Az otthon melegét hőszivattyú biztosítja padlófűtéses hőleadással, alternatív megoldásként inverteres hűtő-fűtő klíma kerül beépítésre. A melegvíz ellátásáért elektromos okosbojler felel. Az ingatlan vételára tartalmazza a több rétegben készre dolgozott fehér festést, a villanykapcsolókat és a szanitereket. A lakóépület körben bekerítésre kerül, gépjárművek számára az aszfaltozott útról kapubejáró lesz biztosított. Az udvar tereprendezéssel kerül átadásra. A járda és a gépjárműbeálló beton aljzatot kap. Az ár a bútorzatot nem tartalmazza. Az ingatlan elhelyezkedése kiváló, a közelben minden megtalálható: többféle bevásárlási lehetőség, iskola, óvoda, élelmiszerbolt, egészségügyi rendelő, benzinkút, Polgármesteri Hivatal pár száz méteren belül megközelíthető, a településen a tömegközlekedés megoldott. A hirdetés tájékoztató jellegű, az ingatlanról pontos adatokat a megtekintést követően a tulajdonos által elmondottak alapján tudunk garantálni! A vásárlás finanszírozásában az OTP kedvezőbb kamatozású hitelkonstrukcióival, Babaváró kölcsön és egyéb banki termékek kínálatával tudunk segíteni, díjmentesen, sorban állás nélkül! Az adásvételi szerződés lebonyolításához korrekt ügyvédi közreműködést tudunk ajánlani. Amennyiben felkeltettem érdeklődését, hívjon bizalommal! Eladó ingatlanokat keresünk meglévő és új ügyfeleink részére!

Hirdetés feltöltve: 2026. 03. 17. Utoljára módosítva: 2026. 04. 01.

3 szobás téglalakások ára Újszászon

Ebből az összehasonlításból megtudhatod, hogyan viszonyul a lakás ára a környékbeli téglalakások átlagos árához. Ez nem azt jelenti, hogy ennyivel olcsóbb vagy drágább, mint amennyit a lakás ér, hanem hogy ennyivel tér el a környékbeli átlagtól.

Ennek a m² ára
Újszász m² ár
975 e Ft
886 e Ft -10%
Ennek az ára
Újszász átlagár
50.7 M Ft m Ft
56.2 m Ft 10%

Az ingatlan elhelyezkedése

Cím: Újszász, 1. emelet

Eladó téglalakások a környékről

Újszász
Eladó téglalakás

Újszász

49.99 M Ft
3 szoba
62 m²
Szolnok
Eladó téglalakás

Szolnok

90 M Ft
3 szoba
100 m²
Újszász
Eladó téglalakás

Újszász

75.99 M Ft
3 szoba
74 m²
Jászberény
Eladó téglalakás

Jászberény

61.9 M Ft
2 szoba
78 m²
Újszász
Eladó téglalakás

Újszász

49.99 M Ft
3 szoba
57 m²
Újszász
Eladó téglalakás

Újszász

75.99 M Ft
3 szoba
74 m²
Újszász
Eladó téglalakás

Újszász

49.99 M Ft
3 szoba
62 m²
Újszász
Eladó téglalakás

Újszász

54.999 M Ft
3 szoba
70 m²
Jászberény
Eladó téglalakás

Jászberény

49.5 M Ft
1 szoba
60 m²
Szolnok
Eladó téglalakás

Szolnok

90 M Ft
3 szoba
100 m²
Szolnok, Katonaváros, Tófenék utca
Eladó téglalakás

Szolnok

57.5 M Ft
1 szoba
94 m²
Újszász
Eladó téglalakás

Újszász

81 M Ft
4 szoba
90 m²
Szolnok
Eladó téglalakás

Szolnok

50.9 M Ft
2 szoba
85 m²
Szolnok
Eladó téglalakás

Szolnok

52.9 M Ft
4 szoba
93 m²
Jászberény
Eladó téglalakás

Jászberény

52 M Ft
1 szoba
60 m²
Tiszafüred
Eladó téglalakás

Tiszafüred

59.8 M Ft
3 szoba
72 m²
Jászberény
Eladó téglalakás

Jászberény

29.5 M Ft
2 szoba
55 m²
Szolnok
Eladó téglalakás

Szolnok

90 M Ft
3 szoba
100 m²
Újszász
Eladó téglalakás

Újszász

54.999 M Ft
3 szoba
70 m²
Újszász
Eladó téglalakás

Újszász

86.1 M Ft
4 szoba
95 m²
Szolnok
Eladó téglalakás

Szolnok

90 M Ft
3 szoba
100 m²
Újszász
Eladó téglalakás

Újszász

75.99 M Ft
3 szoba
74 m²
Újszász
Eladó téglalakás

Újszász

55.7 M Ft
3 szoba
62 m²
Újszász
Eladó téglalakás

Újszász

54.999 M Ft
3 szoba
70 m²

Falusi CSOK ingatlanok

Ceglédbercel
Eladó családi ház

Ceglédbercel

79.9 M Ft
5 szoba
140 m²
Gádoros
Eladó családi ház

Gádoros

25.5 M Ft
4 szoba
140 m²
Szentmártonkáta
Eladó családi ház

Szentmártonkáta

95 M Ft
5 + 1 szoba
152 m²
Balatonszemes
Eladó téglalakás

Balatonszemes

91.5 M Ft
2 szoba
60 m²
Fonyód, Virág utca
Eladó ikerház

Fonyód

58.9 M Ft
2 szoba
36 m²
Bodajk
Eladó ikerház

Bodajk

67.9 M Ft
5 szoba
90 m²
Cserépfalu
Eladó családi ház

Cserépfalu

58 M Ft
4 szoba
143 m²
Sávoly, Rákóczi Ferenc utca 76
Eladó családi ház

Sávoly

12.94 M Ft
2 + 1 szoba
88 m²