Avico Greentop

Eladó téglalakás
Tiszaújváros, 3. emelet

+ 13 kép 1/16
32 000 000 Ft32 M Ft 653 061 Ft/m2
2 szoba
49 m²
3. emelet
építés éve:1975

Részletes adatok

Fűtés: Távfűtés
Emelet: 3. emelet
Energetikai besorolás: Nem adta meg a hirdető

Az OTP Bank lakáshitel ajánlataFizetett hirdetés

+36 70 907
Klubert Gergő
OTP Ingatlanpont Miskolc Szemere

Érdekel az OTP Bank kedvezményes lakáshitel ajánlata? *

* A kérdésre „Igen” válasz bejelölése esetén, az „Üzenet küldése” gombra kattintva kijelentem, hogy az OTP Bank Nyrt. Adatkezelési tájékoztatójának tartalmát megismertem és tudomásul vettem.

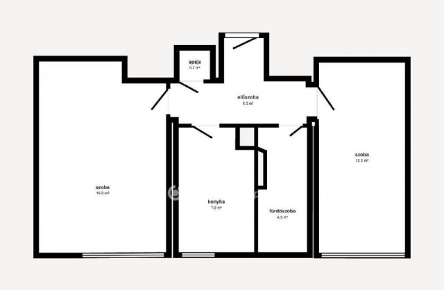
Eladó téglalakás leírása

Tiszaújváros egyik legkedveltebb és legnyugodtabb részén a Rózsa utcában az idősek otthona közvetlen szomszédságában eladó egy harmadik emeleti, 49 négyzetméteres két szobás jó állapotú és azonnal költözhető lakás, amely tökéletes választás saját otthonnak vagy befektetésnek egyaránt, az ingatlan egyik legnagyobb előnye a rendkívül praktikus elosztás hiszen a két szoba külön nyílik, biztosítva ezzel a lakók zavartalan magánszféráját, a kényelmet fokozza a modern műanyag nyílászárók megléte és az esztétikus laminált parketta burkolat, a helyiségek tágasak a nagy konyha és a tágas fürdőszoba mellett egy külön spájz is helyet kapott a tárolás megkönnyítésére, a lakás távfűtéses kulturált állapotú és tehermentes így kifizetés után rögtön birtokba vehető, a közvetlen környezet kiváló infrastruktúrával rendelkezik, pár perces sétával elérhető a Spar szupermarket gyógyszertár több orvosi rendelő és iskola is, miközben a parkolás közvetlenül a ház előtt ingyenesen és kényelmesen megoldható. A lakáshoz saját pince is tartozik. Ez a világos és rendezett otthon várja új tulajdonosát a város egyik legzöldebb és legélhetőbb utcájában, ahol minden fontos szolgáltatás karnyújtásnyira van. Jöjjön el garantáltan nem fog csalódni! Érdeklődését és hívását a hét minden napján szívesen fogadom: hétfőtől szombatig 7:00 és 21:00 óra között, vasárnap pedig 8:00 és 20:00 óra között várom megtisztelő megkeresését.

OTP Banki hátterünknek köszönhetően finanszírozási igényekben (pl. Otthon Start Hitelprogram , Babaváró, Falusi CSOK, CSOK Plusz, Lakáshitel, Személyi kölcsön stb.), illetve biztosítások tekintetében is díjmentesen, soron kívüli ügyintézéssel segítem ügyfeleim! Kérem tekintse meg, virtuális sétámat is. Hívása során hivatkozzon az M323773 referenciaszámra!

Hirdetés feltöltve: 2026. 04. 17. Utoljára módosítva: 2026. 04. 17.

2 szobás téglalakások ára Tiszaújvárosban

Ebből az összehasonlításból megtudhatod, hogyan viszonyul a lakás ára a környékbeli téglalakások átlagos árához. Ez nem azt jelenti, hogy ennyivel olcsóbb vagy drágább, mint amennyit a lakás ér, hanem hogy ennyivel tér el a környékbeli átlagtól.

Ennek a m² ára
Tiszaújváros m² ár
653 e Ft
602 e Ft -8%
Ennek az ára
Tiszaújváros átlagár
32 M Ft m Ft
26.8 m Ft -20%

Az ingatlan elhelyezkedése

Cím: Tiszaújváros, 3. emelet

Eladó téglalakások a környékről

Miskolc
Eladó téglalakás

Miskolc

65.34 M Ft
3 szoba
60 m²
Tiszaújváros
Eladó téglalakás

Tiszaújváros

23.9 M Ft
2 szoba
39 m²
Tiszaújváros
Eladó téglalakás

Tiszaújváros

32 M Ft
2 szoba
49 m²
Tiszaújváros
Eladó téglalakás

Tiszaújváros

22.5 M Ft
1 + 1 szoba
39 m²
Ózd
Eladó téglalakás

Ózd

8.9 M Ft
2 szoba
57 m²
Ózd
Eladó téglalakás

Ózd

10.4 M Ft
2 szoba
48 m²
Tiszaújváros, Építők útja
Eladó téglalakás

Tiszaújváros

39.9 M Ft
3 szoba
85 m²
Tiszaújváros, Tisza út
Eladó téglalakás

Tiszaújváros

55 M Ft
3 szoba
73 m²
Miskolc
Eladó téglalakás

Miskolc

54.45 M Ft
2 szoba
51 m²
Miskolc
Eladó téglalakás

Miskolc

163.35 M Ft
4 szoba
110 m²
Tiszaújváros
Eladó téglalakás

Tiszaújváros

19.5 M Ft
2 szoba
40 m²
Tiszaújváros
Eladó téglalakás

Tiszaújváros

19.5 M Ft
2 szoba
40 m²
Miskolc
Eladó téglalakás

Miskolc

65.34 M Ft
1 + 1 szoba
40 m²
Sátoraljaújhely
Eladó téglalakás

Sátoraljaújhely

17 M Ft
2 szoba
52 m²
Tiszaújváros
Eladó téglalakás

Tiszaújváros

32 M Ft
2 szoba
49 m²
Ózd
Eladó téglalakás

Ózd

4.99 M Ft
2 szoba
55 m²
Miskolc
Eladó téglalakás

Miskolc

9.99 M Ft
2 szoba
59 m²
Tiszaújváros, Verebély utca
Eladó téglalakás

Tiszaújváros

23.9 M Ft
1 + 1 szoba
39 m²
Miskolc
Eladó téglalakás

Miskolc

69.7 M Ft
3 szoba
60 m²
Miskolc
Eladó téglalakás

Miskolc

75.982 M Ft
3 szoba
77 m²
Putnok
Eladó téglalakás

Putnok

13.6 M Ft
3 szoba
123 m²
Tiszaújváros
Eladó téglalakás

Tiszaújváros

49 M Ft
3 szoba
88 m²
Tiszaújváros
Eladó téglalakás

Tiszaújváros

63.02 M Ft
3 szoba
77 m²
Tiszaújváros
Eladó téglalakás

Tiszaújváros

56.159 M Ft
3 szoba
69 m²

Falusi CSOK ingatlanok

Bodolyabér, Zrínyi utca
Eladó családi ház

Bodolyabér

24.9 M Ft
5 szoba
125 m²
Baks
Eladó családi ház

Baks

18.9 M Ft
3 szoba
118 m²
Somlójenő
Eladó családi ház

Somlójenő

64.9 M Ft
4 szoba
221 m²
Szőlősgyörök
Eladó családi ház

Szőlősgyörök

29.9 M Ft
3 szoba
85 m²
Szarvaskő, Rózsa utca
Eladó családi ház

Szarvaskő

54.9 M Ft
1 + 3 szoba
140 m²
Sződ
Eladó családi ház

Sződ

102.9 M Ft
4 szoba
92 m²
Balatonudvari
Eladó családi ház

Balatonudvari

240 M Ft
9 szoba
260 m²
Bakonypéterd
Eladó családi ház

Bakonypéterd

44.9 M Ft
3 szoba
92 m²