Seven Pearl

Eladó téglalakás
Tárnok, 1. emelet

+ 4 kép 1/7
92 300 000 Ft92.3 M Ft 1 300 000 Ft/m2
3 szoba
71 m²
1. emelet
építés éve:2026

Részletes adatok

Fűtés: Egyéb
Emelet: 1. emelet
Parkolás: Kocsibeálló
Közmű: Víz, Gáz, Villany, Csatorna
Komfort: Összkomfortos
Energetikai besorolás: Nem adta meg a hirdető

Az OTP Bank lakáshitel ajánlataFizetett hirdetés

+36 70 432
Tatár Szabolcs
Otthon Plusz Ingatlan

Érdekel az OTP Bank kedvezményes lakáshitel ajánlata? *

* A kérdésre „Igen” válasz bejelölése esetén, az „Üzenet küldése” gombra kattintva kijelentem, hogy az OTP Bank Nyrt. Adatkezelési tájékoztatójának tartalmát megismertem és tudomásul vettem.

Eladó téglalakás leírása

Hivatkozzon erre, kód: 5200TSZ

- ÚJ ÉPÍTÉS

- TÁRSASHÁZ ALAPÍTÓ OKIRAT (önálló albetét)

- NAPPALI + 2-3 SZOBÁS LAKÁSOK

- AJÁNDÉK UDVARI BEÁLLÓ

- MEGBÍZHATÓ BERUHÁZÓ, TÖBB ÉVES TAPASZTALAT

Tárnokligeten kiváló környezetben új építésű 6 lakásos társasházban földszinti és emeleti nappali + 2-3 szobás lakások igény szerinti befeejzéssel, ajándék udvari beállóval leköthetők!

Várható átadás: 2026. december.

JELEN HIRDETÉSBEN SZEREPLŐ LAKÁS:

5-ös lakás / nappali + 2 szoba (70.94m2), Ára: 92.3mFt: közlekedő (3.86m2), fürdőszoba (5.33m2), wc (1.60m2), konyha (4.72m2), - étkező – nappali (28.95m2), 2 szoba (16.64m2, 14.56m2). /Kód: 5200/

AZ ÉPÜLETBEN TALÁLHATÓ TOVÁBBI LAKÁS KÍNÁLATOK:

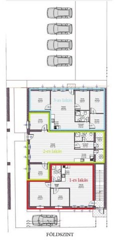
FÖLDSZINT:

1-es lakás / nappali + 2 szoba (56.13m2), Ára: 72.8mFt: konyha (4.85m2) – étkező – nappali (24.85m2), közlekedő (1.70m2), fürdőszoba (4.15m2), 2 szoba (12.48m2, 8.10m2). /Kód: 5196/

2-es lakás / nappali + 2 szoba (68.93m2), Ára: 89.7mFt: konyha (6.14m2) – étkező – nappali (33.67m2), közlekedő (3.27m2), fürdőszoba (4.43m2), kamra (2.60m2), háztartási helyiség (3.50m2), 2 szoba (7.22m2, 8.11m2). /Kód: 5197/

3-as lakás / nappali + 3 szoba (59.37m2), Ára: 76.7mFt: konyha (3.60m2) – étkező – nappali (19.33m2), közlekedő (2.76m2), fürdőszoba (3.75m2), gardrób (5.50m2), 3 szoba (7.71m2, 6.64m2, 9.93m2). /Kód: 5198/

EMELET:

4-es lakás / nappali + 3 szoba (67.33m2), Ára: 87.1mFt: közlekedő (2.56m2), konyha (4.85m2) – étkező – nappali (24.85m2), fürdőszoba (4.15m2), közlekedő (4.67m2), 3 szoba (8.10m2, 7.98m2, 12.73m2). /Kód: 5199/

6-os lakás / nappali + 3 szoba (68.98m2), Ára: 89.7mFt: közlekedő (5.51m2), gardrób (2.65m2), fürdőszoba (3.75m2), 3 szoba (6.64m2, 7.71m2, 11.72m2), konyha (8.07m2) – étkező – nappali (22.93m2). /Kód: 5201/

Szerkezeti leírás: Beton sávalapozás. 30-as égetett vázkerámia tégla fő falazat + 15cm dryvit szigetelés. Szintek között ,,E” gerendás felbeton, míg a zárófödém fa szerkezetű 25cm kőzetgyapot szigeteléssel ellátva. A külső nyílászárók műanyag szerkezetűek, fokozott hőszigetelésű üvegezéssel, fehér színben. Cserép fedésű tető.

A lakás igény szerinti befejezéssel épül, ezáltal a hideg – meleg burkolatok 4.000,- Ft/m2 árig, a dekorfóliás beltéri ajtók 60.000,- Ft/db áron választhatók, illetve a szaniterek, csaptelepek ízlés szerint szintén.

Fűtés, meleg víz ellátás: A lakások fűtését kondenzációs kombi gázcirkó biztosítja minden helyiségben padlófűtésen keresztül. A meleg vizet szintén a cirkó szolgáltatja.

Parkolás: lakásonként 1 gépkocsi számára udvaron belül fedetlen - felszíni beállón megoldott.

Megközelíthetőség és infrastruktúra: buszmegálló, kávézó pár perc sétatávolság. Óvoda, iskola, bevásárlási lehetőség, gyógyszertár, orvosi rendelők szintén a közelben.

További hasonló ingatlanok találhatók még a kínálatunkban!

Szüksége van hitelre? SEGÍTÜNK!

Bankfüggetlen hitel tanácsadónk díjmentesen áll az Ön rendelkezésére! Keressen bizalommal!

A hirdetésben szereplő adatok, információk, képek, alaprajzok stb... tájékoztató jellegűek! Irodánk az esetleges elírásokért felelősséget nem tud vállalni!

Tájékoztatjuk a Tisztelt Érdeklődőket, hogy az ingatlan hirdetésében szereplő telefonszám felhívásával Önök hozzájárulnak személyes adataik (név, telefonszám), a hirdetést feladó -Otthonplusz.hu Kft. - által a bizalmas kezeléshez és nyilvántartáshoz.

Hirdetés feltöltve: 2026. 04. 01. Utoljára módosítva: 2026. 05. 11.

Az ingatlan elhelyezkedése

Cím: Tárnok, 1. emelet

Eladó ingatlanok a környékről

Tárnok
Eladó téglalakás

Tárnok

61.6 M Ft
3 szoba
56 m²
Tárnok
Eladó téglalakás

Tárnok

76.7 M Ft
4 szoba
59 m²
Tárnok
Eladó téglalakás

Tárnok

72.8 M Ft
3 szoba
56 m²
Tárnok
Eladó téglalakás

Tárnok

75.9 M Ft
4 szoba
69 m²
Tárnok
Eladó téglalakás

Tárnok

89.7 M Ft
4 szoba
69 m²
Göd
Eladó téglalakás

Göd

90 M Ft
2 szoba
44 m²
Göd
Eladó téglalakás

Göd

44.5 M Ft
3 szoba
69 m²
Göd
Eladó téglalakás

Göd

28.9 M Ft
2 szoba
46 m²
Göd
Eladó téglalakás

Göd

42.9 M Ft
3 szoba
61 m²
Göd
Eladó téglalakás

Göd

44.9 M Ft
3 szoba
58 m²
Abony
Eladó családi ház

Abony

24.9 M Ft
2 szoba
144 m²
Göd
Eladó téglalakás

Göd

32.9 M Ft
2 szoba
44 m²
Göd
Eladó téglalakás

Göd

27.9 M Ft
2 szoba
43 m²
Törökbálint
Eladó családi ház

Törökbálint

180 M Ft
6 szoba
240 m²
Tárnok
Eladó téglalakás

Tárnok

72.8 M Ft
3 szoba
56 m²
Göd
Eladó téglalakás

Göd

32.5 M Ft
2 szoba
44 m²
Tárnok, Rákóczi út
Eladó téglalakás

Tárnok

80.9 M Ft
3 szoba
70 m²
Tárnok
Eladó téglalakás

Tárnok

89.7 M Ft
4 szoba
69 m²
Göd
Eladó téglalakás

Göd

66.9 M Ft
4 szoba
94 m²
Budaörs
Eladó családi ház

Budaörs

159 M Ft
3 szoba
155 m²
Tárnok
Eladó téglalakás

Tárnok

87.1 M Ft
4 szoba
67 m²
Tárnok
Eladó téglalakás

Tárnok

89.7 M Ft
3 szoba
69 m²
Tárnok
Eladó téglalakás

Tárnok

74 M Ft
4 szoba
67 m²
Tárnok
Eladó téglalakás

Tárnok

45 M Ft
2 szoba
58 m²

Falusi CSOK ingatlanok

Hahót
Eladó családi ház

Hahót

48 M Ft
4 + 1 szoba
110 m²
Bakonyszentkirály
Eladó családi ház

Bakonyszentkirály

99.99 M Ft
5 szoba
126 m²
Zákányfalu
Eladó családi ház

Zákányfalu

14.5 M Ft
2 szoba
80 m²
Csurgó
Eladó családi ház

Csurgó

55 M Ft
6 szoba
257 m²
Szigliget, Soponyai út
Eladó ikerház

Szigliget

429 M Ft
7 + 2 szoba
212 m²
Sály, Kossuth Lajos 128
Eladó családi ház

Sály

27.45 M Ft
6 szoba
160 m²
Pilisszentkereszt
Eladó családi ház

Pilisszentkereszt

68.9 M Ft
2 szoba
50 m²
Balatonudvari
Eladó családi ház

Balatonudvari

230 M Ft
9 szoba
260 m²