BAM Living

Eladó téglalakás
Szigetszentmiklós, földszint

+ 10 kép 1/13
74 950 000 Ft74.95 M Ft 936 875 Ft/m2
4 szoba
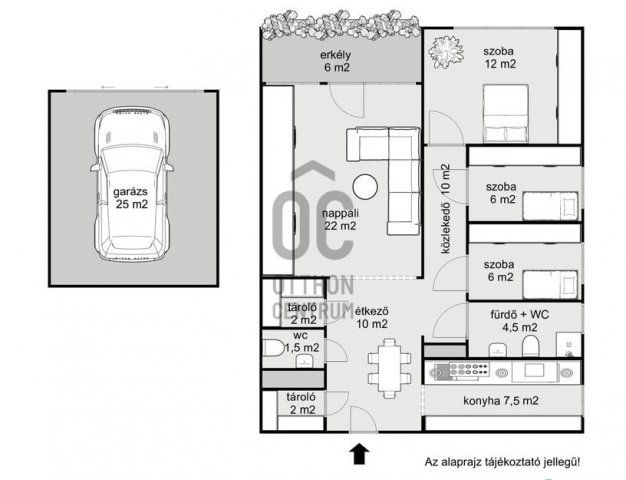
80 m2
földszint
építés éve:1980

Részletes adatok

Fűtés: Gázkonvektor
Energetikai besorolás: Nem adta meg a hirdető

Az OTP Bank lakáshitel ajánlataFizetett hirdetés

+36 70 465
Doktor Tímea
Szi-We Otthona Kft.

Érdekel az OTP Bank kedvezményes lakáshitel ajánlata? *

* A kérdésre „Igen” válasz bejelölése esetén, az „Üzenet küldése” gombra kattintva kijelentem, hogy az OTP Bank Nyrt. Adatkezelési tájékoztatójának tartalmát megismertem és tudomásul vettem.

Eladó téglalakás leírása

Szigetszentmiklóson ideális otthon: tágas nappali + 3 szoba + garázs!

Családi otthont keresel?
Akár 3%-os Otthon Start hitellel? Rendben!
Itt az otthon, ahol mindenki elfér, és minden megvan, amire csak szükséged lehet!

A lakásról

Szigetszentmiklós központi, mégis csendes részén eladó egy 80 m²-es, földszinti, világos és modern lakás,
25 m²-es saját garázzsal zárt udvarban, gondozott közös kerttel.

Fantasztikus elosztásának és praktikus megoldásainak köszönhetően igazi családi fészek!

Amit imádni fogsz benne

Tágas nappali–étkező–konyha – ahol együtt lehet a család

3 külön nyíló hálószoba – mindenkinek saját birodalom

Fürdőszoba WC-vel + külön WC kézmosóval – nincs több reggeli sorban állás

Erkély – világos, hangulatos, tökéletes reggeli kávé helyszín

Gardrób, tárolók, sok pakolóhely

Modern műanyag nyílászárók redőnnyel és szúnyoghálóval

️ Konvektoros fűtés + hűtő-fűtő klíma

Bútorok megegyezés szerint maradhatnak

Nyugodt, barátságos lakóközösség

Saját 25 m²-es garázs zárt udvarban – biztonságos parkolás + extra tároló

Elhelyezkedés

Központi, mégis csendes és családbarát környék
Aldi, Pláza, kávézó, bank, buszmegálló – mindössze 50 méterre!

A garázs az ingatlannal együtt megvásárolandó, ára: +9.900.000 Ft

Miért különleges?

Ez a lakás ritka kincs Szigetszentmiklóson –
modern, világos, tágas otthon, amit tényleg csak be kell lakni!

Hívj most, és szeress bele személyesen!

Hirdetés feltöltve: 2025. 11. 12. Utoljára módosítva: 2025. 12. 05.

4 szobás téglalakások ára Szigetszentmiklóson

Ebből az összehasonlításból megtudhatod, hogyan viszonyul a lakás ára a környékbeli téglalakások átlagos árához. Ez nem azt jelenti, hogy ennyivel olcsóbb vagy drágább, mint amennyit a lakás ér, hanem hogy ennyivel tér el a környékbeli átlagtól.

Ennek a m² ára
Szigetszentmiklós m² ár
937 e Ft
1014 e Ft 8%
Ennek az ára
Szigetszentmiklós átlagár
74.95 M Ft m Ft
79.7 m Ft 6%

Az ingatlan elhelyezkedése

Cím: Szigetszentmiklós, földszint

Eladó téglalakások a környékről

Eladó téglalakás
Eladó téglalakás

Göd

27.9 M Ft
2 szoba
43 m2
Eladó téglalakás
Eladó téglalakás

Szigetszentmiklós

76.4 M Ft
3 szoba
67 m2
Eladó téglalakás
Eladó téglalakás

Szigetszentmiklós

49.9 M Ft
2 szoba
49 m2
Eladó téglalakás
Eladó téglalakás

Szigetszentmiklós

26 M Ft
1 szoba
36 m2
Eladó téglalakás
Eladó téglalakás

Szigetszentmiklós

61.8 M Ft
4 szoba
74 m2
Eladó téglalakás
Eladó téglalakás

Göd

32.5 M Ft
2 szoba
44 m2
Eladó téglalakás
Eladó téglalakás

Szigetszentmiklós

89.69 M Ft
3 szoba
50 m2
Eladó téglalakás
Eladó téglalakás

Göd

44.5 M Ft
3 szoba
73 m2
Eladó téglalakás
Eladó téglalakás

Göd

29.5 M Ft
2 szoba
47 m2
Eladó téglalakás
Eladó téglalakás

Szigetszentmiklós

49.9 M Ft
2 szoba
49 m2
Eladó téglalakás
Eladó téglalakás

Göd

32.9 M Ft
2 szoba
44 m2
Eladó téglalakás
Eladó téglalakás

Göd

27.9 M Ft
2 szoba
43 m2
Eladó téglalakás
Eladó téglalakás

Szigetszentmiklós

79.9 M Ft
3 szoba
57 m2
Eladó téglalakás
Eladó téglalakás

Szigetszentmiklós

75.68 M Ft
3 szoba
63 m2
Eladó téglalakás
Eladó téglalakás

Göd

28.9 M Ft
2 szoba
44 m2
Eladó téglalakás
Eladó téglalakás

Göd

28.9 M Ft
2 szoba
46 m2
Eladó téglalakás
Eladó téglalakás

Szigetszentmiklós

51.5 M Ft
4 + 2 szoba
127 m2
Eladó téglalakás
Eladó téglalakás

Göd

42.9 M Ft
3 szoba
61 m2
Eladó téglalakás
Eladó téglalakás

Szigetszentmiklós

49.9 M Ft
2 szoba
49 m2
Eladó téglalakás
Eladó téglalakás

Szigetszentmiklós, Központ közeli

49.9 M Ft
2 szoba
49 m2
Eladó téglalakás
Eladó téglalakás

Szigetszentmiklós

49.9 M Ft
2 szoba
49 m2
Eladó téglalakás
Eladó téglalakás

Göd

32.5 M Ft
2 szoba
44 m2
Eladó téglalakás
Eladó téglalakás

Göd, Oázis utca

27.9 M Ft
2 szoba
44 m2
Eladó téglalakás
Eladó téglalakás

Szigetszentmiklós

49.9 M Ft
2 szoba
49 m2

Falusi CSOK ingatlanok

Eladó családi ház
Eladó családi ház

Vitnyéd, Petőfi Sándor utca 3

16.71 M Ft
1 + 1 szoba
99 m2
Eladó családi ház
Eladó családi ház

Elek

85.9 M Ft
5 szoba
274 m2
Eladó családi ház
Eladó családi ház

Söpte

94.9 M Ft
4 szoba
94 m2
Eladó családi ház
Eladó családi ház

Sarud

17 M Ft
3 szoba
94 m2
Eladó családi ház
Eladó családi ház

Szurdokpüspöki

16 M Ft
1 szoba
45 m2
Eladó családi ház
Eladó családi ház

Ádánd

69.9 M Ft
6 szoba
251 m2
Eladó téglalakás
Eladó téglalakás

Balatonszemes

125.2 M Ft
2 szoba
50 m2
Eladó családi ház
Eladó családi ház

Kondorfa, Fővég utca

24.9 M Ft
3 szoba
102 m2