Metrodom

Eladó téglalakás
Szentes, földszint

+ 6 kép 1/9
42 000 000 Ft42 M Ft 792 453 Ft/m2
1 + 2 szoba
53 m²
földszint
építés éve:2025

Részletes adatok

Fűtés: Egyéb
Emelet: földszint
Energetikai besorolás: B

Az OTP Bank lakáshitel ajánlataFizetett hirdetés

+36 70 455
Szlovák Ibolya
Csongrád OTP Ingatlanpont Iroda

Érdekel az OTP Bank kedvezményes lakáshitel ajánlata? *

* A kérdésre „Igen” válasz bejelölése esetén, az „Üzenet küldése” gombra kattintva kijelentem, hogy az OTP Bank Nyrt. Adatkezelési tájékoztatójának tartalmát megismertem és tudomásul vettem.

Eladó téglalakás leírása

Szentesi, zöldövezeti, energiahatékony újépítésű lakások leköthetők --- az OTP Ingatlanpontnál!
Már csak 4 lakás elérhető!
Modern, elegáns megjelenés, korszerű anyagok és kellemes, zöld környezet jellemzik ezt a projektet.
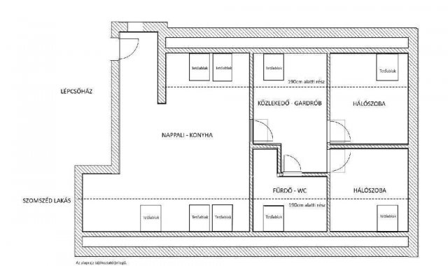
A parkosított telken két lakóház (földszint, emelet, tetőtér) valamint garázsok kerültek elhelyezésre. Az egyik lakóépületben hat lakás, a másikban nyolc lakás kap helyet. A lakásokba zárt lépcsőházon keresztül juthatunk.
A tetőéri lakások alapterülete 82,8m2, melyből a hasznos (190cm magasság feletti rész) 53,56m2.
A tágas amerikai konyhás nappali mellett 2 hálószoba, közlekedő ? gardrób, valamint fürdőszoba áll rendelkezésre.
A fűtést és a melegvizet hőszivattyú fogja ellátni, padlófűtéssel, lakásonként egyedi mérési lehetőséggel.
Az ár a kulcsrakész állapotra vonatkozik.
A lakásokhoz garázs is vásárolható.
Ha számít Önnek az egyedi, elegáns környezet, valamint az alacsony fenntartási költségek, akkor ne gondolkozzon tovább!
További információért hívjon bizalommal!
Az OTP Ingatlanpont teljes körű ügyintézéssel áll az eladók és vevők rendelkezésére. A kínálatunkból választott ingatlan finanszírozásához kedvezményes hitelkonstrukciót biztosítunk. Az OTP Banknál elérhető Babaváró, falusi CSOK, CSOK Plusz hitel és egyéb kölcsönök intézését díjmentesen vállaljuk. Az adásvételi szerződés megkötéséhez igény szerint ügyvédet biztosítunk. Irodáink Szentes, Petőfi utca 12. a buszmegálló felől, és Csongrád, Fő utca 54. szám alatt várjuk a személyes érdeklődőket. Válasszuk ki együtt az Önnek legmegfelelőbb ajánlatot banki sorban állás nélkül!
Érdeklődni: Szlovák Ibolya +36704550993

Referencia szám: M293794-ZE

Hirdetés feltöltve: 2026. 04. 18.

Az ingatlan elhelyezkedése

Cím: Szentes, földszint

Eladó ingatlanok a környékről

Szeged
Eladó téglalakás

Szeged

58.7 M Ft
2 szoba
49 m²
Szentes
Eladó téglalakás

Szentes

58 M Ft
4 szoba
105 m²
Szentes
Eladó téglalakás

Szentes

84 M Ft
2 + 2 szoba
126 m²
Szeged
Eladó panellakás

Szeged

51.49 M Ft
3 szoba
60 m²
Szeged
Eladó ipari ingatlan

Szeged

15 M Ft
75 m²
Szeged
Eladó téglalakás

Szeged

135 M Ft
4 szoba
116 m²
Szeged
Eladó téglalakás

Szeged

39.9 M Ft
2 szoba
32 m²
Szentes
Eladó téglalakás

Szentes

84 M Ft
2 + 2 szoba
126 m²
Szentes
Eladó téglalakás

Szentes

142.5 M Ft
7 szoba
233 m²
Kistelek, Kossuth Lajos utca
Eladó ikerház

Kistelek

55 M Ft
2 szoba
71 m²
Szentes
Eladó téglalakás

Szentes

72.5 M Ft
1 + 3 szoba
106 m²
Szeged, Tarján lakótelep, Barátság utca
Eladó téglalakás

Szeged

44.8 M Ft
2 szoba
56 m²
Szeged
Eladó téglalakás

Szeged

74.9 M Ft
3 szoba
57 m²
Szeged
Eladó téglalakás

Szeged

149 M Ft
4 + 1 szoba
132 m²
Szeged
Eladó panellakás

Szeged

64.5 M Ft
3 szoba
68 m²
Mindszent
Eladó családi ház

Mindszent

11.8 M Ft
2 szoba
70 m²
Hódmezővásárhely
Eladó panellakás

Hódmezővásárhely

45 M Ft
2 szoba
50 m²
Szeged
Eladó családi ház

Szeged

89 M Ft
3 szoba
93 m²
Szentes
Eladó téglalakás

Szentes

42 M Ft
1 + 2 szoba
53 m²
Szentes
Eladó téglalakás

Szentes

42.265 M Ft
3 szoba
75 m²
Szentes
Eladó téglalakás

Szentes

71.027 M Ft
4 szoba
115 m²
Szeged, Londoni körút
Eladó téglalakás

Szeged

59.9 M Ft
2 szoba
55 m²
Szeged
Eladó téglalakás

Szeged

52.9 M Ft
3 szoba
48 m²
Szeged
Eladó téglalakás

Szeged

74.99 M Ft
3 szoba
61 m²

Falusi CSOK ingatlanok

Adony
Eladó családi ház

Adony

48 M Ft
4 szoba
75 m²
Balatonszemes
Eladó téglalakás

Balatonszemes

125.2 M Ft
2 szoba
50 m²
Galgamácsa
Eladó családi ház

Galgamácsa

79.9 M Ft
4 szoba
110 m²
Balatonfenyves
Eladó családi ház

Balatonfenyves

179.9 M Ft
5 szoba
210 m²
Gönyű
Eladó családi ház

Gönyű

111.951 M Ft
5 szoba
105 m²
Iklad
Eladó családi ház

Iklad

60 M Ft
3 szoba
76 m²
Bag
Eladó családi ház

Bag

16.9 M Ft
6 szoba
160 m²
Szarvaskend
Eladó családi ház

Szarvaskend

26.9 M Ft
2 szoba
83 m²