Aerogate Homes

Eladó téglalakás
Székesfehérvár

104 000 000 Ft104 M Ft 1 600 000 Ft/m2
3 szoba
65 m²
építés éve:2024

Részletes adatok

Állapot: Újszerű
Fűtés: Egyéb
Energetikai besorolás: Nem adta meg a hirdető

Az OTP Bank lakáshitel ajánlataFizetett hirdetés

+36 30 322
Micskey Marianna Vanda
referens

Érdekel az OTP Bank kedvezményes lakáshitel ajánlata? *

* A kérdésre „Igen” válasz bejelölése esetén, az „Üzenet küldése” gombra kattintva kijelentem, hogy az OTP Bank Nyrt. Adatkezelési tájékoztatójának tartalmát megismertem és tudomásul vettem.

Eladó téglalakás leírása

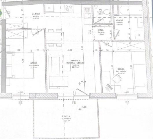
Székesfehérváron, a belváros közelében eladó egy 2024 októberében átadott, új építésű lakás. Az ingatlan a társasház hátsó, udvari részén található, ezért kifejezetten csendes és az utcazajtól mentes. Déli fekvésének köszönhetően a terek naposak, kifejezetten világosak.
A 66,5 nm-es alapterület 60 nm lakóteret és egy 11,3 nm-es teraszt foglal magában. A lakás elosztása praktikus: amerikai konyhás nappali, két különnyíló hálószoba, előszoba, tágas fürdő és egy különálló WC található.

A gépészet kiváló. A fűtést és hűtést korszerű hőszivattyús rendszer biztosítja, padlófűtéssel. A fenntartási költség alacsony, a műszaki tartalom megfelel egy új építésű, energiatakarékos otthonnal szemben támasztott elvárásoknak. A vételár részét képezi egy saját felszíni parkoló. A beálló árnyékos helyen van, de a lefedése már a társasház tervei között szerepel. A lakáshoz opcionálisan egy külön helyrajzi számon nyilvántartott, 3 nm-es tároló is vásárolható.
A környéken minden fontos szolgáltatás pár perces sétával elérhető. A lokáció és a modern felszereltség miatt a lakás befektetésnek is jó és értékálló választás, hiszen adottságainak köszönhetően könnyen kiadható.

Az OTP Ingatlanpont teljes körű, díjmentes ügyintézést biztosít, a finanszírozás előkészítésétől az adásvétel lebonyolításáig, kedvezményes hitellehetőségekkel.

Hirdetés feltöltve: 2026. 02. 19. Utoljára módosítva: 2026. 04. 01.

3 szobás téglalakások ára Székesfehérvárott

Ebből az összehasonlításból megtudhatod, hogyan viszonyul a lakás ára a környékbeli téglalakások átlagos árához. Ez nem azt jelenti, hogy ennyivel olcsóbb vagy drágább, mint amennyit a lakás ér, hanem hogy ennyivel tér el a környékbeli átlagtól.

Ennek a m² ára
Székesfehérvár m² ár
1600 e Ft
1190 e Ft -34%
Ennek az ára
Székesfehérvár átlagár
104 M Ft m Ft
86.9 m Ft -20%

Az ingatlan elhelyezkedése

Cím: Székesfehérvár

Eladó téglalakások a környékről

Székesfehérvár
Eladó téglalakás

Székesfehérvár

114.9 M Ft
4 szoba
136 m²
Székesfehérvár
Eladó téglalakás

Székesfehérvár

114.9 M Ft
4 szoba
113 m²
Székesfehérvár, Belváros, Távirda u. 35
Eladó téglalakás

Székesfehérvár

142.9 M Ft
4 szoba
140 m²
Székesfehérvár
Eladó téglalakás

Székesfehérvár

70.403 M Ft
2 szoba
70 m²
Székesfehérvár
Eladó téglalakás

Székesfehérvár

94.9 M Ft
2 szoba
73 m²
Székesfehérvár
Eladó téglalakás

Székesfehérvár

68.513 M Ft
2 szoba
68 m²
Gárdony
Eladó téglalakás

Gárdony

85 M Ft
5 szoba
186 m²
Székesfehérvár
Eladó téglalakás

Székesfehérvár

114.9 M Ft
4 szoba
136 m²
Gárdony
Eladó téglalakás

Gárdony

101.905 M Ft
5 szoba
186 m²
Székesfehérvár
Eladó téglalakás

Székesfehérvár

119.9 M Ft
1 + 3 szoba
84 m²
Székesfehérvár
Eladó téglalakás

Székesfehérvár

119.9 M Ft
1 + 3 szoba
84 m²
Székesfehérvár, Belváros, Budai út 8. B épület
Eladó téglalakás

Székesfehérvár

88.9 M Ft
2 szoba
49 m²
Székesfehérvár
Eladó téglalakás

Székesfehérvár

114.9 M Ft
4 szoba
113 m²
Székesfehérvár, Belváros, Távirda u. 35
Eladó téglalakás

Székesfehérvár

142.9 M Ft
4 szoba
140 m²
Székesfehérvár
Eladó téglalakás

Székesfehérvár

195 M Ft
4 szoba
151 m²
Óbarok
Eladó téglalakás

Óbarok

21.8 M Ft
1 szoba
28 m²
Székesfehérvár
Eladó téglalakás

Székesfehérvár

169 M Ft
1 + 4 szoba
132 m²
Székesfehérvár
Eladó téglalakás

Székesfehérvár

94.9 M Ft
2 szoba
73 m²
Székesfehérvár, Belváros, Budai út 8. B épület
Eladó téglalakás

Székesfehérvár

88.9 M Ft
2 szoba
49 m²
Aba
Eladó téglalakás

Aba

58.9 M Ft
2 szoba
60 m²
Enying, Petőfi Sándor utca
Eladó téglalakás

Enying

29.9 M Ft
2 szoba
72 m²
Székesfehérvár
Eladó téglalakás

Székesfehérvár

150 M Ft
4 szoba
150 m²
Székesfehérvár
Eladó téglalakás

Székesfehérvár

72.2 M Ft
4 szoba
69 m²
Székesfehérvár
Eladó téglalakás

Székesfehérvár

84 M Ft
4 szoba
132 m²

Falusi CSOK ingatlanok

Tápióság
Eladó családi ház

Tápióság

36.99 M Ft
2 szoba
81 m²
Vajszló
Eladó családi ház

Vajszló

43 M Ft
4 szoba
123 m²
Somogycsicsó
Eladó családi ház

Somogycsicsó

15.99 M Ft
4 szoba
98 m²
Balatonakali
Eladó ikerház

Balatonakali

129 M Ft
4 szoba
145 m²
Tápióbicske
Eladó családi ház

Tápióbicske

37.5 M Ft
2 szoba
70 m²
Hásságy
Eladó családi ház

Hásságy

29.9 M Ft
2 szoba
70 m²
Röszke
Eladó családi ház

Röszke

140 M Ft
4 szoba
162 m²
Bodajk
Eladó ikerház

Bodajk

67.9 M Ft
5 szoba
108 m²