Astora Art House

Eladó téglalakás
Székesfehérvár

+ 3 kép 1/6
75 000 000 Ft75 M Ft 1 595 745 Ft/m2
2 szoba
47 m2
építés éve:2026

Részletes adatok

Fűtés: Egyéb
Extrák: Lift
Energetikai besorolás: Nem adta meg a hirdető

Az OTP Bank lakáshitel ajánlataFizetett hirdetés

+36 30 950
Bertók Krisztián
BertokIngatlan

Érdekel az OTP Bank kedvezményes lakáshitel ajánlata? *

* A kérdésre „Igen” válasz bejelölése esetén, az „Üzenet küldése” gombra kattintva kijelentem, hogy az OTP Bank Nyrt. Adatkezelési tájékoztatójának tartalmát megismertem és tudomásul vettem.

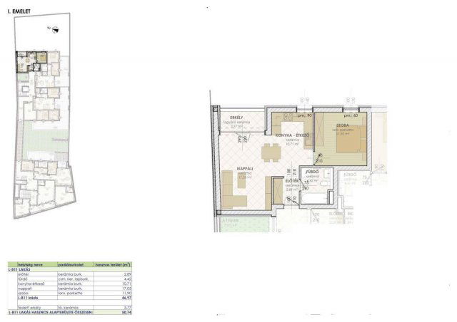
Eladó téglalakás leírása

Székesfehérvár központi részén, a Palotai úton kínálunk megvételre egy új építésű, modern társasházban található lakást, kiváló elhelyezkedéssel és praktikus elrendezéssel.

A lakás 46,97 m² alapterületű, nappali–konyha–étkezővel, külön hálószobával, fürdőszoba–WC-vel, valamint 3 m²-es erkéllyel rendelkezik. A jól átgondolt alaprajznak köszönhetően a terek világosak, könnyen bútorozhatók, a lakás ideális választás első otthonnak, fiatal pároknak vagy befektetési célra egyaránt.

A központi elhelyezkedésnek köszönhetően a belváros, üzletek, szolgáltatások, buszmegállók és intézmények gyalogosan is kényelmesen elérhetők, ami jelentősen növeli az ingatlan értékét és kiadhatóságát.

Az ingatlan kulcsrakész állapotban kerül átadásra, modern műszaki megoldásokkal és minőségi anyaghasználattal. A lakáshoz igény szerint fedett gépkocsibeálló is vásárolható, amely tovább növeli a mindennapi kényelmet.

A műszaki átadás várható időpontja 2027 tavasz.

Ez a lakás kiváló lehetőség mindazok számára, akik új építésű, központi elhelyezkedésű, erkélyes otthont vagy értékálló befektetést keresnek Székesfehérváron.
Több mint 15 éves tapasztalattal segítünk eligazodni a pénzügyi lehetőségek között – legyen szó lakáshitelről vagy támogatásokról, és most akár a 2025 szeptemberétől elérhető 3%-os fix kamatozású Otthon Start lakáshitelről is –, hogy Ön a lehető legkedvezőbb feltételekkel valósíthassa meg otthonteremtési céljait.
Érdeklődni akár hétvégén is!

Hirdetés feltöltve: 2026. 01. 09. Utoljára módosítva: 2026. 01. 09.

2 szobás téglalakások ára Székesfehérvárott

Ebből az összehasonlításból megtudhatod, hogyan viszonyul a lakás ára a környékbeli téglalakások átlagos árához. Ez nem azt jelenti, hogy ennyivel olcsóbb vagy drágább, mint amennyit a lakás ér, hanem hogy ennyivel tér el a környékbeli átlagtól.

Ennek a m² ára
Székesfehérvár m² ár
1596 e Ft
1175 e Ft -36%
Ennek az ára
Székesfehérvár átlagár
75 M Ft m Ft
63.7 m Ft -18%

Az ingatlan elhelyezkedése

Cím: Székesfehérvár

Eladó téglalakások a környékről

Eladó téglalakás
Eladó téglalakás

Lepsény

34.9 M Ft
2 szoba
36 m2
Eladó téglalakás
Eladó téglalakás

Pákozd

99 M Ft
4 szoba
125 m2
Eladó téglalakás
Eladó téglalakás

Székesfehérvár, Belváros, Budai út 8. B épület

83.9 M Ft
2 szoba
49 m2
Eladó téglalakás
Eladó téglalakás

Lepsény

22.9 M Ft
2 szoba
56 m2
Eladó téglalakás
Eladó téglalakás

Székesfehérvár

119.9 M Ft
4 szoba
91 m2
Eladó téglalakás
Eladó téglalakás

Ercsi

28 M Ft
3 szoba
127 m2
Eladó téglalakás
Eladó téglalakás

Székesfehérvár

82.99 M Ft
4 szoba
91 m2
Eladó téglalakás
Eladó téglalakás

Székesfehérvár

94.9 M Ft
3 szoba
73 m2
Eladó téglalakás
Eladó téglalakás

Székesfehérvár

52.5 M Ft
2 szoba
58 m2
Eladó téglalakás
Eladó téglalakás

Székesfehérvár

61.99 M Ft
1 + 3 szoba
79 m2
Eladó téglalakás
Eladó téglalakás

Sárbogárd

61.95 M Ft
1 + 2 szoba
64 m2
Eladó téglalakás
Eladó téglalakás

Pákozd

99 M Ft
4 szoba
126 m2
Eladó téglalakás
Eladó téglalakás

Székesfehérvár

169 M Ft
5 szoba
132 m2
Eladó téglalakás
Eladó téglalakás

Gárdony

44.8 M Ft
3 szoba
70 m2
Eladó téglalakás
Eladó téglalakás

Óbarok

13 M Ft
1 szoba
28 m2
Eladó téglalakás
Eladó téglalakás

Gárdony

101.905 M Ft
5 szoba
186 m2
Eladó téglalakás
Eladó téglalakás

Székesfehérvár

114.9 M Ft
4 szoba
113 m2
Eladó téglalakás
Eladó téglalakás

Székesfehérvár

74.9 M Ft
3 szoba
94 m2
Eladó téglalakás
Eladó téglalakás

Székesfehérvár

716.841 M Ft
1 + 2 szoba
66 m2
Eladó téglalakás
Eladó téglalakás

Székesfehérvár

169 M Ft
1 + 4 szoba
132 m2
Eladó téglalakás
Eladó téglalakás

Ercsi

31 M Ft
2 szoba
106 m2
Eladó téglalakás
Eladó téglalakás

Bicske, Csákvári utca

57.72 M Ft
3 szoba
64 m2
Eladó téglalakás
Eladó téglalakás

Pákozd

99 M Ft
4 szoba
126 m2
Eladó téglalakás
Eladó téglalakás

Székesfehérvár

270 M Ft
5 szoba
421 m2

Falusi CSOK ingatlanok

Eladó családi ház
Eladó családi ház

Lesenceistvánd

75 M Ft
2 szoba
90 m2
Eladó családi ház
Eladó családi ház

Mezőfalva

39 M Ft
3 szoba
77 m2
Eladó családi ház
Eladó családi ház

Hunya

10.99 M Ft
3 szoba
80 m2
Eladó téglalakás
Eladó téglalakás

Hegyeshalom

41.18 M Ft
2 szoba
38 m2
Eladó ikerház
Eladó ikerház

Seregélyes

39.9 M Ft
4 szoba
150 m2
Eladó családi ház
Eladó családi ház

Vajszló

18 M Ft
2 szoba
91 m2
Eladó családi ház
Eladó családi ház

Poroszló, Dobosok útja 8

18.94 M Ft
1 + 1 szoba
116 m2
Eladó családi ház
Eladó családi ház

Bakonyszentkirály

99.99 M Ft
5 szoba
126 m2