Metrodom

Eladó téglalakás
Szeged, földszint

+ 17 kép 1/20
59 900 000 Ft59.9 M Ft 1 130 189 Ft/m2
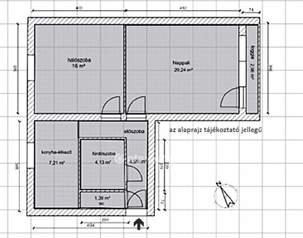
2 szoba
53 m²
földszint
építés éve:1975

Részletes adatok

Állapot: Felújított
Fűtés: Gázkazán
Emelet: földszint
Energetikai besorolás: Nem adta meg a hirdető

Az OTP Bank lakáshitel ajánlataFizetett hirdetés

+36 30 733
Puskásné Ember Ninette
Szeged Széchenyi tér 6 - OTP Ingatlanpont Iroda

Érdekel az OTP Bank kedvezményes lakáshitel ajánlata? *

* A kérdésre „Igen” válasz bejelölése esetén, az „Üzenet küldése” gombra kattintva kijelentem, hogy az OTP Bank Nyrt. Adatkezelési tájékoztatójának tartalmát megismertem és tudomásul vettem.

Eladó téglalakás leírása

Szegeden 2 szobás frissen felújított téglalakás loggiával eladó!
Az 55 nm hasznos alapterülettel rendelkező földszinti lakás felújítása során az áramellátás bővítése 24 A áramerősségű biztosítékokkal és a vezetékek cseréjével megtörtént. Központi fűtésrendszer biztosítja az otthon melegét, melyhez korszerű gázkazán és lapradiátorok lettek felszerelve. Nyílászárói kétrétegű hőszigetelt műanyag ablakok, részben redőnnyel felszereltek; a bejárat több ponton záródó biztonsági ajtóval szerelt.
Új konyha és fürdőszoba, valamint a burkolatok teljes cseréje zajlik, így komoly érdeklődés esetén még a végleges kialakítás a vevő igényeivel összhangba hozhatók.
A lakás egy 3x14 lakásos társasházban található, egymást segítő, összetartó közösséggel, rendezett lépcsőházzal és barátságos fákkal teli kialakult környezetben. A társasház kezelését felkészült csapat viszi, professzionális mindenre kiterjedő gondossággal. A ház külső szigetelése a korábbi évek során megtörtént.
Az ingatlan kitűnő infrastruktúrával bír, óvoda, iskola, játszótér, orvosi rendelők, bevásárlási lehetőségek és a tömegközlekedési eszközök is rövid sétával elérhetők.
Az ingatlan kitűnő választás akár fiataloknak, vagy kisgyermekes család számára, de az idősebb korosztály is nyugodt, kellemes otthonra találhat ebben a szép lakásban.
Az ingatlan megvásárlásához az OTP finanszírozási megoldásait ajánlom. Otthon Start, vagy Babaváró hitel, vagy OTP Évnyerő lakáshitel is igénybe vehető, melyek intézéséhez szakszerű segítséggel állok a vevő rendelkezésére.

Referencia szám: M312183

Hirdetés feltöltve: 2026. 04. 08. Utoljára módosítva: 2026. 04. 25.

2 szobás téglalakások ára Szegeden

Ebből az összehasonlításból megtudhatod, hogyan viszonyul a lakás ára a környékbeli téglalakások átlagos árához. Ez nem azt jelenti, hogy ennyivel olcsóbb vagy drágább, mint amennyit a lakás ér, hanem hogy ennyivel tér el a környékbeli átlagtól.

Ennek a m² ára
Szeged m² ár
1130 e Ft
1149 e Ft 2%
Ennek az ára
Szeged átlagár
59.9 M Ft m Ft
59.9 m Ft 0%

Az ingatlan elhelyezkedése

Cím: Szeged, földszint

Eladó téglalakások a környékről

Szeged
Eladó téglalakás

Szeged

39.9 M Ft
2 szoba
32 m²
Szeged
Eladó téglalakás

Szeged

109.9 M Ft
3 szoba
91 m²
Szeged
Eladó téglalakás

Szeged

114.9 M Ft
4 + 1 szoba
261 m²
Szeged
Eladó téglalakás

Szeged

79.9 M Ft
2 szoba
63 m²
Szeged
Eladó téglalakás

Szeged

599.999 M Ft
4 szoba
302 m²
Szeged
Eladó téglalakás

Szeged

73.9 M Ft
3 szoba
66 m²
Szeged
Eladó téglalakás

Szeged

39.9 M Ft
2 szoba
32 m²
Szeged
Eladó téglalakás

Szeged

119.9 M Ft
5 szoba
118 m²
Szeged
Eladó téglalakás

Szeged

74.9 M Ft
3 szoba
82 m²
Szeged
Eladó téglalakás

Szeged

109.9 M Ft
3 szoba
91 m²
Szeged
Eladó téglalakás

Szeged

99.9 M Ft
2 szoba
80 m²
Szeged
Eladó téglalakás

Szeged

39.9 M Ft
2 szoba
32 m²
Szeged
Eladó téglalakás

Szeged

79.9 M Ft
2 szoba
63 m²
Szeged
Eladó téglalakás

Szeged

179 M Ft
4 szoba
176 m²
Szeged
Eladó téglalakás

Szeged

74.9 M Ft
3 szoba
57 m²
Szeged, Londoni körút
Eladó téglalakás

Szeged

59.9 M Ft
2 szoba
55 m²
Szeged
Eladó téglalakás

Szeged

39.9 M Ft
2 szoba
32 m²
Szeged
Eladó téglalakás

Szeged

84.9 M Ft
3 szoba
82 m²
Szeged
Eladó téglalakás

Szeged

179 M Ft
4 szoba
176 m²
Szeged, Londoni körút
Eladó téglalakás

Szeged

59.9 M Ft
2 szoba
55 m²
Szeged
Eladó téglalakás

Szeged

135 M Ft
4 szoba
116 m²
Szeged
Eladó téglalakás

Szeged

70.9 M Ft
3 szoba
70 m²
Szeged
Eladó téglalakás

Szeged

74.9 M Ft
3 szoba
82 m²
Deszk
Eladó téglalakás

Deszk

44.9 M Ft
2 szoba
66 m²

Falusi CSOK ingatlanok

Páka
Eladó családi ház

Páka

23 M Ft
2 szoba
75 m²
Sződ
Eladó családi ház

Sződ

116 M Ft
5 szoba
136 m²
Kéthely
Eladó családi ház

Kéthely

97 M Ft
3 szoba
109 m²
Apaj
Eladó családi ház

Apaj

52.9 M Ft
3 szoba
70 m²
Nagybörzsöny
Eladó családi ház

Nagybörzsöny

49.76 M Ft
3 szoba
110 m²
Hegyeshalom, Margaréta utca 12
Eladó téglalakás

Hegyeshalom

50.09 M Ft
2 szoba
43 m²
Hosszúhetény, Petőfi Sándor utca 10
Eladó családi ház

Hosszúhetény

20.65 M Ft
4 + 2 szoba
133 m²
Hegyeshalom, Margaréta utca 12
Eladó téglalakás

Hegyeshalom

32.89 M Ft
1 szoba
27 m²