River Life

Eladó téglalakás
Szeged, 3. emelet

+ 5 kép 1/8
115 000 000 Ft115 M Ft 1 402 439 Ft/m2
3 szoba
82 m²
3. emelet
építés éve:2026

Részletes adatok

Fűtés: Egyéb
Emelet: 3. emelet
Extrák: Lift
Energetikai besorolás: Nem adta meg a hirdető

Az OTP Bank lakáshitel ajánlataFizetett hirdetés

+36 30 394
Szandi Zita
referens

Érdekel az OTP Bank kedvezményes lakáshitel ajánlata? *

* A kérdésre „Igen” válasz bejelölése esetén, az „Üzenet küldése” gombra kattintva kijelentem, hogy az OTP Bank Nyrt. Adatkezelési tájékoztatójának tartalmát megismertem és tudomásul vettem.

Eladó téglalakás leírása

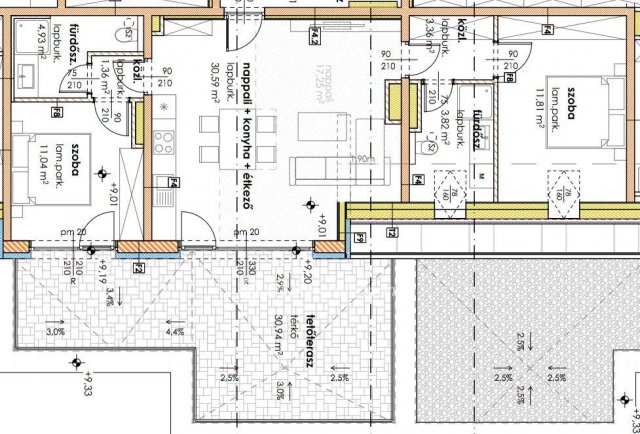
Csongrád - Csanád vármegye, Szeged-Belváros közelében elhelyezkedő épülő liftes társasházban, harmadik emeleti 97,85 m2 alapterületű, belső udvarra néző tetőteraszos lakás eladó. Az ingatlan kulcsrakészen kerül átadásra ( konyhabútor nélkül). Az épület téglából, hőszigeteléssel, korszerű technológiával készül. Az otthon melegét hőszivattyús rendszer biztosítja, padlófűtéssel és fan coli hűtéssel. A lakás elosztása szerint egy amerikai konyhás nappali - 2 db hálószobából áll. A lakásban továbbá 2 db WC-vel rendelekző zuhanyzós fürdőszoba kerül kialakításra. A 30,94 m2 alapterületű tetőteraszra a nappaliból és az egyik hálóból is ajtó nyílik. A lakáshoz garázs vagy udvari parkolóhely is vásárolható. A kínálatunkból választott ingatlan finanszírozásához kedvezményes hitel- és pénzügyi konstrukciókat, hitel megoldásokat kínálunk. Az adásvételi szerződés megkötéséhez igény szerint, megbízható ügyvédi közreműködést és a kapcsolódó ügyek intézéséhez segítséget nyújtunk.

Hirdetés feltöltve: 2026. 04. 01. Utoljára módosítva: 2026. 04. 14.

3 szobás téglalakások ára Szegeden

Ebből az összehasonlításból megtudhatod, hogyan viszonyul a lakás ára a környékbeli téglalakások átlagos árához. Ez nem azt jelenti, hogy ennyivel olcsóbb vagy drágább, mint amennyit a lakás ér, hanem hogy ennyivel tér el a környékbeli átlagtól.

Ennek a m² ára
Szeged m² ár
1402 e Ft
1133 e Ft -24%
Ennek az ára
Szeged átlagár
115 M Ft m Ft
86.7 m Ft -33%

Az ingatlan elhelyezkedése

Cím: Szeged, 3. emelet

Eladó téglalakások a környékről

Szeged
Eladó téglalakás

Szeged

52.9 M Ft
3 szoba
48 m²
Szeged
Eladó téglalakás

Szeged

109.9 M Ft
3 szoba
91 m²
Szeged, Belváros, Bakay Nándor utca
Eladó téglalakás

Szeged

199.9 M Ft
2 + 2 szoba
196 m²
Szeged, Belváros, Bakay Nándor utca
Eladó téglalakás

Szeged

199.9 M Ft
2 + 2 szoba
196 m²
Szeged
Eladó téglalakás

Szeged

74.9 M Ft
3 szoba
57 m²
Szeged
Eladó téglalakás

Szeged

599.999 M Ft
4 szoba
302 m²
Szeged
Eladó téglalakás

Szeged

114.9 M Ft
4 + 1 szoba
123 m²
Szeged
Eladó téglalakás

Szeged

149 M Ft
4 + 1 szoba
132 m²
Szeged
Eladó téglalakás

Szeged

179 M Ft
4 szoba
176 m²
Szeged, Londoni körút
Eladó téglalakás

Szeged

59.9 M Ft
2 szoba
55 m²
Szeged
Eladó téglalakás

Szeged

74.9 M Ft
3 szoba
82 m²
Szeged
Eladó téglalakás

Szeged

79.9 M Ft
2 szoba
63 m²
Szeged
Eladó téglalakás

Szeged

99.99 M Ft
4 szoba
104 m²
Szeged
Eladó téglalakás

Szeged

58.7 M Ft
2 szoba
49 m²
Szeged
Eladó téglalakás

Szeged

39.9 M Ft
2 szoba
32 m²
Szeged
Eladó téglalakás

Szeged

70.9 M Ft
3 szoba
70 m²
Szeged
Eladó téglalakás

Szeged

74.9 M Ft
3 szoba
57 m²
Kistelek, Kossuth utca
Eladó téglalakás

Kistelek

54.9 M Ft
3 szoba
115 m²
Szeged
Eladó téglalakás

Szeged

599.999 M Ft
4 szoba
302 m²
Szeged
Eladó téglalakás

Szeged

179 M Ft
4 szoba
176 m²
Szeged
Eladó téglalakás

Szeged

58.7 M Ft
2 szoba
49 m²
Szeged
Eladó téglalakás

Szeged

135 M Ft
4 szoba
116 m²
Szeged
Eladó téglalakás

Szeged

97.99 M Ft
3 szoba
76 m²
Szeged
Eladó téglalakás

Szeged

99.99 M Ft
4 szoba
104 m²

Falusi CSOK ingatlanok

Fülöpszállás
Eladó családi ház

Fülöpszállás

299 M Ft
14 + 5 szoba
680 m²
Szarvaskő, Rózsa utca
Eladó családi ház

Szarvaskő

54.9 M Ft
1 + 3 szoba
140 m²
Tápiógyörgye
Eladó családi ház

Tápiógyörgye

8.5 M Ft
2 szoba
63 m²
Villány
Eladó családi ház

Villány

31 M Ft
1 szoba
35 m²
Balatonudvari
Eladó családi ház

Balatonudvari

240 M Ft
9 szoba
260 m²
Törtel
Eladó családi ház

Törtel

39 M Ft
1 + 1 szoba
118 m²
Tornyiszentmiklós
Eladó családi ház

Tornyiszentmiklós

29.9 M Ft
3 szoba
110 m²
Pilisszentkereszt, Pipacs u 1
Eladó családi ház

Pilisszentkereszt

195 M Ft
6 szoba
300 m²