River Life

Eladó téglalakás
Szeged, 1. emelet

+ 4 kép 1/7
108 726 300 Ft108.726 M Ft 1 412 030 Ft/m2
4 szoba
77 m²
1. emelet
építés éve:2026

Részletes adatok

Fűtés: Egyéb
Emelet: 1. emelet
Energetikai besorolás: Nem adta meg a hirdető

Az OTP Bank lakáshitel ajánlataFizetett hirdetés

+36 30 733
Puskásné Ember Ninette
Szeged Széchenyi tér 6 - OTP Ingatlanpont Iroda

Érdekel az OTP Bank kedvezményes lakáshitel ajánlata? *

* A kérdésre „Igen” válasz bejelölése esetén, az „Üzenet küldése” gombra kattintva kijelentem, hogy az OTP Bank Nyrt. Adatkezelési tájékoztatójának tartalmát megismertem és tudomásul vettem.

Eladó téglalakás leírása

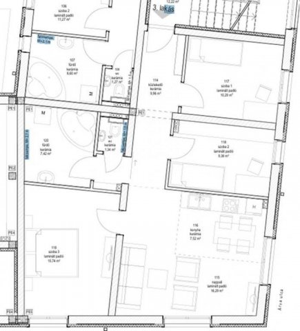
Szeged, Belváros, 77,94 m2-es, 4 szobás, 1. emeleti, magas műszaki tartalmú és minőségű, újépítésű téglalakás, tulajdonos-kivitelezőtől, 25% kezdő befizetéssel eladó. A kulcsrakész átadás tervezett időpontja: 2026.05.31. A lakásban amerikaikonyhás nappali + 3 szoba és fürdőszoba található. A szoba laminált parketta-, a többi helyiség járólap burkolatot kapnak. Az otthon melegét hőszivattyús fűtés biztosítja. A lakáshoz opcionálisan, udvari beálló, vagy garázs is vásárolható. A TIK, egyetemi épületek, klinikák és tömegközlekedési megállók gyorsan elérhetők, ezért rendkívül kedvező lehetőség lehet, befektetők és diákok számára is. Az ingatlan megvásárlásához kedvező hitel is igényelhető, melynek intézéséhez szakszerű segítség áll a leendő vásárló rendelkezésére.

Referencia szám: M312912

Hirdetés feltöltve: 2026. 04. 01. Utoljára módosítva: 2026. 04. 19.

4 szobás téglalakások ára Szegeden

Ebből az összehasonlításból megtudhatod, hogyan viszonyul a lakás ára a környékbeli téglalakások átlagos árához. Ez nem azt jelenti, hogy ennyivel olcsóbb vagy drágább, mint amennyit a lakás ér, hanem hogy ennyivel tér el a környékbeli átlagtól.

Ennek a m² ára
Szeged m² ár
1412 e Ft
1130 e Ft -25%
Ennek az ára
Szeged átlagár
108.726 M Ft m Ft
111.6 m Ft 3%

Az ingatlan elhelyezkedése

Cím: Szeged, 1. emelet

Eladó téglalakások a környékről

Szeged
Eladó téglalakás

Szeged

84.9 M Ft
3 szoba
82 m²
Szeged
Eladó téglalakás

Szeged

99.9 M Ft
2 szoba
80 m²
Szeged
Eladó téglalakás

Szeged

114.9 M Ft
4 + 1 szoba
123 m²
Szeged
Eladó téglalakás

Szeged

79.9 M Ft
2 szoba
63 m²
Szeged, Londoni körút
Eladó téglalakás

Szeged

59.9 M Ft
2 szoba
55 m²
Szeged
Eladó téglalakás

Szeged

114.9 M Ft
4 + 1 szoba
261 m²
Szeged
Eladó téglalakás

Szeged

135 M Ft
4 szoba
116 m²
Szeged
Eladó téglalakás

Szeged

52.9 M Ft
3 szoba
48 m²
Szeged
Eladó téglalakás

Szeged

179 M Ft
4 szoba
176 m²
Szeged
Eladó téglalakás

Szeged

74.9 M Ft
3 szoba
57 m²
Szeged
Eladó téglalakás

Szeged

149 M Ft
4 + 1 szoba
132 m²
Szeged
Eladó téglalakás

Szeged

73.9 M Ft
3 szoba
66 m²
Szeged
Eladó téglalakás

Szeged

26 M Ft
4 szoba
130 m²
Szeged
Eladó téglalakás

Szeged

70.9 M Ft
3 szoba
70 m²
Szeged
Eladó téglalakás

Szeged

39.9 M Ft
2 szoba
32 m²
Szeged
Eladó téglalakás

Szeged

73.9 M Ft
3 szoba
66 m²
Szeged
Eladó téglalakás

Szeged

109.9 M Ft
3 szoba
91 m²
Szeged
Eladó téglalakás

Szeged

70.9 M Ft
3 szoba
70 m²
Szeged, Belváros, Bakay Nándor utca
Eladó téglalakás

Szeged

199.9 M Ft
2 + 2 szoba
196 m²
Deszk
Eladó téglalakás

Deszk

44.9 M Ft
2 szoba
66 m²
Szeged
Eladó téglalakás

Szeged

114.9 M Ft
4 + 1 szoba
123 m²
Szeged
Eladó téglalakás

Szeged

79.9 M Ft
2 szoba
63 m²
Szeged, Londoni körút
Eladó téglalakás

Szeged

59.9 M Ft
2 szoba
55 m²
Szeged
Eladó téglalakás

Szeged

99.99 M Ft
4 szoba
104 m²

Falusi CSOK ingatlanok

Szentliszló
Eladó családi ház

Szentliszló

58.9 M Ft
2 + 3 szoba
170 m²
Hegyeshalom, Margaréta utca 12
Eladó téglalakás

Hegyeshalom

32.89 M Ft
1 szoba
27 m²
Szabadbattyán
Eladó családi ház

Szabadbattyán

147.99 M Ft
5 szoba
255 m²
Balatonkenese
Eladó családi ház

Balatonkenese

170 M Ft
4 szoba
140 m²
Törtel
Eladó családi ház

Törtel

42 M Ft
3 szoba
98 m²
Badacsonytördemic
Eladó családi ház

Badacsonytördemic

90 M Ft
3 szoba
130 m²
Jakabszállás
Eladó családi ház

Jakabszállás

105 M Ft
6 szoba
180 m²
Somogyvár
Eladó sorház

Somogyvár

45 M Ft
4 szoba
105 m²