Oasis Residence

Eladó téglalakás
Szeged

+ 2 kép 1/5
54 548 000 Ft54.548 M Ft 1 298 762 Ft/m2
2 szoba
42 m2
építés éve:2026

Részletes adatok

Fűtés: Geotermikus
Energetikai besorolás: Nem adta meg a hirdető

Az OTP Bank lakáshitel ajánlataFizetett hirdetés

+36 70 615
Csuka Bonita Zsófia
Szeged Széchenyi tér 6 - OTP Ingatlanpont Iroda

Érdekel az OTP Bank kedvezményes lakáshitel ajánlata? *

* A kérdésre „Igen” válasz bejelölése esetén, az „Üzenet küldése” gombra kattintva kijelentem, hogy az OTP Bank Nyrt. Adatkezelési tájékoztatójának tartalmát megismertem és tudomásul vettem.

Eladó téglalakás leírása

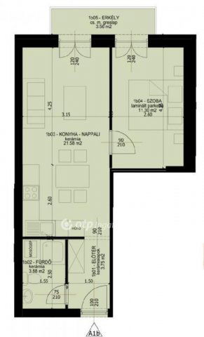
Szeged, Alsóváros, 42,29 m2-es, 2 szobás (amerikai konyha + nappali), 1. emeleti, újépítésű téglalakás, tulajdonos-kivitelezőtől, 30% kezdő befizetéssel eladó. A kulcsrakész átadás tervezett időpontja: 2026.12.31. A lakásban amerikai konyhás nappali + 1 szoba, fürdőszoba és erkély található. A szobák laminált parketta-, a többi helyiség járólap burkolatot kapnak. Az otthon melegét geotermikus fűtés biztosítja. A lakáshoz opcionálisan, udvari beálló, vagy garázs is vásárolható. A TIK, egyetemi épületek, klinikák és tömegközlekedési megállók mindössze pár perc sétára találhatók, ezért rendkívül kedvező lehetőség lehet, befektetők és diákok számára is. Az ingatlan megvásárlásához kedvező hitel is igényelhető, melynek intézéséhez szakszerű segítség áll a leendő vásárló rendelkezésére.

Hirdetés feltöltve: 2025. 12. 19. Utoljára módosítva: 2026. 01. 25.

2 szobás téglalakások ára Szegeden

Ebből az összehasonlításból megtudhatod, hogyan viszonyul a lakás ára a környékbeli téglalakások átlagos árához. Ez nem azt jelenti, hogy ennyivel olcsóbb vagy drágább, mint amennyit a lakás ér, hanem hogy ennyivel tér el a környékbeli átlagtól.

Ennek a m² ára
Szeged m² ár
1299 e Ft
1078 e Ft -21%
Ennek az ára
Szeged átlagár
54.548 M Ft m Ft
75.5 m Ft 28%

Az ingatlan elhelyezkedése

Cím: Szeged

Eladó téglalakások a környékről

Eladó téglalakás
Eladó téglalakás

Szeged

114.9 M Ft
4 + 1 szoba
261 m2
Eladó téglalakás
Eladó téglalakás

Szeged

79.9 M Ft
3 szoba
71 m2
Eladó téglalakás
Eladó téglalakás

Szeged

70.9 M Ft
3 szoba
70 m2
Eladó téglalakás
Eladó téglalakás

Szeged

39.9 M Ft
2 szoba
32 m2
Eladó téglalakás
Eladó téglalakás

Szeged

140.525 M Ft
4 szoba
176 m2
Eladó téglalakás
Eladó téglalakás

Szeged

79.9 M Ft
3 szoba
71 m2
Eladó téglalakás
Eladó téglalakás

Szeged

114.9 M Ft
4 + 1 szoba
123 m2
Eladó téglalakás
Eladó téglalakás

Szeged

58.7 M Ft
2 szoba
49 m2
Eladó téglalakás
Eladó téglalakás

Szeged

599.999 M Ft
4 szoba
302 m2
Eladó téglalakás
Eladó téglalakás

Szeged

52.9 M Ft
3 szoba
48 m2
Eladó téglalakás
Eladó téglalakás

Szeged

73.9 M Ft
3 szoba
66 m2
Eladó téglalakás
Eladó téglalakás

Szeged

149 M Ft
4 + 1 szoba
132 m2
Eladó téglalakás
Eladó téglalakás

Szeged

74.9 M Ft
3 szoba
57 m2
Eladó téglalakás
Eladó téglalakás

Szeged, Belváros, Bakay Nándor utca

209.9 M Ft
2 + 2 szoba
196 m2
Eladó téglalakás
Eladó téglalakás

Szeged

73.9 M Ft
3 szoba
66 m2
Eladó téglalakás
Eladó téglalakás

Szeged, Belváros, Bakay Nándor utca

209.9 M Ft
2 + 2 szoba
196 m2
Eladó téglalakás
Eladó téglalakás

Szeged

52.9 M Ft
3 szoba
48 m2
Eladó téglalakás
Eladó téglalakás

Szeged

79.9 M Ft
2 szoba
63 m2
Eladó téglalakás
Eladó téglalakás

Szeged

71.5 M Ft
3 szoba
71 m2
Eladó téglalakás
Eladó téglalakás

Szeged

79.9 M Ft
3 szoba
86 m2
Eladó téglalakás
Eladó téglalakás

Szeged

74.9 M Ft
3 szoba
57 m2
Eladó téglalakás
Eladó téglalakás

Szeged

119.9 M Ft
5 szoba
118 m2
Eladó téglalakás
Eladó téglalakás

Szeged

58.7 M Ft
2 szoba
49 m2
Eladó téglalakás
Eladó téglalakás

Szeged

109.9 M Ft
3 szoba
91 m2

Falusi CSOK ingatlanok

Eladó családi ház
Eladó családi ház

Adács

30 M Ft
2 szoba
75 m2
Eladó családi ház
Eladó családi ház

Baté

21.8 M Ft
2 szoba
60 m2
Eladó családi ház
Eladó családi ház

Véménd, Rákóczi Ferenc utca

31 M Ft
4 szoba
120 m2
Eladó családi ház
Eladó családi ház

Ásványráró, Egres utca

35 M Ft
3 szoba
75 m2
Eladó családi ház
Eladó családi ház

Halogy

6.9 M Ft
2 szoba
53 m2
Eladó családi ház
Eladó családi ház

Bükkzsérc

109.99 M Ft
5 + 1 szoba
243 m2
Eladó családi ház
Eladó családi ház

Bezenye

84.9 M Ft
4 szoba
139 m2
Eladó családi ház
Eladó családi ház

Balatonkeresztúr, Berek utca

149 M Ft
4 szoba
185 m2