Eladó téglalakás
Szeged, Tetőtér

+ 5 kép 1/8
123 000 000 Ft123 M Ft 1 835 821 Ft/m2
2 + 1 szoba
67 m2
Tetőtér
építés éve:2026

Részletes adatok

Fűtés: Egyéb
Közmű: Víz, Gáz, Villany, Csatorna
Energetikai besorolás: Nem adta meg a hirdető

Az OTP Bank lakáshitel ajánlataFizetett hirdetés

+36 20 216
Álomlak Kft.
referens

Érdekel az OTP Bank kedvezményes lakáshitel ajánlata? *

* A kérdésre „Igen” válasz bejelölése esetén, az „Üzenet küldése” gombra kattintva kijelentem, hogy az OTP Bank Nyrt. Adatkezelési tájékoztatójának tartalmát megismertem és tudomásul vettem.

Eladó téglalakás leírása

Új építésű lakások (42-98 m2 között) Szeged Felsővárosában – a belvárostól pár percre, bevezető, elővásárlási áron!
Szeged egyik legkedveltebb városrészében, Felsővárosban, újonnan épülő társasházi lakások vásárolhatók!

Összesen 12 lakás érhető el jelenleg!
Lakások méretei: 35–98 m²
Árak: már 64 millió forinttól (3%-os hitel nem használható fel)
Szerkezetkész: 2026. december
Szakhatósági engedélyek: 2027. júniusra várható
2027-ben átadott lakás 2025-ös áron? Igen, ez most lehetséges!

Miért éri meg most vásárolni?
- Bevezető ár – most még idei áron juthatsz új lakáshoz
- Te választhatod ki a burkolatokat
- Modern fűtésrendszer: padlófűtés + fan coil
- Parkoló vagy garázs vásárolható
- Rugalmas fizetési ütemezés (kb. 40% önerő, a többi szakaszosan)

Jelenleg elérhető lakások:

3A lakás
44,88 m² + 9,75 m² erkély
1,5 szobás, ideális fiatal pároknak vagy befektetésnek
Világos erkély

3B lakás
49,21 m² + 9,93 m² erkély
1,5 szoba

4A lakás
52 m² + 5,5 m² erkély
1,5 szobás, kényelmes elosztás

4B lakás
47,2 m² + 7,17 m² loggia
1,5 szobás, loggiás lakás

5A lakás
35,1 m² + 7,3 m² loggia
Kompakt, de praktikus elosztás – befektetőknek tökéletes

5B lakás
46,54 m² + 3,94 m² loggia + 5,44 m² erkély
1,5 szoba, loggiával és erkéllyel egyaránt

6A lakás
44,83 m² + 9,76 m² erkély
1,5 szobás, modern kialakítás

6B lakás
49,16 m² + 9,54 m² erkély
1,5 szobás, kellemes méret, ideális első otthonként

7A lakás
51,32 m² + 4,78 m² erkély
1,5 szobás, jól bútorozható elrendezéssel

7B lakás
47,15 m² + 7,17 m² loggia
1,5 szobás, napfényes lakás loggiával

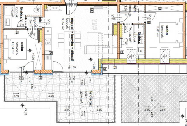
9-es lakás
66,91 m² + 30,94 m² terasz
2,5 szobás, hatalmas terasszal – tökéletes családosoknak vagy akik szeretnek szabadtéren pihenni

10-es lakás
59,2 m² + 7,17 m² erkély
1,5 szobás, kiváló elosztás, erkélyes, világos

Fizetési ütemezés:
Önerő: 30% + telek (összesen kb. 40%)
Fennmaradó rész: szakaszosan fizethető az építkezés üteme szerint
Használd ki az elővásárlási akciót és válaszd ki a számodra tökéletes lakást!

2027-ben új otthonod kulcsait már a kezedben tarthatod – de 2025-ös áron!

Alaprajzokat kérésre szívesen küldök!

Hirdetés feltöltve: 2025. 10. 15. Utoljára módosítva: 2025. 10. 15.

3 szobás téglalakások ára Szegeden

Ebből az összehasonlításból megtudhatod, hogyan viszonyul a lakás ára a környékbeli téglalakások átlagos árához. Ez nem azt jelenti, hogy ennyivel olcsóbb vagy drágább, mint amennyit a lakás ér, hanem hogy ennyivel tér el a környékbeli átlagtól.

Ennek a m² ára
Szeged m² ár
1836 e Ft
1066 e Ft -72%
Ennek az ára
Szeged átlagár
123 M Ft m Ft
81.1 m Ft -52%

Az ingatlan elhelyezkedése

Cím: Szeged, Tetőtér

Eladó téglalakások a környékről

Eladó téglalakás
Eladó téglalakás

Szeged, Londoni körút

59.9 M Ft
2 szoba
55 m2
Eladó téglalakás
Eladó téglalakás

Szeged

79.9 M Ft
3 szoba
71 m2
Eladó téglalakás
Eladó téglalakás

Szeged

99.99 M Ft
4 szoba
104 m2
Eladó téglalakás
Eladó téglalakás

Szeged

119.9 M Ft
5 szoba
118 m2
Eladó téglalakás
Eladó téglalakás

Deszk

44.9 M Ft
3 szoba
66 m2
Eladó téglalakás
Eladó téglalakás

Szeged

73.9 M Ft
3 szoba
66 m2
Eladó téglalakás
Eladó téglalakás

Szeged

34.9 M Ft
2 szoba
52 m2
Eladó téglalakás
Eladó téglalakás

Szeged

80.9 M Ft
3 szoba
64 m2
Eladó téglalakás
Eladó téglalakás

Szeged

84.9 M Ft
3 szoba
82 m2
Eladó téglalakás
Eladó téglalakás

Szeged, Belváros, Bakay Nándor utca

229.9 M Ft
2 + 2 szoba
196 m2
Eladó téglalakás
Eladó téglalakás

Hódmezővásárhely, Belváros, Andrássy utca

10.5 M Ft
380 m2
Eladó téglalakás
Eladó téglalakás

Szeged

70.9 M Ft
3 szoba
70 m2
Eladó téglalakás
Eladó téglalakás

Szeged

52.9 M Ft
3 szoba
48 m2
Eladó téglalakás
Eladó téglalakás

Kistelek, Kossuth utca

58 M Ft
3 szoba
115 m2
Eladó téglalakás
Eladó téglalakás

Szeged

39.9 M Ft
2 szoba
32 m2
Eladó téglalakás
Eladó téglalakás

Szeged

79.9 M Ft
2 szoba
63 m2
Eladó téglalakás
Eladó téglalakás

Szeged

74.9 M Ft
3 szoba
57 m2
Eladó téglalakás
Eladó téglalakás

Szeged

149 M Ft
4 + 1 szoba
132 m2
Eladó téglalakás
Eladó téglalakás

Szeged

70.9 M Ft
3 szoba
70 m2
Eladó téglalakás
Eladó téglalakás

Szeged

109.9 M Ft
3 szoba
91 m2
Eladó téglalakás
Eladó téglalakás

Szeged

109.9 M Ft
3 szoba
91 m2
Eladó téglalakás
Eladó téglalakás

Deszk

44.9 M Ft
2 szoba
66 m2
Eladó téglalakás
Eladó téglalakás

Szeged

79.9 M Ft
3 szoba
71 m2
Eladó téglalakás
Eladó téglalakás

Szeged

73.9 M Ft
3 szoba
66 m2

Falusi CSOK ingatlanok

Eladó családi ház
Eladó családi ház

Nagyhegyes

47.9 M Ft
2 szoba
72 m2
Eladó családi ház
Eladó családi ház

Újszilvás

14.9 M Ft
2 szoba
50 m2
Eladó családi ház
Eladó családi ház

Pécsely

399 M Ft
6 szoba
250 m2
Eladó családi ház
Eladó családi ház

Újszilvás

34.9 M Ft
3 szoba
66 m2
Eladó családi ház
Eladó családi ház

Perkáta

62.4 M Ft
5 szoba
120 m2
Eladó családi ház
Eladó családi ház

Rédics

49.9 M Ft
3 szoba
107 m2
Eladó téglalakás
Eladó téglalakás

Hegyeshalom

35 M Ft
43 m2
Eladó családi ház
Eladó családi ház

Szilvágy

49.99 M Ft
3 szoba
90 m2