Eladó téglalakás
Siófok, 2. emelet

+ 17 kép 1/20
137 700 000 Ft137.7 M Ft 2 374 138 Ft/m2
3 szoba
58 m2
2. emelet
építés éve:2026

Részletes adatok

Fűtés: Egyéb
Közmű: Villany, Csatorna
Energetikai besorolás: Nem adta meg a hirdető

Az OTP Bank lakáshitel ajánlataFizetett hirdetés

+36 70 465
Horváthné Virág Tímea
Otthon Centrum Siófok

Érdekel az OTP Bank kedvezményes lakáshitel ajánlata? *

* A kérdésre „Igen” válasz bejelölése esetén, az „Üzenet küldése” gombra kattintva kijelentem, hogy az OTP Bank Nyrt. Adatkezelési tájékoztatójának tartalmát megismertem és tudomásul vettem.

Eladó téglalakás leírása

Eladó Siófok Ezüstpartján közvetlenül a vízparton épült exkluzív társasházban, balatoni PANORÁMÁS, második emeleti LAKÁS 58nm +terasz 46 nm.

Az újonnan épült, luxus kategóriás társasház villa jellegű épület, amely közvetlenül a vízparton, az Ezüstpart legszebb partszakaszán épült, kis lakóközösség számára.
Az ingatlan 3 szintes, liftes téglaépület.

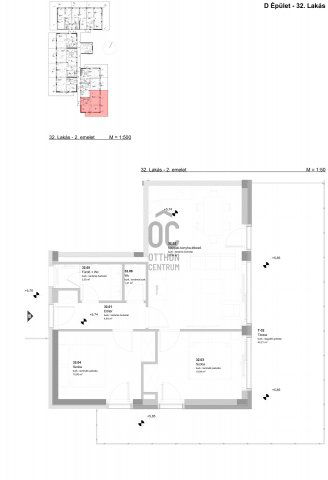
lakás elosztás:
- előtér
- külön wc
- fürdőszoba
- 2 db szoba
- nappali + étkező + konyha
- terasz

Műszaki jellemzők:
-3 rétegű argongázzal kitöltött műanyag nyílászárók , központi LG Multi V-5 hőszivattyús rendszerével kiépített hűtés-fűtés, 12 cm vastag külső hőszigetelő rendszere nemcsak szép, de kivételesen energia-hatékony. is.
- az apartmanok hűtése-fűtése a mai kor követelményeinek megfelelően VRF inverteres levegő-levegő hőszivattyús rendszerrel kiépítve
- fokozott hangszigetésű elválasztó falak
- a homlokzaton mészkőburkolat és színes műgyanta kötésű színezővakolat
- a teraszkorlátok rozsdamentes-szálcsiszolt oszlopok és kapaszkodók, ragasztott biztonsági üvegtáblákkal
- a szintek megközelítését a földszintről és a parkolókból 8 személyes lift biztosítja
- a folyosók, teraszok burkolata porcelán vagy gránitl

A beruházó nagy tapasztalatokkal rendelkező, megbízható, referencia épületek, lakások hosszú sorával rendelkezik.

Minden beruházását magas minőség, kiváló anyagok és kivitelezés jellemzi.

Ne hagyja ki ezt a kivételes lehetőséget, nem sok ilyen színvonalú projektet, lakást talál a vízpart mellett.

Nyaralás?
Befektetés?
Hívjon bizalommal!
Projekt bemutatása

Balaton kedvelőinek kínáljuk eladásra.

Siófok Ezüstparton vízparti, 4 szintes , 3 szobás, nagy teraszos " VILLAPARK" luxusapartmanjait, örök panorámával is.
7284 m2 nagyságú területen, 50% zöldterület és saját parkolók biztosítása mellett, már átadásra került 2 tömb.

Most indult a következő ütem D és utána a C épület kialakítása.
Most foglalja le itt nyaralóját mert gyorsan fogynak , hiszen az építtető megbízható , nagy tapasztalatú beruházó.

Gondos, alapos tervezői munka, nagy tapasztalat biztosítja, hogy a lakások ,hozzá kapcsolódó nagy teraszok kivételes választást jelenthessenek új tulajdonosaiknak.
A liftes téglaépület 3 rétegű argongázzal kitöltött műanyag nyílászárói, központi LG Multi V-5 hőszivattyús rendszerével kiépített hűtése-fűtése, 12 cm vastag külső hőszigetelő rendszere kivételesen energia-hatékony.
A beruházó nagy tapasztalatokkal rendelkező, megbízható, referencia épületek, lakások hosszú sorával rendelkezik.

Minden beruházását magas minőség, kiváló anyagok és kivitelezés jellemzi.

Ne hagyja ki ezt a kivételes lehetőséget, nem sok ilyen színvonalú projektet, lakást talál a vízpart mellett.

Cégek figyelem 27% áfa terheli az ingatlanokat. Lizing lehetőségben segíteni tudunk.

D épület átadása 2026 ban a c épület átadása 2027 ben várható.

Nyaralás?
Befektetés?
Hívjon bizalommal!

Hirdetés feltöltve: 2025. 10. 21.

3 szobás téglalakások ára Siófokon

Ebből az összehasonlításból megtudhatod, hogyan viszonyul a lakás ára a környékbeli téglalakások átlagos árához. Ez nem azt jelenti, hogy ennyivel olcsóbb vagy drágább, mint amennyit a lakás ér, hanem hogy ennyivel tér el a környékbeli átlagtól.

Ennek a m² ára
Siófok m² ár
2374 e Ft
1657 e Ft -43%
Ennek az ára
Siófok átlagár
137.7 M Ft m Ft
123 m Ft -12%

Az ingatlan elhelyezkedése

Cím: Siófok, 2. emelet

Eladó téglalakások a környékről

Eladó téglalakás
Eladó téglalakás

Siófok

119 M Ft
3 szoba
64 m2
Eladó téglalakás
Eladó téglalakás

Balatonfenyves

109 M Ft
2 szoba
45 m2
Eladó téglalakás
Eladó téglalakás

Siófok, Ezustparti utca

76.4 M Ft
3 szoba
58 m2
Eladó téglalakás
Eladó téglalakás

Balatonfenyves

127.65 M Ft
2 szoba
51 m2
Eladó téglalakás
Eladó téglalakás

Siófok

122 M Ft
3 szoba
65 m2
Eladó téglalakás
Eladó téglalakás

Siófok

106.5 M Ft
2 + 1 szoba
65 m2
Eladó téglalakás
Eladó téglalakás

Balatonfenyves

149 M Ft
2 szoba
59 m2
Eladó téglalakás
Eladó téglalakás

Siófok

117.3 M Ft
3 szoba
62 m2
Eladó téglalakás
Eladó téglalakás

Siófok

139.4 M Ft
3 szoba
62 m2
Eladó téglalakás
Eladó téglalakás

Siófok

117.3 M Ft
3 szoba
62 m2
Eladó téglalakás
Eladó téglalakás

Balatonfenyves

169.5 M Ft
4 szoba
90 m2
Eladó téglalakás
Eladó téglalakás

Balatonszemes, Ady E. utca 6

132.9 M Ft
3 szoba
62 m2
Eladó téglalakás
Eladó téglalakás

Siófok, Ezustparti utca

84.9 M Ft
3 szoba
58 m2
Eladó téglalakás
Eladó téglalakás

Siófok

140.25 M Ft
3 szoba
64 m2
Eladó téglalakás
Eladó téglalakás

Siófok

117.3 M Ft
3 szoba
61 m2
Eladó téglalakás
Eladó téglalakás

Balatonfenyves

218.75 M Ft
2 szoba
66 m2
Eladó téglalakás
Eladó téglalakás

Siófok

54.99 M Ft
1 szoba
41 m2
Eladó téglalakás
Eladó téglalakás

Siófok, Ezustparti utca

86.9 M Ft
3 szoba
60 m2
Eladó téglalakás
Eladó téglalakás

Balatonfenyves

129.5 M Ft
3 szoba
67 m2
Eladó téglalakás
Eladó téglalakás

Siófok

83.5 M Ft
3 szoba
66 m2
Eladó téglalakás
Eladó téglalakás

Balatonfenyves

563.75 M Ft
4 szoba
114 m2
Eladó téglalakás
Eladó téglalakás

Siófok, Ezustparti utca

86.9 M Ft
3 szoba
60 m2
Eladó téglalakás
Eladó téglalakás

Siófok

232.9 M Ft
4 szoba
125 m2
Eladó téglalakás
Eladó téglalakás

Siófok

54.49 M Ft
2 szoba
41 m2

Falusi CSOK ingatlanok

Eladó családi ház
Eladó családi ház

Kaposmérő

93.5 M Ft
3 szoba
140 m2
Eladó családi ház
Eladó családi ház

Szenna

30.5 M Ft
3 szoba
82 m2
Eladó családi ház
Eladó családi ház

Hernádnémeti

19.9 M Ft
2 szoba
62 m2
Eladó családi ház
Eladó családi ház

Újszilvás

9.5 M Ft
3 szoba
57 m2
Eladó családi ház
Eladó családi ház

Liszó

35 M Ft
2 szoba
87 m2
Eladó téglalakás
Eladó téglalakás

Felsőszentiván, Jókai Mór u 9 fszt 2

17.56 M Ft
1 + 1 szoba
90 m2
Eladó családi ház
Eladó családi ház

Nagyberény

22.9 M Ft
2 szoba
85 m2
Eladó családi ház
Eladó családi ház

Szil

25 M Ft
2 szoba
90 m2