Eladó téglalakás
Siófok, 1. emelet

52 900 000 Ft52.9 M Ft 1 259 524 Ft/m2
2 szoba
42 m2
1. emelet
építés éve:2025

Részletes adatok

Telekméret: 42 m2
Fűtés: Egyéb
Közmű: Víz, Villany, Csatorna
Energetikai besorolás: Nem adta meg a hirdető

Az OTP Bank lakáshitel ajánlataFizetett hirdetés

+36 20 417
Szegedy Péter
referens

Érdekel az OTP Bank kedvezményes lakáshitel ajánlata? *

* A kérdésre „Igen” válasz bejelölése esetén, az „Üzenet küldése” gombra kattintva kijelentem, hogy az OTP Bank Nyrt. Adatkezelési tájékoztatójának tartalmát megismertem és tudomásul vettem.

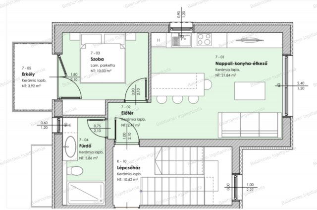
Eladó téglalakás leírása

Siófok egyik legnívósabb zöldövezeti városrészében, a Foki-hegyen, új építésű, 1+1 szobás erkélyes lakás eladó.

- 42 m2-es (amerikai konyhás nappali + hálószoba + zuhanyzós fürdőszoba wc-vel + erkély)

- 1.emelet, nyugati tájolás

- energiatakarékos hőszivattyús hűtés-fűtés

- fan-coil, riasztó és elektromos redőny előkészítés

- választható burkolatok

- teremgarázs beálló és tároló opcionálisan vásárolható

Várható átadás: 2026 II. negyedév

Ha egy csendes, nyugodt, biztonságos helyen szeretne élni, vagy nyaralni, ez ideális választás!

Befektetésnek is kiváló, jól kiadható.

Bevásárlási lehetőség, iskola, posta, buszmegálló, kórház pár percnyire megtalálhatóak. A Balaton part és szabadstrand mindössze 10 percnyi sétára, az M7-es autópálya felhajtó mindössze 5 percnyire található autóval.

Hirdetés feltöltve: 2025. 10. 03.

2 szobás téglalakások ára Siófokon

Ebből az összehasonlításból megtudhatod, hogyan viszonyul a lakás ára a környékbeli téglalakások átlagos árához. Ez nem azt jelenti, hogy ennyivel olcsóbb vagy drágább, mint amennyit a lakás ér, hanem hogy ennyivel tér el a környékbeli átlagtól.

Ennek a m² ára
Siófok m² ár
1260 e Ft
1619 e Ft 22%
Ennek az ára
Siófok átlagár
52.9 M Ft m Ft
86.9 m Ft 39%

Az ingatlan elhelyezkedése

Cím: Siófok, 1. emelet

Eladó téglalakások a környékről

Eladó téglalakás
Eladó téglalakás

Siófok

84.695 M Ft
2 szoba
51 m2
Eladó téglalakás
Eladó téglalakás

Balatonföldvár

125.4 M Ft
4 szoba
114 m2
Eladó téglalakás
Eladó téglalakás

Siófok

83.5 M Ft
3 szoba
66 m2
Eladó téglalakás
Eladó téglalakás

Siófok

186.11 M Ft
2 + 1 szoba
104 m2
Eladó téglalakás
Eladó téglalakás

Siófok

130.769 M Ft
1 + 1 szoba
72 m2
Eladó téglalakás
Eladó téglalakás

Siófok

97.517 M Ft
1 + 2 szoba
69 m2
Eladó téglalakás
Eladó téglalakás

Balatonfenyves

78.975 M Ft
1 szoba
35 m2
Eladó téglalakás
Eladó téglalakás

Siófok, Ezustparti utca

84.9 M Ft
3 szoba
58 m2
Eladó téglalakás
Eladó téglalakás

Siófok, Ezustparti utca

86.9 M Ft
3 szoba
60 m2
Eladó téglalakás
Eladó téglalakás

Siófok, Kálmán I. sétány

81 M Ft
2 szoba
54 m2
Eladó téglalakás
Eladó téglalakás

Siófok

54.99 M Ft
1 szoba
41 m2
Eladó téglalakás
Eladó téglalakás

Balatonfenyves

191.4 M Ft
3 szoba
66 m2
Eladó téglalakás
Eladó téglalakás

Balatonfenyves

78 M Ft
1 szoba
35 m2
Eladó téglalakás
Eladó téglalakás

Balatonfenyves

938.75 M Ft
3 szoba
145 m2
Eladó téglalakás
Eladó téglalakás

Siófok

84.695 M Ft
2 szoba
51 m2
Eladó téglalakás
Eladó téglalakás

Siófok, Ezustparti utca

76.4 M Ft
3 szoba
58 m2
Eladó téglalakás
Eladó téglalakás

Balatonfenyves

139.5 M Ft
3 szoba
67 m2
Eladó téglalakás
Eladó téglalakás

Siófok

122 M Ft
3 szoba
65 m2
Eladó téglalakás
Eladó téglalakás

Balatonfenyves

127.65 M Ft
2 szoba
51 m2
Eladó téglalakás
Eladó téglalakás

Balatonfenyves

115.625 M Ft
2 szoba
51 m2
Eladó téglalakás
Eladó téglalakás

Siófok

121.55 M Ft
3 szoba
64 m2
Eladó téglalakás
Eladó téglalakás

Siófok

54.99 M Ft
1 szoba
41 m2
Eladó téglalakás
Eladó téglalakás

Siófok

97.517 M Ft
1 + 2 szoba
69 m2
Eladó téglalakás
Eladó téglalakás

Siófok, KÁLMÁN I. SÉTÁNY

81 M Ft
2 szoba
54 m2

Falusi CSOK ingatlanok

Eladó téglalakás
Eladó téglalakás

Tokaj

192.5 M Ft
3 szoba
90 m2
Eladó családi ház
Eladó családi ház

Törtel

39 M Ft
1 + 1 szoba
118 m2
Eladó ikerház
Eladó ikerház

Győrság

54.95 M Ft
3 szoba
72 m2
Eladó családi ház
Eladó családi ház

Fonyód, Liszt Ferenc utca

69 M Ft
4 szoba
95 m2
Eladó családi ház
Eladó családi ház

Hajós

63 M Ft
3 szoba
210 m2
Eladó családi ház
Eladó családi ház

Tóalmás

22.9 M Ft
3 szoba
65 m2
Eladó családi ház
Eladó családi ház

Tass

33.9 M Ft
3 szoba
66 m2
Eladó családi ház
Eladó családi ház

Badacsonytomaj

199.8 M Ft
3 szoba
166 m2