Astora Art House

Eladó téglalakás
Sárvár

+ 3 kép 1/6
53 900 000 Ft53.9 M Ft 1 122 917 Ft/m2
2 szoba
48 m2
építés éve:2027

Részletes adatok

Telekméret: 720 m2
Fűtés: Egyéb
Energetikai besorolás: Nem adta meg a hirdető

Az OTP Bank lakáshitel ajánlataFizetett hirdetés

+36 30 849
Sámson Alexandra
InterNest Realty Partners

Érdekel az OTP Bank kedvezményes lakáshitel ajánlata? *

* A kérdésre „Igen” válasz bejelölése esetén, az „Üzenet küldése” gombra kattintva kijelentem, hogy az OTP Bank Nyrt. Adatkezelési tájékoztatójának tartalmát megismertem és tudomásul vettem.

Eladó téglalakás leírása

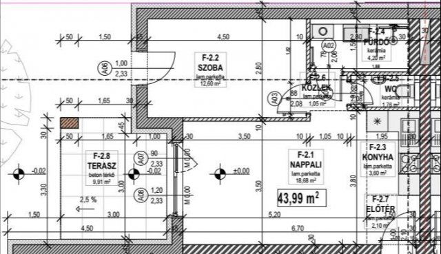
Megvételre kínálunk Sárváron a Nádasdy-vár közelében épülő 10 lakásos társasházban egy nettó 44 nm alapterületű földszinti lakást 10 nm-es terasszal.

A lakást befektetők figyelmébe is ajánljuk: hosszú, illetve rövidtávú kiadásában teljes körű támogatást nyújtunk.

Rövid műszaki adatok:
Falazata Porotherm téglából, tetőszerkezete fa, ácsolt kivitelben, tetőhéjalása hornyolt tetőcseréppel történik.
Nyílászárók: Műanyag tokszerkezet, 3 rétegű hőszigetelő üveggel ellátva
Hőellátás; fűtése: Kondenzációs gázkazán
Melegvíz ellátás: gázüzemű vízmelegítő
Klíma: lakásonként 1 db beépített hűtő-fűtő klíma kerül elhelyezésre
Elrendezés: 1 szoba + amerikai konyhás nappali, fürdő és WC külön helyiségben

A lakásokhoz parkolóhely kötelezően vásárolandó, ennek ára 2,2 millió forint, továbbá opcionálisan vásárolható kertkapcsolat, amelynek az ára 3 millió forint.

Várható átadás: 2027. II. negyedév

Egyéb információkért, műszaki tartalomért hívjon bizalommal.
A társasházban további elérhető ingatlanokról kérjen bővebb tájékoztatást kollégánktól.

Bankfüggetlen pénzügyi szakértő kollégánk minden ügyfelünk részére díjmentes hitel- és támogatásügyintézéssel is rendelkezésre áll.

Hirdetés feltöltve: 2025. 11. 05.

2 szobás téglalakások ára Sárváron

Ebből az összehasonlításból megtudhatod, hogyan viszonyul a lakás ára a környékbeli téglalakások átlagos árához. Ez nem azt jelenti, hogy ennyivel olcsóbb vagy drágább, mint amennyit a lakás ér, hanem hogy ennyivel tér el a környékbeli átlagtól.

Ennek a m² ára
Sárvár m² ár
1123 e Ft
918 e Ft -22%
Ennek az ára
Sárvár átlagár
53.9 M Ft m Ft
44.5 m Ft -21%

Az ingatlan elhelyezkedése

Cím: Sárvár

Eladó téglalakások a környékről

Eladó téglalakás
Eladó téglalakás

Sárvár

31.9 M Ft
1 szoba
31 m2
Eladó téglalakás
Eladó téglalakás

Sárvár

12.5 M Ft
1 szoba
50 m2
Eladó téglalakás
Eladó téglalakás

Sárvár

47.5 M Ft
1 + 1 szoba
38 m2
Eladó téglalakás
Eladó téglalakás

Szombathely

26 M Ft
4 szoba
159 m2
Eladó téglalakás
Eladó téglalakás

Sárvár

35.305 M Ft
1 szoba
30 m2
Eladó téglalakás
Eladó téglalakás

Sárvár

42.9 M Ft
2 szoba
45 m2
Eladó téglalakás
Eladó téglalakás

Sárvár

65.9 M Ft
2 szoba
54 m2
Eladó téglalakás
Eladó téglalakás

Szombathely

69 M Ft
4 szoba
112 m2
Eladó téglalakás
Eladó téglalakás

Sárvár

25.99 M Ft
2 szoba
110 m2
Eladó téglalakás
Eladó téglalakás

Sárvár

35.9 M Ft
2 szoba
47 m2
Eladó téglalakás
Eladó téglalakás

Sárvár

53.36 M Ft
1 szoba
46 m2
Eladó téglalakás
Eladó téglalakás

Sárvár

24.9 M Ft
2 szoba
96 m2
Eladó téglalakás
Eladó téglalakás

Sárvár

55.545 M Ft
1 szoba
48 m2
Eladó téglalakás
Eladó téglalakás

Celldömölk

32.9 M Ft
4 szoba
155 m2
Eladó téglalakás
Eladó téglalakás

Répcelak, Petőfi Sándor utca

46.2 M Ft
4 szoba
65 m2
Eladó téglalakás
Eladó téglalakás

Sárvár

52.3 M Ft
2 szoba
41 m2
Eladó téglalakás
Eladó téglalakás

Sárvár

56.041 M Ft
3 szoba
53 m2
Eladó téglalakás
Eladó téglalakás

Sárvár

48.4 M Ft
1 + 1 szoba
40 m2
Eladó téglalakás
Eladó téglalakás

Szombathely

69 M Ft
4 szoba
136 m2
Eladó téglalakás
Eladó téglalakás

Sárvár

25.99 M Ft
2 szoba
92 m2
Eladó téglalakás
Eladó téglalakás

Répcelak, Petőfi Sándor utca

37.99 M Ft
3 szoba
78 m2
Eladó téglalakás
Eladó téglalakás

Sárvár

38 M Ft
5 szoba
116 m2
Eladó téglalakás
Eladó téglalakás

Répcelak, Petőfi Sándor utca

35.7 M Ft
2 szoba
54 m2
Eladó téglalakás
Eladó téglalakás

Sárvár

45.6 M Ft
1 + 1 szoba
38 m2

Falusi CSOK ingatlanok

Eladó családi ház
Eladó családi ház

Gyékényes

35.9 M Ft
5 szoba
205 m2
Eladó családi ház
Eladó családi ház

Ádánd

55.5 M Ft
6 szoba
180 m2
Eladó családi ház
Eladó családi ház

Berzence

69.9 M Ft
6 szoba
257 m2
Eladó családi ház
Eladó családi ház

Orgovány, Mátyás király utca

16 M Ft
2 szoba
60 m2
Eladó családi ház
Eladó családi ház

Vaskút

19 M Ft
3 szoba
225 m2
Eladó családi ház
Eladó családi ház

Tápióság

12.9 M Ft
1 szoba
50 m2
Eladó családi ház
Eladó családi ház

Jakabszállás

69.99 M Ft
1 + 4 szoba
91 m2
Eladó családi ház
Eladó családi ház

Recsk

21 M Ft
4 szoba
220 m2