Aerogate Homes

Eladó téglalakás
Pomáz

+ 2 kép 1/5
122 900 000 Ft122.9 M Ft 1 068 696 Ft/m2
5 szoba
115 m2
építés éve:2025

Részletes adatok

Telekméret: 340 m2
Fűtés: Egyéb
Parkolás: Kocsibeálló
Közmű: Víz, Villany, Csatorna
Energetikai besorolás: Nem adta meg a hirdető

Az OTP Bank lakáshitel ajánlataFizetett hirdetés

+36 70 882
Kiss Krisztina
Körültekintő Ingatlan

Érdekel az OTP Bank kedvezményes lakáshitel ajánlata? *

* A kérdésre „Igen” válasz bejelölése esetén, az „Üzenet küldése” gombra kattintva kijelentem, hogy az OTP Bank Nyrt. Adatkezelési tájékoztatójának tartalmát megismertem és tudomásul vettem.

Eladó téglalakás leírása

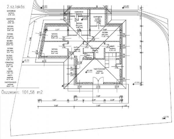
Pomázon a Meselia déli oldalában, csendes környezetben 340 nm-es saját, kizárólagos használatú kerttel rendelkező, egy szintes, nappali + 4 hálószobás ikerház-fél eladó.

Az építéssel kapcsolatos paraméterek:
- Tervezett átadás: szerződés kötéstől számított egy éven belül
- hőszivattyús fűtés, padlófűtéssel, radiátorokkal
- magas minőségű hőszigetelés, ZÖLD hitelnek megfelelő energetikai besorolás
- több rétegű, műanyag nyílászárók
- választható belső burkolatok, szaniterek
- riasztó rendszer előkészítés
- 30 nm-es, az amerikai konyhás nappalihoz kapcsolódó terasz
- durva tereprendezés
- kulcsrakész átadás
Finanszírozási lehetőség:
- Zöld hitel kompatibilitás
- CSOK (10+15M) hitel, illeték mentesség, Áfa visszatérítés igényelhető.
- Az alaprajz igény szerint még módosítható.

A beruházó a környék elismert építési vállalkozója, rengeteg referenciamunkával rendelkezik.

Hirdetés feltöltve: 2025. 11. 25. Utoljára módosítva: 2025. 11. 25.

Az ingatlan elhelyezkedése

Cím: Pomáz

Eladó ingatlanok a környékről

Eladó téglalakás
Eladó téglalakás

Göd

32.5 M Ft
2 szoba
44 m2
Eladó téglalakás
Eladó téglalakás

Pomáz

86 M Ft
4 szoba
130 m2
Eladó téglalakás
Eladó téglalakás

Göd

27.9 M Ft
2 szoba
43 m2
Eladó téglalakás
Eladó téglalakás

Göd

46.5 M Ft
3 szoba
69 m2
Eladó téglalakás
Eladó téglalakás

Pomáz

54 M Ft
4 + 1 szoba
222 m2
Eladó téglalakás
Eladó téglalakás

Vác, Václiget, Paduc utca

64 M Ft
2 szoba
41 m2
Eladó téglalakás
Eladó téglalakás

Vác, Václiget, Paduc utca

65.5 M Ft
2 szoba
42 m2
Eladó téglalakás
Eladó téglalakás

Pomáz

59.9 M Ft
3 szoba
63 m2
Eladó téglalakás
Eladó téglalakás

Vác, Václiget, Paduc utca

48.6 M Ft
1 szoba
31 m2
Eladó téglalakás
Eladó téglalakás

Göd, Oázis utca

27.9 M Ft
2 szoba
44 m2
Eladó téglalakás
Eladó téglalakás

Göd

28.9 M Ft
2 szoba
44 m2
Eladó családi ház
Eladó családi ház

Nagybörzsöny

36 M Ft
2 + 1 szoba
75 m2
Eladó téglalakás
Eladó téglalakás

Göd

28.9 M Ft
2 szoba
46 m2
Eladó téglalakás
Eladó téglalakás

Göd

28.9 M Ft
2 szoba
46 m2
Eladó téglalakás
Eladó téglalakás

Göd

32.5 M Ft
2 szoba
44 m2
Eladó téglalakás
Eladó téglalakás

Göd

42.5 M Ft
3 szoba
65 m2
Eladó téglalakás
Eladó téglalakás

Pomáz, Ősz utca

54 M Ft
4 + 1 szoba
222 m2
Eladó téglalakás
Eladó téglalakás

Pomáz

59 M Ft
2 szoba
44 m2
Eladó téglalakás
Eladó téglalakás

Vác, Václiget, Paduc utca

99.9 M Ft
4 szoba
78 m2
Eladó téglalakás
Eladó téglalakás

Vác, Václiget, Paduc utca

99.9 M Ft
4 szoba
77 m2
Eladó téglalakás
Eladó téglalakás

Göd

28.9 M Ft
2 szoba
46 m2
Eladó téglalakás
Eladó téglalakás

Pomáz

70.9 M Ft
3 szoba
55 m2
Eladó téglalakás
Eladó téglalakás

Pomáz

89.9 M Ft
4 szoba
64 m2
Eladó téglalakás
Eladó téglalakás

Pomáz

69.9 M Ft
2 + 1 szoba
73 m2

Falusi CSOK ingatlanok

Eladó családi ház
Eladó családi ház

Ceglédbercel

95 M Ft
6 szoba
220 m2
Eladó családi ház
Eladó családi ház

Tokod

89 M Ft
6 szoba
187 m2
Eladó családi ház
Eladó családi ház

Döröske

104.721 M Ft
3 szoba
114 m2
Eladó családi ház
Eladó családi ház

Nagyberény

23.9 M Ft
3 szoba
69 m2
Eladó családi ház
Eladó családi ház

Ságvár

46.9 M Ft
2 szoba
70 m2
Eladó családi ház
Eladó családi ház

Vaskút

64 M Ft
5 szoba
180 m2
Eladó családi ház
Eladó családi ház

Badacsonytomaj

199.8 M Ft
3 szoba
166 m2
Eladó családi ház
Eladó családi ház

Szarvaskend

26.9 M Ft
2 szoba
83 m2