Astora Márvány8

Eladó téglalakás
Pilisvörösvár, földszint

+ 2 kép 1/5
130 862 000 Ft130.862 M Ft 1 557 881 Ft/m2
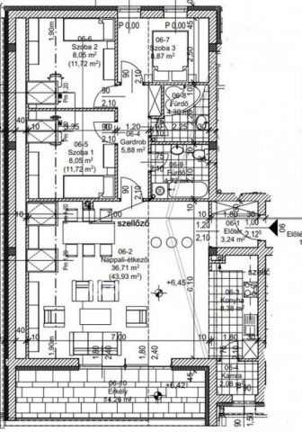
3 szoba
84 m²
földszint
építés éve:2024

Részletes adatok

Fűtés: Egyéb
Emelet: földszint
Energetikai besorolás: Nem adta meg a hirdető

Az OTP Bank lakáshitel ajánlataFizetett hirdetés

+36 30 400
Papp-Horváth Katalin
Otp Ingatlanpont Falk Miksa

Érdekel az OTP Bank kedvezményes lakáshitel ajánlata? *

* A kérdésre „Igen” válasz bejelölése esetén, az „Üzenet küldése” gombra kattintva kijelentem, hogy az OTP Bank Nyrt. Adatkezelési tájékoztatójának tartalmát megismertem és tudomásul vettem.

Eladó téglalakás leírása

Új építésű tégla lakások Pilisvörösváron eladók!

Eladó modern lakások Pilisvörösvár központjához és a vasútállomáshoz közel, 2025 őszi átadással.

Ezek az energiatakarékos otthonok nemcsak a kényelmet, de a kiváló elhelyezkedést is biztosítják, hiszen Budapestre vonattal 20 perc alatt be lehet jutni, így ideális választás azoknak, akik a nyugodt környezetet és a jó közlekedési lehetőségeket egyaránt értékelik.

Pilisvörösvár előnyei: A város a Pilis hegység lábánál található, amely gyönyörű túraútvonalakkal és szabadidős programokkal várja a természet szerelmeseit. Könnyű és gyors vonatközlekedés Budapest irányába, így ideális azoknak, akik a fővárosban dolgoznak, de zöldövezetben szeretnének élni.

Lakások jellemzői: Fűtés: Hőszivattyús padlófűtés, riasztó előkészítéssel. Szigetelés: 15 cm-es hőszigetelés az energiatakarékosság jegyében.

Opciók: Légkondicionáló és redőny külön megrendelhető, rugalmas burkolat választás addig, amíg azok nem kerültek beépítésre.

A lakások jelenleg szerkezetkész állapotban vannak, azonban a meghirdetett árak a teljesen kulcsrakész állapotra vonatkoznak.

Elérhető lakásméretek,
40,5 nm + 9,5 nm erkély,
40,3 nm + 9,5 nm erkély,
53 nm,
62,3 nm,
65,9,
62,3 nm,
84,4 nm + 14,3 nm erkély,
55,4 nm,
50,6 nm.

Parkolás az utcán ingyenesen megoldható.

Élvezze a Pilis nyugalmát és Budapest közelségét egyszerre. Vásároljon egy csodás helyen lévő ingatlant!

Kérjen bővebb tájékoztatást és tekintse meg az elérhető lakásokat!

Referencia szám:M287802

Referencia szám: M287802

Hirdetés feltöltve: 2026. 02. 25. Utoljára módosítva: 2026. 04. 03.

Az ingatlan elhelyezkedése

Cím: Pilisvörösvár, földszint

Eladó ingatlanok a környékről

Göd
Eladó téglalakás

Göd

27.9 M Ft
2 szoba
43 m²
Pilisvörösvár
Eladó téglalakás

Pilisvörösvár

78.05 M Ft
2 szoba
41 m²
Göd
Eladó téglalakás

Göd

46.5 M Ft
3 szoba
69 m²
Gyál
Eladó családi ház

Gyál

54.9 M Ft
4 + 1 szoba
84 m²
Pilisvörösvár
Eladó téglalakás

Pilisvörösvár

74 M Ft
3 szoba
61 m²
Monor
Eladó ikerház

Monor

107 M Ft
5 szoba
107 m²
Pilisvörösvár
Eladó téglalakás

Pilisvörösvár

130.862 M Ft
3 szoba
84 m²
Pilisvörösvár
Eladó téglalakás

Pilisvörösvár

95 M Ft
2 szoba
51 m²
Pilisvörösvár
Eladó téglalakás

Pilisvörösvár

104.2 M Ft
4 szoba
75 m²
Göd
Eladó téglalakás

Göd

27.9 M Ft
2 szoba
43 m²
Göd, Oázis utca
Eladó téglalakás

Göd

27.9 M Ft
2 szoba
44 m²
Göd
Eladó téglalakás

Göd

28.9 M Ft
2 szoba
46 m²
Göd
Eladó téglalakás

Göd

27.9 M Ft
2 szoba
43 m²
Göd
Eladó téglalakás

Göd

44.5 M Ft
3 szoba
70 m²
Pilisvörösvár
Eladó téglalakás

Pilisvörösvár

130.862 M Ft
3 szoba
90 m²
Göd
Eladó téglalakás

Göd

44.9 M Ft
3 szoba
58 m²
Pilisvörösvár
Eladó téglalakás

Pilisvörösvár

104.2 M Ft
4 szoba
74 m²
Göd
Eladó téglalakás

Göd

28.9 M Ft
2 szoba
44 m²
Pilisvörösvár
Eladó téglalakás

Pilisvörösvár

74 M Ft
2 + 1 szoba
61 m²
Pilisvörösvár
Eladó téglalakás

Pilisvörösvár

78 M Ft
2 szoba
46 m²
Göd
Eladó téglalakás

Göd

42.9 M Ft
3 szoba
61 m²
Göd
Eladó téglalakás

Göd

27.9 M Ft
2 szoba
44 m²
Pilisvörösvár
Eladó téglalakás

Pilisvörösvár

104.2 M Ft
4 szoba
65 m²
Gyál
Eladó családi ház

Gyál

129.99 M Ft
6 szoba
195 m²

Falusi CSOK ingatlanok

Magyarszék
Eladó családi ház

Magyarszék

48.5 M Ft
3 + 1 szoba
86 m²
Tápióság
Eladó családi ház

Tápióság

59.9 M Ft
4 szoba
99 m²
Csokonyavisonta
Eladó családi ház

Csokonyavisonta

16.6 M Ft
2 szoba
60 m²
Gyöngyössolymos
Eladó családi ház

Gyöngyössolymos

57.99 M Ft
4 szoba
160 m²
Bag
Eladó családi ház

Bag

16.9 M Ft
6 szoba
160 m²
Mezőkeresztes
Eladó ikerház

Mezőkeresztes

13.5 M Ft
2 + 1 szoba
70 m²
Nagyréde
Eladó családi ház

Nagyréde

69.5 M Ft
4 szoba
110 m²
Szentkirály
Eladó ikerház

Szentkirály

103 M Ft
4 szoba
115 m²