River Life

Eladó téglalakás
Pilisvörösvár, földszint

+ 9 kép 1/12
95 000 000 Ft95 M Ft 1 862 745 Ft/m2
2 szoba
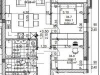
51 m²
földszint
építés éve:2025

Részletes adatok

Fűtés: Egyéb
Emelet: földszint
Energetikai besorolás: Nem adta meg a hirdető

Az OTP Bank lakáshitel ajánlataFizetett hirdetés

+36 70 329
Hegedűs Tibor
Otp Ingatlanpont Falk Miksa

Érdekel az OTP Bank kedvezményes lakáshitel ajánlata? *

* A kérdésre „Igen” válasz bejelölése esetén, az „Üzenet küldése” gombra kattintva kijelentem, hogy az OTP Bank Nyrt. Adatkezelési tájékoztatójának tartalmát megismertem és tudomásul vettem.

Eladó téglalakás leírása

Pilisvörösvár leggyönyörűbb, zöldövezeti, csendes részén 51nm-es, teraszos, földszinti kertkapcsolatos lakás eladó.

Az ingatlan a mai igényeknek megfelelően hőszivattyúval rendelkezik, az amerikai konyhás nappaliban a padlófűtésen kívül fan coil is biztosítja a megfelelő hőmérsékletet, a melegvíz-ellátást pedig bojler szolgáltatja.
A várható beköltözés időpontja 2026 március.
A lakás belső kialakítására burkolatok, belső ajtók tekintetében választhatóak, amelyeket az építtető listáz I. osztályú anyagokból.

Aki szeretne közel lakni a fővároshoz (vonattal 3 megálló a Nyugati pályaudvar), de mellette a nyugalmat kedveli és esetleg a festői kilátást a Budai hegyekre, azoknak tökéletes választás ez az ingatlan.

Ebben a városban található a méltán híres Német Nemzetiségi Általános Iskola, valamint a Friedrich Schiller Gimnázium és Kollégium, ahonnan szívesen veszik fel a tanulókat a bécsi egyetemre (Universität Wien).

CSOK-Hitel és jogi ügyintézés az irodában. Az OTP Csoport teljes körű ügyintézéssel áll az eladók és a vevők rendelkezésére! Cégünk digitális rendszerrel dolgozik már közel 6 éve, így akár online, személyes találkozó nélkül is zökkenőmentesen vásárolhatja meg a kiválasztott ingatlant! A kínálatunkból választott ingatlan finanszírozásához kedvezményes hitel- és lízing konstrukciót, állami támogatásokat, lakás-takarékpénztári megoldásokat kínálunk. Az adásvételi szerződés megkötéséhez igény szerint megbízható ügyvédi közreműködést biztosítunk, és segítséget nyújtunk az adásvételhez kapcsolódó ügyek intézésében is. Bővebb tájékoztatásért hívjon bizalommal akár hétvégén is!
FONTOS: Ha még nem volt ingatlan a nevén, vagy gyermekeinek szeretné megvásárolni ezt a kiváló adottságokkal rendelkező lakást, az új kedvezményes 3%! kamatozású hitelt az OTP Bank hátterével 22 napon belül tudjuk biztosítani!

Referencia szám: M313491

Referencia szám: M313491-ZE

Hirdetés feltöltve: 2025. 09. 26. Utoljára módosítva: 2026. 01. 20.

2 szobás téglalakások ára Pilisvörösváron

Ebből az összehasonlításból megtudhatod, hogyan viszonyul a lakás ára a környékbeli téglalakások átlagos árához. Ez nem azt jelenti, hogy ennyivel olcsóbb vagy drágább, mint amennyit a lakás ér, hanem hogy ennyivel tér el a környékbeli átlagtól.

Ennek a m² ára
Pilisvörösvár m² ár
1863 e Ft
1552 e Ft -20%
Ennek az ára
Pilisvörösvár átlagár
95 M Ft m Ft
100.6 m Ft 6%

Az ingatlan elhelyezkedése

Cím: Pilisvörösvár, földszint

Eladó ingatlanok a környékről

Göd
Eladó téglalakás

Göd

28.9 M Ft
2 szoba
46 m²
Szada
Eladó családi ház

Szada

55 M Ft
4 szoba
68 m²
Pilisvörösvár
Eladó téglalakás

Pilisvörösvár

104.2 M Ft
4 szoba
65 m²
Göd
Eladó téglalakás

Göd

42.5 M Ft
3 szoba
65 m²
Nagytarcsa
Eladó családi ház

Nagytarcsa

148.9 M Ft
5 szoba
155 m²
Nagytarcsa
Eladó családi ház

Nagytarcsa

150 M Ft
2 szoba
43 m²
Pilisvörösvár
Eladó téglalakás

Pilisvörösvár

131.5 M Ft
4 szoba
84 m²
Pilisvörösvár
Eladó téglalakás

Pilisvörösvár

130.862 M Ft
3 szoba
90 m²
Göd
Eladó téglalakás

Göd

28.9 M Ft
2 szoba
46 m²
Göd, Oázis utca
Eladó téglalakás

Göd

27.9 M Ft
2 szoba
44 m²
Pilisvörösvár
Eladó téglalakás

Pilisvörösvár

95 M Ft
2 szoba
51 m²
Pilisvörösvár
Eladó téglalakás

Pilisvörösvár

130.862 M Ft
3 szoba
84 m²
Pilisvörösvár
Eladó téglalakás

Pilisvörösvár

79.5 M Ft
1 + 1 szoba
51 m²
Pilisvörösvár
Eladó téglalakás

Pilisvörösvár

104.2 M Ft
4 szoba
74 m²
Pilisvörösvár
Eladó téglalakás

Pilisvörösvár

74 M Ft
2 + 1 szoba
61 m²
Göd
Eladó téglalakás

Göd

32.9 M Ft
2 szoba
44 m²
Zebegény
Eladó telek

Zebegény

39 M Ft
2029 m²
0 m²
Göd
Eladó téglalakás

Göd

28.9 M Ft
2 szoba
46 m²
Pilisvörösvár
Eladó téglalakás

Pilisvörösvár

129 M Ft
4 szoba
84 m²
Göd
Eladó téglalakás

Göd

27.9 M Ft
2 szoba
43 m²
Göd
Eladó téglalakás

Göd

44.5 M Ft
3 szoba
73 m²
Göd
Eladó téglalakás

Göd

27.9 M Ft
2 szoba
43 m²
Göd
Eladó téglalakás

Göd

29.5 M Ft
2 szoba
44 m²
Göd
Eladó téglalakás

Göd

44.5 M Ft
3 szoba
69 m²

Falusi CSOK ingatlanok

Katafa
Eladó családi ház

Katafa

64.9 M Ft
7 szoba
192 m²
Ádánd
Eladó családi ház

Ádánd

79 M Ft
4 szoba
140 m²
Balatonszemes
Eladó téglalakás

Balatonszemes

123.3 M Ft
2 szoba
70 m²
Balatonfenyves
Eladó családi ház

Balatonfenyves

149 M Ft
8 szoba
270 m²
Nagyharsány
Eladó téglalakás

Nagyharsány

22.5 M Ft
3 szoba
71 m²
Nagyszentjános
Eladó téglalakás

Nagyszentjános

74.9 M Ft
4 szoba
117 m²
Fertőd
Eladó családi ház

Fertőd

47.5 M Ft
3 + 2 szoba
107 m²
Magyarszék
Eladó családi ház

Magyarszék

48.5 M Ft
3 + 1 szoba
86 m²