Aerogate Homes

Eladó téglalakás
Pécs, Sorház

+ 17 kép 1/20
41 500 000 Ft41.5 M Ft 680 328 Ft/m2
1 + 1 szoba
61 m2
Sorház
építés éve:1974

Részletes adatok

Fűtés: Gázkonvektor
Emelet: 3. emelet
Energetikai besorolás: B

Az OTP Bank lakáshitel ajánlataFizetett hirdetés

+36 30 276
Maratné Mészáros Edit
OTPIP - Pécs, Rákóczi út 19.

Érdekel az OTP Bank kedvezményes lakáshitel ajánlata? *

* A kérdésre „Igen” válasz bejelölése esetén, az „Üzenet küldése” gombra kattintva kijelentem, hogy az OTP Bank Nyrt. Adatkezelési tájékoztatójának tartalmát megismertem és tudomásul vettem.

Eladó téglalakás leírása

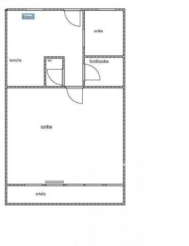
Eladó szigetelt tégla lakás Pécs-Ledinán!
Pécs kedvelt városrészén, Ledinán 61 nm-es, átalakított, 3. emeleti, nagy erkélyes tégla lakás várja új tulajdonosát.
Az átalakítás során az előszoba, konyha és étkező egybenyitásra került.
A lakás elrendezése:
-Egy kisebb hálószóba
-Egy nagy 30 nm-es nappali.
-6 nm-es keleti tájolású erkély.
-Nappali klímás, tölgyfa parkettás ,nagy műanyag ablakokkal rendelkezik ,erkélyajtó tolóajtós kialakítású.
-Felújított fürdőszoba sarokkáddal.
-Különálló WC.
-Acélbetétes biztonsági bejárati ajtó.
-Nyugati-keleti tájolása.
-Gázkonvektor fűtéses, gázbojler biztosítja a meleg vizet.
Otthon Start Hitelprogram
Amennyiben felkeltette érdeklődését az ingatlan, keressen bizalommal. M299292

Referencia szám: M299292-ZE

Hirdetés feltöltve: 2025. 10. 10. Utoljára módosítva: 2026. 01. 14.

2 szobás téglalakások ára Pécsett

Ebből az összehasonlításból megtudhatod, hogyan viszonyul a lakás ára a környékbeli téglalakások átlagos árához. Ez nem azt jelenti, hogy ennyivel olcsóbb vagy drágább, mint amennyit a lakás ér, hanem hogy ennyivel tér el a környékbeli átlagtól.

Ennek a m² ára
Pécs m² ár
680 e Ft
1036 e Ft 34%
Ennek az ára
Pécs átlagár
41.5 M Ft m Ft
56.1 m Ft 26%

Az ingatlan elhelyezkedése

Cím: Pécs, Sorház

Eladó téglalakások a környékről

Eladó téglalakás
Eladó téglalakás

Pécs

81.7 M Ft
4 szoba
86 m2
Eladó téglalakás
Eladó téglalakás

Komló, Zrínyi tér

13.5 M Ft
2 szoba
54 m2
Eladó téglalakás
Eladó téglalakás

Pécs

69.89 M Ft
1 szoba
51 m2
Eladó téglalakás
Eladó téglalakás

Pécs

64.011 M Ft
2 szoba
52 m2
Eladó téglalakás
Eladó téglalakás

Pécs

62.698 M Ft
2 szoba
49 m2
Eladó téglalakás
Eladó téglalakás

Kozármisleny, Október 23. tér

60 M Ft
3 szoba
80 m2
Eladó téglalakás
Eladó téglalakás

Pécs, Belváros, Papnövelde utca

22.9 M Ft
1 szoba
28 m2
Eladó téglalakás
Eladó téglalakás

Pécs, Szigeti külváros, Hungária utca

29.9 M Ft
1 szoba
41 m2
Eladó téglalakás
Eladó téglalakás

Pécs

90.38 M Ft
2 szoba
72 m2
Eladó téglalakás
Eladó téglalakás

Pécs

7.9 M Ft
1 szoba
26 m2
Eladó téglalakás
Eladó téglalakás

Pécs

62.7 M Ft
2 szoba
46 m2
Eladó téglalakás
Eladó téglalakás

Pécs

81.7 M Ft
4 szoba
86 m2
Eladó téglalakás
Eladó téglalakás

Pécs

91.2 M Ft
4 szoba
96 m2
Eladó téglalakás
Eladó téglalakás

Pécs

91.2 M Ft
4 szoba
96 m2
Eladó téglalakás
Eladó téglalakás

Pécs

58.09 M Ft
2 szoba
45 m2
Eladó téglalakás
Eladó téglalakás

Pécs

62.698 M Ft
2 szoba
49 m2
Eladó téglalakás
Eladó téglalakás

Pécs

51.345 M Ft
2 szoba
35 m2
Eladó téglalakás
Eladó téglalakás

Pécs

62.7 M Ft
2 szoba
46 m2
Eladó téglalakás
Eladó téglalakás

Kozármisleny, Október 23. tér

60 M Ft
3 szoba
80 m2
Eladó téglalakás
Eladó téglalakás

Pécs

63.588 M Ft
2 szoba
52 m2
Eladó téglalakás
Eladó téglalakás

Pécs

69.89 M Ft
1 szoba
51 m2
Eladó téglalakás
Eladó téglalakás

Pécs

95.52 M Ft
3 szoba
62 m2
Eladó téglalakás
Eladó téglalakás

Pécs

69.93 M Ft
2 szoba
54 m2
Eladó téglalakás
Eladó téglalakás

Pécs

81.7 M Ft
4 szoba
86 m2

Falusi CSOK ingatlanok

Eladó családi ház
Eladó családi ház

Szigliget

299 M Ft
3 szoba
95 m2
Eladó családi ház
Eladó családi ház

Alattyán

8.5 M Ft
1 + 1 szoba
70 m2
Eladó családi ház
Eladó családi ház

Somogyszil

27.9 M Ft
3 szoba
140 m2
Eladó családi ház
Eladó családi ház

Kétpó

14.9 M Ft
1 + 2 szoba
86 m2
Eladó családi ház
Eladó családi ház

Magyarszék

48.5 M Ft
3 + 1 szoba
86 m2
Eladó családi ház
Eladó családi ház

Sellye

48.2 M Ft
4 szoba
99 m2
Eladó családi ház
Eladó családi ház

Pálfa

29.99 M Ft
3 szoba
90 m2
Eladó családi ház
Eladó családi ház

Alsóújlak

21.9 M Ft
2 szoba
78 m2