Seven Pearl

Eladó téglalakás
Pápa, földszint

+ 17 kép 1/20
52 990 000 Ft52.99 M Ft 883 167 Ft/m2
2 szoba
60 m2
földszint
építés éve:1876

Részletes adatok

Állapot: Felújított
Telekméret: 300 m2
Fűtés: Gázkazán
Energetikai besorolás: Nem adta meg a hirdető

Az OTP Bank lakáshitel ajánlataFizetett hirdetés

+36 20 419
Hima Zsuzsanna
OTPip - Győr Bajcsy-Zsilinszky út 27 - OTP Ingatlanpont Iroda

Érdekel az OTP Bank kedvezményes lakáshitel ajánlata? *

* A kérdésre „Igen” válasz bejelölése esetén, az „Üzenet küldése” gombra kattintva kijelentem, hogy az OTP Bank Nyrt. Adatkezelési tájékoztatójának tartalmát megismertem és tudomásul vettem.

Eladó téglalakás leírása

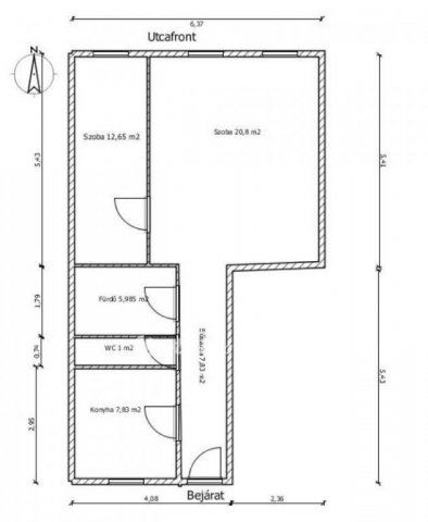
ELADÓ INGATLAN PÁPA BELVÁROSÁBAN! Ne hagyja ki ezt a KIVÉTELES LEHETŐSÉGET, hogy egy rendkívül SOKOLDALÚ ingatlan tulajdonosa legyen, mindössze pár percre a város központjától! A 60 m2-es hasznos alapterületű lakás kettő szobával rendelkezik, így elegendő TÉR áll rendelkezésre egy kényelmes életvitelhez. Az ingatlan fűtése GÁZ CIRKÓ KAZÁNNAL történik egy nagyfokú ENERGIATAKARÉKOSSÁG és HATÉKONYSÁG jellemzi az otthont. A radiátoros hőleadás a hideg téli hónapokban is kényelmet biztosít. Az INGATLAN KIALAKÍTÁSA praktikusan szolgálja a lakók igényeit. ELHELYEZKEDÉSE IDEÁLIS, mindössze 6 perc gyalogtávolságra van Pápa központjától, ahol minden szükséges szolgáltatás elérhető: bevásárlóközpont, iskola, óvoda és orvosi rendelő a közvetlen közelben. Az INGATLAN BESOROLÁSA társasházi lakás, de 300 m2-es közös használatú udvar is tartozik hozzá, amely számtalan KREATÍV LEHETŐSÉGET nyújt a szabadidő hasznos eltöltésére. A házban 11 lakás taláhatól. A lakáshoz garázs is tartozik, mely a vételár részét képezi. 10 éve teljes felújításon esett át. Megtörtént a vezetékek cseréje, új burkolat került kialakításra. A lakásban található összes bútor és berendezés szintén a vételár részét képezi. Ne hagyja ki ezt a KIVÉTELES lehetőséget, tekintse meg személyesen, és legyen része Pápa nyüzsgő, de mégis családias közösségének!
Referenciaszám: M315005

Hirdetés feltöltve: 2025. 11. 07. Utoljára módosítva: 2025. 11. 26.

2 szobás téglalakások ára Pápán

Ebből az összehasonlításból megtudhatod, hogyan viszonyul a lakás ára a környékbeli téglalakások átlagos árához. Ez nem azt jelenti, hogy ennyivel olcsóbb vagy drágább, mint amennyit a lakás ér, hanem hogy ennyivel tér el a környékbeli átlagtól.

Ennek a m² ára
Pápa m² ár
883 e Ft
754 e Ft -17%
Ennek az ára
Pápa átlagár
52.99 M Ft m Ft
36.2 m Ft -46%

Az ingatlan elhelyezkedése

Cím: Pápa, földszint

Eladó téglalakások a környékről

Eladó téglalakás
Eladó téglalakás

Pápa

50.5 M Ft
2 + 1 szoba
60 m2
Eladó téglalakás
Eladó téglalakás

Balatonakarattya

160.147 M Ft
2 szoba
61 m2
Eladó téglalakás
Eladó téglalakás

Balatonakarattya

186.639 M Ft
3 szoba
71 m2
Eladó téglalakás
Eladó téglalakás

Ajka, Új élet utca

41 M Ft
3 szoba
66 m2
Eladó téglalakás
Eladó téglalakás

Balatonakarattya

159.487 M Ft
2 szoba
60 m2
Eladó téglalakás
Eladó téglalakás

Balatonalmádi

103 M Ft
2 szoba
47 m2
Eladó téglalakás
Eladó téglalakás

Pápa, Határ u. 14-16

50.95 M Ft
2 + 1 szoba
60 m2
Eladó téglalakás
Eladó téglalakás

Pápa

28.5 M Ft
1 + 1 szoba
48 m2
Eladó téglalakás
Eladó téglalakás

Pápa

39.95 M Ft
1 + 2 szoba
45 m2
Eladó téglalakás
Eladó téglalakás

Pápa, Határ u. 14-16

31.95 M Ft
1 + 1 szoba
34 m2
Eladó téglalakás
Eladó téglalakás

Balatonakarattya

184.95 M Ft
2 szoba
70 m2
Eladó téglalakás
Eladó téglalakás

Pápa, Határ utca 14-16

44.5 M Ft
1 + 1 szoba
51 m2
Eladó téglalakás
Eladó téglalakás

Pápa

90 M Ft
4 szoba
130 m2
Eladó téglalakás
Eladó téglalakás

Balatonakarattya

213.055 M Ft
3 szoba
81 m2
Eladó téglalakás
Eladó téglalakás

Balatonakarattya

208.331 M Ft
3 szoba
80 m2
Eladó téglalakás
Eladó téglalakás

Pápa

49.5 M Ft
1 + 2 szoba
60 m2
Eladó téglalakás
Eladó téglalakás

Pápa, Határ u. 14-16

51.95 M Ft
2 + 1 szoba
60 m2
Eladó téglalakás
Eladó téglalakás

Pápa, Határ u. 14-16

40.95 M Ft
1 + 2 szoba
45 m2
Eladó téglalakás
Eladó téglalakás

Balatonakarattya

239.192 M Ft
3 szoba
92 m2
Eladó téglalakás
Eladó téglalakás

Balatonakarattya

163.576 M Ft
2 szoba
62 m2
Eladó téglalakás
Eladó téglalakás

Balatonakarattya

170.637 M Ft
2 szoba
65 m2
Eladó téglalakás
Eladó téglalakás

Pápa

37.445 M Ft
1 + 1 szoba
41 m2
Eladó téglalakás
Eladó téglalakás

Veszprém

168 M Ft
2 szoba
112 m2
Eladó téglalakás
Eladó téglalakás

Pápa

13.9 M Ft
1 szoba
30 m2

Falusi CSOK ingatlanok

Eladó családi ház
Eladó családi ház

Ságvár

64.9 M Ft
3 szoba
70 m2
Eladó családi ház
Eladó családi ház

Ceglédbercel

49.9 M Ft
4 szoba
120 m2
Eladó családi ház
Eladó családi ház

Jakabszállás

69.99 M Ft
1 + 4 szoba
91 m2
Eladó családi ház
Eladó családi ház

Sárosd

21.9 M Ft
3 szoba
86 m2
Eladó családi ház
Eladó családi ház

Gádoros

30 M Ft
3 szoba
100 m2
Eladó családi ház
Eladó családi ház

Ónod, Barátság 9

31.999 M Ft
3 szoba
150 m2
Eladó családi ház
Eladó családi ház

Ceglédbercel, Iskola utca

109 M Ft
5 szoba
133 m2
Eladó családi ház
Eladó családi ház

Újkígyós

11.9 M Ft
3 szoba
88 m2