Eladó téglalakás
Pápa

+ 17 kép 1/20
52 990 000 Ft52.99 M Ft 883 167 Ft/m2
2 szoba
60 m2
építés éve:1876

Részletes adatok

Állapot: Újszerű
Fűtés: Gázkazán
Energetikai besorolás: Nem adta meg a hirdető
Zenga Premier

Friss hirdetések, amiket nem találsz meg más ingatlankereső portálon.

Fedezd fel elsőként a Zenga Premier címkés eladó ingatlanokat!

További részletek a zenga.hu-n

Az OTP Bank lakáshitel ajánlataFizetett hirdetés

+36 30 372
Bors Andrea
referens

Érdekel az OTP Bank kedvezményes lakáshitel ajánlata? *

* A kérdésre „Igen” válasz bejelölése esetén, az „Üzenet küldése” gombra kattintva kijelentem, hogy az OTP Bank Nyrt. Adatkezelési tájékoztatójának tartalmát megismertem és tudomásul vettem.

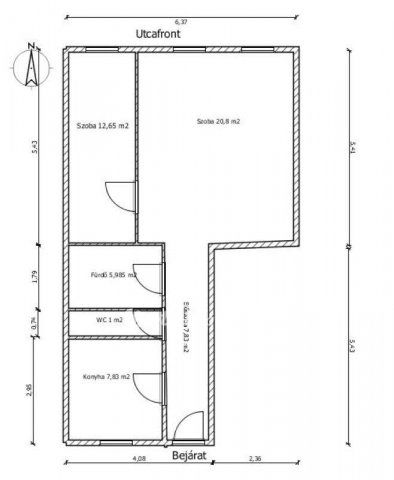
Eladó téglalakás leírása

ELADÓ INGATLAN PÁPA BELVÁROSÁBAN! Ne hagyja ki ezt a KIVÉTELES LEHETŐSÉGET, hogy egy rendkívül SOKOLDALÚ ingatlan tulajdonosa legyen, mindössze pár percre a város központjától! A 60 m2-es hasznos alapterületű lakás kettő szobával rendelkezik, így elegendő TÉR áll rendelkezésre egy kényelmes életvitelhez. Az ingatlan fűtése GÁZ CIRKÓ KAZÁNNAL történik egy nagyfokú ENERGIATAKARÉKOSSÁG és HATÉKONYSÁG jellemzi az otthont. A radiátoros hőleadás a hideg téli hónapokban is kényelmet biztosít. Az INGATLAN KIALAKÍTÁSA praktikusan szolgálja a lakók igényeit. ELHELYEZKEDÉSE IDEÁLIS, mindössze 6 perc gyalogtávolságra van Pápa központjától, ahol minden szükséges szolgáltatás elérhető: bevásárlóközpont, iskola, óvoda és orvosi rendelő a közvetlen közelben. Az INGATLAN BESOROLÁSA társasházi lakás, de 300 m2-es közös használatú udvar is tartozik hozzá, amely számtalan KREATÍV LEHETŐSÉGET nyújt a szabadidő hasznos eltöltésére. A házban 11 lakás taláhatól. A lakáshoz garázs is tartozik, mely a vételár részét képezi. 10 éve teljes felújításon esett át. Megtörtént a vezetékek cseréje, új burkolat került kialakításra. A lakásban található összes bútor és berendezés szintén a vételár részét képezi. Ne hagyja ki ezt a KIVÉTELES lehetőséget, tekintse meg személyesen, és legyen része Pápa nyüzsgő, de mégis családias közösségének!
Referenciaszám: M315005

Hirdetés feltöltve: 2025. 10. 15. Utoljára módosítva: 2025. 10. 15.

2 szobás téglalakások ára Pápán

Ebből az összehasonlításból megtudhatod, hogyan viszonyul a lakás ára a környékbeli téglalakások átlagos árához. Ez nem azt jelenti, hogy ennyivel olcsóbb vagy drágább, mint amennyit a lakás ér, hanem hogy ennyivel tér el a környékbeli átlagtól.

Ennek a m² ára
Pápa m² ár
883 e Ft
709 e Ft -25%
Ennek az ára
Pápa átlagár
52.99 M Ft m Ft
35.7 m Ft -48%

Az ingatlan elhelyezkedése

Cím: Pápa

Eladó téglalakások a környékről

Eladó téglalakás
Eladó téglalakás

Balatonakarattya

142.469 M Ft
2 szoba
54 m2
Eladó téglalakás
Eladó téglalakás

Pápa

49.5 M Ft
2 + 1 szoba
60 m2
Eladó téglalakás
Eladó téglalakás

Pápa

50.75 M Ft
2 + 1 szoba
60 m2
Eladó téglalakás
Eladó téglalakás

Pápa

90 M Ft
4 szoba
120 m2
Eladó téglalakás
Eladó téglalakás

Veszprém

168 M Ft
2 szoba
112 m2
Eladó téglalakás
Eladó téglalakás

Balatonakarattya

239.192 M Ft
3 szoba
92 m2
Eladó téglalakás
Eladó téglalakás

Pápa

37.445 M Ft
1 + 1 szoba
41 m2
Eladó téglalakás
Eladó téglalakás

Balatonakarattya

160.147 M Ft
2 szoba
61 m2
Eladó téglalakás
Eladó téglalakás

Pápa

49.5 M Ft
1 + 2 szoba
60 m2
Eladó téglalakás
Eladó téglalakás

Pápa

48.522 M Ft
3 szoba
62 m2
Eladó téglalakás
Eladó téglalakás

Veszprém

144.067 M Ft
5 szoba
101 m2
Eladó téglalakás
Eladó téglalakás

Pápa

37.445 M Ft
1 + 1 szoba
41 m2
Eladó téglalakás
Eladó téglalakás

Balatonakarattya

163.576 M Ft
2 szoba
62 m2
Eladó téglalakás
Eladó téglalakás

Balatonakarattya

205.384 M Ft
3 szoba
78 m2
Eladó téglalakás
Eladó téglalakás

Pápa

28 M Ft
2 szoba
54 m2
Eladó téglalakás
Eladó téglalakás

Pápa, Határ u. 14-16

51.5 M Ft
2 + 1 szoba
60 m2
Eladó téglalakás
Eladó téglalakás

Balatonakarattya

211.785 M Ft
3 szoba
81 m2
Eladó téglalakás
Eladó téglalakás

Ajka, Új élet utca

41 M Ft
3 szoba
66 m2
Eladó téglalakás
Eladó téglalakás

Pápa

41.95 M Ft
1 + 1 szoba
47 m2
Eladó téglalakás
Eladó téglalakás

Pápa, Határ u. 14-16

40.95 M Ft
1 + 2 szoba
45 m2
Eladó téglalakás
Eladó téglalakás

Veszprém

60 M Ft
2 szoba
40 m2
Eladó téglalakás
Eladó téglalakás

Balatonakarattya

170.637 M Ft
2 szoba
65 m2
Eladó téglalakás
Eladó téglalakás

Pápa

31.5 M Ft
1 + 1 szoba
33 m2
Eladó téglalakás
Eladó téglalakás

Pápa

38.85 M Ft
1 + 1 szoba
44 m2

Falusi CSOK ingatlanok

Eladó családi ház
Eladó családi ház

Elek

15.99 M Ft
2 szoba
70 m2
Eladó családi ház
Eladó családi ház

Szentkirály, Szent István tér

29.9 M Ft
1 szoba
45 m2
Eladó családi ház
Eladó családi ház

Balatonkeresztúr, Dózsa György u. 29

145 M Ft
5 szoba
150 m2
Eladó családi ház
Eladó családi ház

Tök

96.2 M Ft
4 szoba
104 m2
Eladó családi ház
Eladó családi ház

Mezőkeresztes

23.9 M Ft
2 + 1 szoba
82 m2
Eladó családi ház
Eladó családi ház

Majs

28.5 M Ft
3 szoba
160 m2
Eladó családi ház
Eladó családi ház

Ceglédbercel

23 M Ft
2 + 1 szoba
80 m2
Eladó sorház
Eladó sorház

Szob

16 M Ft
2 szoba
45 m2