Eladó téglalakás
Nagykanizsa, 4. emelet

+ 9 kép 1/12
29 900 000 Ft29.9 M Ft 506 780 Ft/m2
2 szoba
59 m2
4. emelet
építés éve:1986

Részletes adatok

Fűtés: Házközponti
Közmű: Gáz, Villany, Csatorna
Energetikai besorolás: Nem adta meg a hirdető
Zenga Premier

Friss hirdetések, amiket nem találsz meg más ingatlankereső portálon.

Fedezd fel elsőként a Zenga Premier címkés eladó ingatlanokat!

További részletek a zenga.hu-n

Az OTP Bank lakáshitel ajánlataFizetett hirdetés

+36 70 435
Vucskó Krisztina
referens

Érdekel az OTP Bank kedvezményes lakáshitel ajánlata? *

* A kérdésre „Igen” válasz bejelölése esetén, az „Üzenet küldése” gombra kattintva kijelentem, hogy az OTP Bank Nyrt. Adatkezelési tájékoztatójának tartalmát megismertem és tudomásul vettem.

Eladó téglalakás leírása

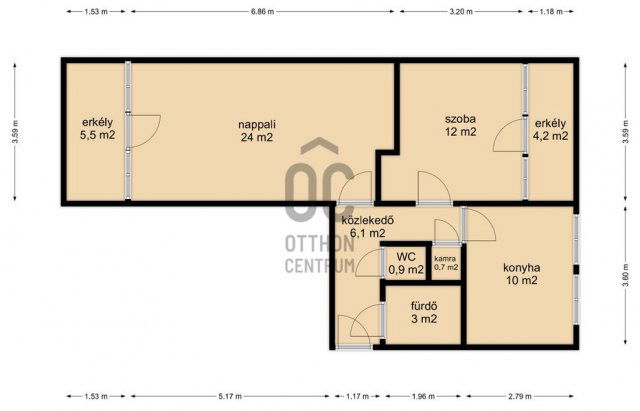
Nagykanizsa keleti városrészében felújított, 2 szobás, 2 erkélyes lakást kínálok megvételre!

Környék jellemzői:
- Belvárostól gyalog mindössze 15 percre található az ingatlan.
- A környék infrastruktúrája és közlekedése kiváló.
- A forgalom alacsony, mivel egy csendes mellékutcában található az épület.

Lakás jellemzői:
- Alapterülete nettó 59 m2-es, melyben 2 szoba, konyha, kamra, közlekedő, fürdő, WC helyiségek lettek kialakítva.
- A lakás kiváló elosztású, két erkélyes.
- A felújítás során a burkolatok és a víz vezetékek is cserélve lettek.
- Tájolása észak-déli.
- Hőszigetelt, műanyag nyílászárók kerültek beépítésre.
- Közös tároló tartozik az ingatlanhoz.
- Fűtése házközponti, így a bent lakóknak mindig egyenletes hőmérséklet biztosított.

Irodánk teljes körű, ingyenes szolgáltatást nyújt kereső ügyfeleinek.
Szakszerű tanácsadással, ingyenes hitel ügyintézéssel, energetikai tanúsítvány elkészítésével és kedvező díjszabású ügyvéddel nyújtunk segítséget!

Hirdetés feltöltve: 2025. 10. 20. Utoljára módosítva: 2025. 10. 20.

2 szobás téglalakások ára Nagykanizsán

Ebből az összehasonlításból megtudhatod, hogyan viszonyul a lakás ára a környékbeli téglalakások átlagos árához. Ez nem azt jelenti, hogy ennyivel olcsóbb vagy drágább, mint amennyit a lakás ér, hanem hogy ennyivel tér el a környékbeli átlagtól.

Ennek a m² ára
Nagykanizsa m² ár
507 e Ft
579 e Ft 12%
Ennek az ára
Nagykanizsa átlagár
29.9 M Ft m Ft
30.6 m Ft 2%

Az ingatlan elhelyezkedése

Cím: Nagykanizsa, 4. emelet

Eladó téglalakások a környékről

Eladó téglalakás
Eladó téglalakás

Keszthely, Entz Géza sétány 11-13

82 M Ft
2 szoba
60 m2
Eladó téglalakás
Eladó téglalakás

Nagykanizsa

26.5 M Ft
2 szoba
52 m2
Eladó téglalakás
Eladó téglalakás

Nagykanizsa

45 M Ft
4 szoba
76 m2
Eladó téglalakás
Eladó téglalakás

Nagykanizsa

42 M Ft
4 szoba
96 m2
Eladó téglalakás
Eladó téglalakás

Keszthely, Entz Géza sétány 11-13

96.5 M Ft
3 szoba
75 m2
Eladó téglalakás
Eladó téglalakás

Nagykanizsa

52 M Ft
4 szoba
93 m2
Eladó téglalakás
Eladó téglalakás

Nagykanizsa

38.9 M Ft
4 szoba
77 m2
Eladó téglalakás
Eladó téglalakás

Nagykanizsa

45 M Ft
4 szoba
76 m2
Eladó téglalakás
Eladó téglalakás

Keszthely, Entz Géza sétány 11-13

81 M Ft
2 szoba
60 m2
Eladó téglalakás
Eladó téglalakás

Keszthely, Entz Géza sétány 11-13

149 M Ft
4 szoba
121 m2
Eladó téglalakás
Eladó téglalakás

Keszthely, Entz Géza sétány 11-13

97 M Ft
3 szoba
75 m2
Eladó téglalakás
Eladó téglalakás

Keszthely, Entz Géza sétány 11-13

161 M Ft
4 szoba
121 m2
Eladó téglalakás
Eladó téglalakás

Nagykanizsa

59.9 M Ft
4 szoba
112 m2
Eladó téglalakás
Eladó téglalakás

Keszthely, Entz Géza sétány 11-13

129 M Ft
3 szoba
96 m2
Eladó téglalakás
Eladó téglalakás

Nagykanizsa, Teleki utca 3

25.9 M Ft
2 szoba
55 m2
Eladó téglalakás
Eladó téglalakás

Nagykanizsa

31.9 M Ft
2 szoba
61 m2
Eladó téglalakás
Eladó téglalakás

Keszthely, Entz Géza sétány 11-13

104 M Ft
3 szoba
82 m2
Eladó téglalakás
Eladó téglalakás

Keszthely, Entz Géza sétány 11-13

76 M Ft
2 szoba
60 m2
Eladó téglalakás
Eladó téglalakás

Keszthely, Entz Géza sétány 11-13

199 M Ft
4 szoba
121 m2
Eladó téglalakás
Eladó téglalakás

Nagykanizsa

64.5 M Ft
6 szoba
159 m2
Eladó téglalakás
Eladó téglalakás

Keszthely, Entz Géza sétány 11-13

71.5 M Ft
2 szoba
60 m2
Eladó téglalakás
Eladó téglalakás

Nagykanizsa

44.9 M Ft
4 szoba
83 m2
Eladó téglalakás
Eladó téglalakás

Nagykanizsa

31.9 M Ft
2 szoba
69 m2
Eladó téglalakás
Eladó téglalakás

Keszthely, Entz Géza sétány 11-13

159 M Ft
3 szoba
75 m2

Falusi CSOK ingatlanok

Eladó családi ház
Eladó családi ház

Balatonudvari

89 M Ft
5 szoba
92 m2
Eladó családi ház
Eladó családi ház

Rém

11 M Ft
2 szoba
60 m2
Eladó családi ház
Eladó családi ház

Elek

35.49 M Ft
2 szoba
75 m2
Eladó családi ház
Eladó családi ház

Bakonybánk, Kossuth Lajos utca 26

13.36 M Ft
1 + 1 szoba
105 m2
Eladó családi ház
Eladó családi ház

Taktakenéz, Temető utca 15

4.6 M Ft
3 szoba
68 m2
Eladó családi ház
Eladó családi ház

Balatonvilágos

78 M Ft
3 szoba
43 m2
Eladó családi ház
Eladó családi ház

Nyékládháza

45 M Ft
3 szoba
90 m2
Eladó családi ház
Eladó családi ház

Jászkarajenő

25 M Ft
4 szoba
136 m2