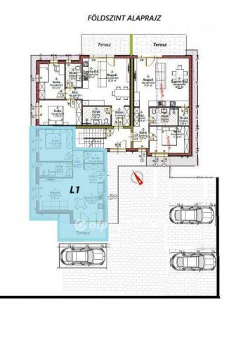
Eladó téglalakás
Monorierdő, földszint

+ 4 kép 1/7
53 900 000 Ft53.9 M Ft 1 036 538 Ft/m2
2 szoba
52 m2
földszint
építés éve:2025

Részletes adatok

Fűtés: Egyéb
Energetikai besorolás: Nem adta meg a hirdető

Az OTP Bank lakáshitel ajánlataFizetett hirdetés

+36 30 790
Alföldi Attila
OTPIP I. kerület Zsolt utcai iroda

Érdekel az OTP Bank kedvezményes lakáshitel ajánlata? *

* A kérdésre „Igen” válasz bejelölése esetén, az „Üzenet küldése” gombra kattintva kijelentem, hogy az OTP Bank Nyrt. Adatkezelési tájékoztatójának tartalmát megismertem és tudomásul vettem.

Eladó téglalakás leírása

Újépítésű társasház épül Monorierdő központjában!
Kedvező 5% kamatozású, Zöld hitelt igénybe vehető, hívj a részletekért!

ÉPÜLET ADATAI:
6 lakásos társasház épül.
Átadás: 2026 Q1
Telekméret (teljes): 720 m2. Telekre épül: két szintes társasház.
Földszinti lakások kertkapcsolattal.
Energetikai besorolás: A+
Fűtés és használati melegvíz: Hőszivattyús
Hőleadás padlófűtéssel.
Klíma: Inverteres Split klímaberendezés
Kocsibeálló: felszíni az árban.

EGYEDI IGÉNYEK:
Hideg és meleg burkolatok választhatók.
Belső nyílászárók választhatók.
Szaniterek választhatók.
Műszaki egyeztetéssel további egyedi igények is megvalósíthatók.

REFERENCIÁK:
Megbízható, számos referenciával rendelkező vállalkozó építi. Jelenleg is folyamatban lévő munkái a közelben: Gyömrő, Monor, Monorierdő és Csévharaszt településeken.
LOKÁCIÓ:
Monorierdő fejlődő település az M4 és a 4-es főútról könnyen megközelíthető, Monortól 5 km távolságban.
Monorierdő központjában helyezkedik el az épület. Közelben: Posta, Zöldséges, Közért, Egészségház, Iskola, Óvoda található.
Vasútállomás 2 perc gyalog.
Vonattal a KÖKI 25 perc alatt és a Nyugati pályaudvar 40 perc alatt elérhető.
Egészségház, óvoda, iskola, posta, élelmiszerbolt közelben.

Válasszon kínálatunkból, és számíthat az OTP Ingatlanpont szakmai támogatására a teljes vételi folyamat során az adásvételi szerződéstől a hitelügyintézésen keresztül egészen a kulcsrakész átadásig. A beruházó számos referenciával rendelkezik, melyek a Gyömrő Liget lakóparkban ill. Monorierdőn kerültek átadásra. Ne feledje, az OTP Ingatlanpont kedvezményes pénzügyi konstrukciókkal áll ügyfelei rendelkezésére! VIP-szolgáltatást nyújtunk az OTP-hiteltermékek ügyintézésében. Jogi és pénzügyi segítséget nyújtanak szakértőink, hogy az adásvétel folyamata gördülékeny legyen. Tudjon meg többet, hívjon bizalommal!

Referencia szám: M300736

Hirdetés feltöltve: 2025. 10. 04. Utoljára módosítva: 2025. 10. 04.

2 szobás téglalakások ára Monorierdőn

Ebből az összehasonlításból megtudhatod, hogyan viszonyul a lakás ára a környékbeli téglalakások átlagos árához. Ez nem azt jelenti, hogy ennyivel olcsóbb vagy drágább, mint amennyit a lakás ér, hanem hogy ennyivel tér el a környékbeli átlagtól.

Ennek a m² ára
Monorierdő m² ár
1037 e Ft
986 e Ft -5%
Ennek az ára
Monorierdő átlagár
53.9 M Ft m Ft
52.9 m Ft -2%

Az ingatlan elhelyezkedése

Cím: Monorierdő, földszint

Eladó téglalakások a környékről

Eladó téglalakás
Eladó téglalakás

Göd

44.5 M Ft
3 szoba
69 m2
Eladó téglalakás
Eladó téglalakás

Göd

29.5 M Ft
2 szoba
44 m2
Eladó téglalakás
Eladó téglalakás

Monorierdő

63 M Ft
2 szoba
56 m2
Eladó téglalakás
Eladó téglalakás

Monorierdő

69.5 M Ft
3 szoba
63 m2
Eladó téglalakás
Eladó téglalakás

Monorierdő

65.5 M Ft
3 szoba
63 m2
Eladó téglalakás
Eladó téglalakás

Monorierdő

69.5 M Ft
3 szoba
63 m2
Eladó téglalakás
Eladó téglalakás

Monorierdő

65.5 M Ft
3 szoba
63 m2
Eladó téglalakás
Eladó téglalakás

Göd

44.9 M Ft
3 szoba
58 m2
Eladó téglalakás
Eladó téglalakás

Göd

27.9 M Ft
2 szoba
43 m2
Eladó téglalakás
Eladó téglalakás

Monorierdő

65.5 M Ft
3 szoba
63 m2
Eladó téglalakás
Eladó téglalakás

Göd

28.9 M Ft
2 szoba
44 m2
Eladó téglalakás
Eladó téglalakás

Göd

46.5 M Ft
4 szoba
72 m2
Eladó téglalakás
Eladó téglalakás

Monorierdő

63 M Ft
2 szoba
56 m2
Eladó téglalakás
Eladó téglalakás

Göd

46.5 M Ft
3 szoba
69 m2
Eladó téglalakás
Eladó téglalakás

Monorierdő

63 M Ft
2 szoba
56 m2
Eladó téglalakás
Eladó téglalakás

Monorierdő

65.5 M Ft
3 szoba
63 m2
Eladó téglalakás
Eladó téglalakás

Monorierdő

58.5 M Ft
2 szoba
52 m2
Eladó téglalakás
Eladó téglalakás

Monorierdő

58.5 M Ft
2 szoba
52 m2
Eladó téglalakás
Eladó téglalakás

Monorierdő

58.5 M Ft
2 szoba
49 m2
Eladó téglalakás
Eladó téglalakás

Monorierdő

65.5 M Ft
3 szoba
63 m2
Eladó téglalakás
Eladó téglalakás

Göd, Oázis utca

27.9 M Ft
2 szoba
44 m2
Eladó téglalakás
Eladó téglalakás

Göd

42.9 M Ft
3 szoba
61 m2
Eladó téglalakás
Eladó téglalakás

Monorierdő

69.5 M Ft
3 szoba
69 m2
Eladó téglalakás
Eladó téglalakás

Monorierdő

63 M Ft
2 szoba
56 m2

Falusi CSOK ingatlanok

Eladó családi ház
Eladó családi ház

Enese

72.025 M Ft
4 szoba
75 m2
Eladó családi ház
Eladó családi ház

Szőlősgyörök, Arany János utca

89.9 M Ft
3 szoba
130 m2
Eladó családi ház
Eladó családi ház

Zalaszentbalázs

32 M Ft
2 szoba
100 m2
Eladó családi ház
Eladó családi ház

Erdőbénye

69.5 M Ft
4 szoba
148 m2
Eladó családi ház
Eladó családi ház

Recsk

21 M Ft
4 szoba
220 m2
Eladó családi ház
Eladó családi ház

Tiszaalpár

29 M Ft
4 szoba
132 m2
Eladó családi ház
Eladó családi ház

Segesd

79.9 M Ft
8 szoba
500 m2
Eladó ikerház
Eladó ikerház

Balatonkenese

84.99 M Ft
3 szoba
76 m2