Eladó téglalakás
Miskolc, földszint

+ 8 kép 1/11
37 500 000 Ft37.5 M Ft 625 000 Ft/m2
2 + 1 szoba
60 m2
földszint
építés éve:2003

Részletes adatok

Állapot: Felújított
Fűtés: Gázkazán
Energetikai besorolás: Nem adta meg a hirdető

Az OTP Bank lakáshitel ajánlataFizetett hirdetés

+36 70 322
Piskóti Tibor Lajos
OTP Ingatlanpont Miskolc Szemere

Érdekel az OTP Bank kedvezményes lakáshitel ajánlata? *

* A kérdésre „Igen” válasz bejelölése esetén, az „Üzenet küldése” gombra kattintva kijelentem, hogy az OTP Bank Nyrt. Adatkezelési tájékoztatójának tartalmát megismertem és tudomásul vettem.

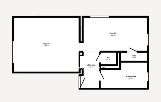
Eladó téglalakás leírása

Eladó igényes, galériás lakás Miskolcon, zöldövezetben Miskolcon, a LÁEV villamosmegállótól mindössze pár percre, zöld környezetben kínálok eladásra egy egyedi kivitelezésű, költözhető állapotú, galériás lakást. A hivatalos alapterület 42 nm, amelyhez a tetőtér beépítésével további kb. 20 nm nyerhető, így a lakás összesen két külön nyíló hálószobával bővült. Elrendezés: alsó szinten: napfényes nappali, tágas konyha-étkező egyedi beépített bútorral, kamra, fürdőszoba káddal és két mosdóval, külön WC, előszoba felső szinten: két hálószoba (gyerek-, dolgozó- vagy gardróbszobának is ideális) Főbb jellemzők: Műanyag nyílászárók redőnnyel, tetőtéri Velux fa ablakok Gáz-cirkó fűtés, alacsony rezsiköltség Ingyenes parkolás a ház körül, garázsvásárlás/bérlés a közelben megoldható Kiváló infrastruktúra: iskola, óvoda, bolt, gyógyszertár, posta, busz- és villamosmegálló pár perc sétára A lakás a 4. emeleten található, fiataloknak, családoknak vagy akár befektetésre is remek választás. OTP Banki hátterünknek köszönhetően finanszírozási igényekben (pl. Otthon Start Hitelprogram , Babaváró, Falusi CSOK, CSOK Plusz, Lakáshitel, Személyi kölcsön stb.), illetve biztosítások tekintetében is díjmentesen, soron kívüli ügyintézéssel segítem ügyfeleim! Referenciaszám:M316159

Referencia szám: M316159

Hirdetés feltöltve: 2025. 10. 29. Utoljára módosítva: 2025. 10. 29.

3 szobás téglalakások ára Miskolcon

Ebből az összehasonlításból megtudhatod, hogyan viszonyul a lakás ára a környékbeli téglalakások átlagos árához. Ez nem azt jelenti, hogy ennyivel olcsóbb vagy drágább, mint amennyit a lakás ér, hanem hogy ennyivel tér el a környékbeli átlagtól.

Ennek a m² ára
Miskolc m² ár
625 e Ft
694 e Ft 10%
Ennek az ára
Miskolc átlagár
37.5 M Ft m Ft
50.4 m Ft 26%

Az ingatlan elhelyezkedése

Cím: Miskolc, földszint

Eladó téglalakások a környékről

Eladó téglalakás
Eladó téglalakás

Miskolc

49.9 M Ft
3 szoba
122 m2
Eladó téglalakás
Eladó téglalakás

Borsodnádasd

7.9 M Ft
4 szoba
113 m2
Eladó téglalakás
Eladó téglalakás

Miskolc

138 M Ft
4 szoba
110 m2
Eladó téglalakás
Eladó téglalakás

Miskolc

24.9 M Ft
2 szoba
52 m2
Eladó téglalakás
Eladó téglalakás

Miskolc

138 M Ft
4 szoba
110 m2
Eladó téglalakás
Eladó téglalakás

Miskolc

49 M Ft
2 szoba
51 m2
Eladó téglalakás
Eladó téglalakás

Ózd

9.99 M Ft
2 szoba
58 m2
Eladó téglalakás
Eladó téglalakás

Miskolc

75.982 M Ft
3 szoba
78 m2
Eladó téglalakás
Eladó téglalakás

Miskolc, Új Diósgyőr, Torontáli utca

19.99 M Ft
2 szoba
49 m2
Eladó téglalakás
Eladó téglalakás

Miskolc

59 M Ft
3 szoba
60 m2
Eladó téglalakás
Eladó téglalakás

Miskolc, Új Diósgyőr, Torontáli utca

19.99 M Ft
2 szoba
49 m2
Eladó téglalakás
Eladó téglalakás

Miskolc

49 M Ft
2 szoba
51 m2
Eladó téglalakás
Eladó téglalakás

Putnok

13.6 M Ft
3 szoba
123 m2
Eladó téglalakás
Eladó téglalakás

Miskolc

64 M Ft
3 szoba
60 m2
Eladó téglalakás
Eladó téglalakás

Miskolc

60.396 M Ft
2 szoba
63 m2
Eladó téglalakás
Eladó téglalakás

Miskolc

24.9 M Ft
2 szoba
52 m2
Eladó téglalakás
Eladó téglalakás

Sárospatak, Tompa Mihály utca

23.9 M Ft
2 szoba
62 m2
Eladó téglalakás
Eladó téglalakás

Miskolc

39.9 M Ft
2 szoba
77 m2
Eladó téglalakás
Eladó téglalakás

Tiszaújváros

54.6 M Ft
2 szoba
80 m2
Eladó téglalakás
Eladó téglalakás

Tiszaújváros, Verebély utca

23.9 M Ft
1 + 1 szoba
39 m2
Eladó téglalakás
Eladó téglalakás

Miskolc

11.5 M Ft
2 szoba
59 m2
Eladó téglalakás
Eladó téglalakás

Ózd

10.5 M Ft
2 szoba
53 m2
Eladó téglalakás
Eladó téglalakás

Miskolc

49 M Ft
2 szoba
51 m2
Eladó téglalakás
Eladó téglalakás

Miskolc

24.9 M Ft
2 szoba
52 m2

Falusi CSOK ingatlanok

Eladó téglalakás
Eladó téglalakás

Tokaj

189.9 M Ft
3 szoba
90 m2
Eladó ikerház
Eladó ikerház

Balatonakali

165 M Ft
4 szoba
138 m2
Eladó családi ház
Eladó családi ház

Bátya

52.9 M Ft
3 szoba
160 m2
Eladó téglalakás
Eladó téglalakás

Tokaj

116.5 M Ft
2 szoba
49 m2
Eladó téglalakás
Eladó téglalakás

Tokaj

149.5 M Ft
2 szoba
61 m2
Eladó családi ház
Eladó családi ház

Dunaegyháza

34.6 M Ft
3 szoba
70 m2
Eladó családi ház
Eladó családi ház

Villány

65 M Ft
3 szoba
95 m2
Eladó családi ház
Eladó családi ház

Balatonkeresztúr

117 M Ft
3 + 2 szoba
154 m2