Seven Pearl

Eladó téglalakás
Miskolc, 2. emelet

+ 11 kép 1/14
29 900 000 Ft29.9 M Ft 695 349 Ft/m2
1 + 1 szoba
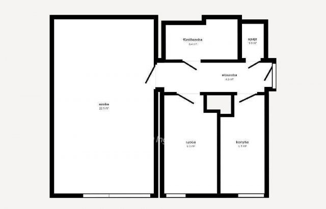
43 m2
2. emelet
építés éve:1975

Részletes adatok

Állapot: Átlagos
Fűtés: Egyéb
Energetikai besorolás: Nem adta meg a hirdető

Az OTP Bank lakáshitel ajánlataFizetett hirdetés

+36 70 322
Piskóti Tibor Lajos
OTP Ingatlanpont Miskolc Szemere

Érdekel az OTP Bank kedvezményes lakáshitel ajánlata? *

* A kérdésre „Igen” válasz bejelölése esetén, az „Üzenet küldése” gombra kattintva kijelentem, hogy az OTP Bank Nyrt. Adatkezelési tájékoztatójának tartalmát megismertem és tudomásul vettem.

Eladó téglalakás leírása

Miskolc, Felújított lakás, a Katowice városrészben eladó! Eladásra kínálok egy második emeleti, felújított lakást Miskolc népszerű és jól megközelíthető Katowice városrészében. A lakás csendes, nyugodt környezetben helyezkedik el, egy rendezett, kulturált lakóközösségű társasházban. Felújítási munkák és műszaki állapot: Az ingatlan az elmúlt időszakban jelentős felújításon esett át, melynek keretében: A fürdőszoba teljes körűen fel lett újítva: új burkolatok, szaniterek, vízvezetékek lettek beépítve. A konyha modernizálása is megtörtént, új burkolat, csaptelep. Műanyag, hőszigetelt nyílászárók kerültek beépítésre, amelyek nemcsak a hő- és hangszigetelést javítják, de esztétikailag is modern megjelenést biztosítanak. Biztonsági bejárati ajtó gondoskodik a lakók nyugalmáról. A teljes vízvezeték-hálózat és részben a villamos hálózat korszerűsítése is megtörtént, ez különösen fontos szempont a hosszú távú megbízható működéshez. A fűtés téljesen egyedi mika 6-os gázkazánról történik , ami lehetővé teszi az egyedi hőmérséklet-szabályozást és költséghatékony üzemeltetést. A melegvizet modern Heizer indirekt tároló biztosítja. Elrendezés és környezet: A lakás világos, jól benapozott, elrendezése praktikus, minden helyiség jól kihasználható. Kiváló választás fiatal pároknak, idősebbeknek, de akár befektetésnek is, azonnal bérbe adható állapotban van. A ház környéke zöldövezeti, parkosított, mégis jól megközelíthető. Parkolás az épület előtt, közterületen megoldott. A Közelben minden megtalálható: Bevásárlási lehetőségek, Óvoda, iskola, bölcsőde, Megyei kórház, Orvosi rendelő, gyógyszertár Tömegközlekedés (busz, villamos pár perc gyalog) Játszótér, park Ez a lakás nem igényel további ráfordítást, ide tényleg csak költözni kell! Jöjjön el, és tekintse meg, garantáltan nem fog csalódni! Vevőink rendelkezésére állunk finanszírozási kérdésekben is OTP banki hátterünkkel! Kérem tekintse meg, virtuális sétámat is. Hívása során hivatkozzon az M312570 referenciaszámra!

Referencia szám: M312570

Hirdetés feltöltve: 2025. 10. 22. Utoljára módosítva: 2025. 11. 02.

2 szobás téglalakások ára Miskolcon

Ebből az összehasonlításból megtudhatod, hogyan viszonyul a lakás ára a környékbeli téglalakások átlagos árához. Ez nem azt jelenti, hogy ennyivel olcsóbb vagy drágább, mint amennyit a lakás ér, hanem hogy ennyivel tér el a környékbeli átlagtól.

Ennek a m² ára
Miskolc m² ár
695 e Ft
617 e Ft -13%
Ennek az ára
Miskolc átlagár
29.9 M Ft m Ft
32.6 m Ft 8%

Az ingatlan elhelyezkedése

Cím: Miskolc, 2. emelet

Eladó téglalakások a környékről

Eladó téglalakás
Eladó téglalakás

Ózd

4.99 M Ft
2 szoba
55 m2
Eladó téglalakás
Eladó téglalakás

Putnok

13.6 M Ft
3 szoba
123 m2
Eladó téglalakás
Eladó téglalakás

Miskolc

163.35 M Ft
4 szoba
110 m2
Eladó téglalakás
Eladó téglalakás

Miskolc

41.657 M Ft
2 szoba
51 m2
Eladó téglalakás
Eladó téglalakás

Miskolc

65.34 M Ft
3 szoba
60 m2
Eladó téglalakás
Eladó téglalakás

Sárospatak, Tompa Mihály utca

23.9 M Ft
2 szoba
62 m2
Eladó téglalakás
Eladó téglalakás

Miskolc

41.9 M Ft
3 szoba
81 m2
Eladó téglalakás
Eladó téglalakás

Miskolc

65.34 M Ft
3 szoba
60 m2
Eladó téglalakás
Eladó téglalakás

Borsodnádasd

7.9 M Ft
4 szoba
113 m2
Eladó téglalakás
Eladó téglalakás

Ózd

10.4 M Ft
2 szoba
48 m2
Eladó téglalakás
Eladó téglalakás

Miskolc

59.99 M Ft
3 szoba
83 m2
Eladó téglalakás
Eladó téglalakás

Tiszaújváros

54.6 M Ft
2 szoba
80 m2
Eladó téglalakás
Eladó téglalakás

Miskolc

39.9 M Ft
2 szoba
77 m2
Eladó téglalakás
Eladó téglalakás

Miskolc, Új Diósgyőr, Torontáli utca

19.99 M Ft
2 szoba
49 m2
Eladó téglalakás
Eladó téglalakás

Miskolc

138 M Ft
5 szoba
110 m2
Eladó téglalakás
Eladó téglalakás

Miskolc

39.9 M Ft
2 szoba
77 m2
Eladó téglalakás
Eladó téglalakás

Miskolc

69.7 M Ft
3 szoba
60 m2
Eladó téglalakás
Eladó téglalakás

Putnok

8.8 M Ft
2 szoba
52 m2
Eladó téglalakás
Eladó téglalakás

Sátoraljaújhely

32.9 M Ft
4 szoba
105 m2
Eladó téglalakás
Eladó téglalakás

Miskolc

59.9 M Ft
2 + 3 szoba
97 m2
Eladó téglalakás
Eladó téglalakás

Miskolc

49.9 M Ft
3 szoba
122 m2
Eladó téglalakás
Eladó téglalakás

Ózd

9.99 M Ft
2 szoba
58 m2
Eladó téglalakás
Eladó téglalakás

Miskolc

41.9 M Ft
3 szoba
81 m2
Eladó téglalakás
Eladó téglalakás

Miskolc

69.7 M Ft
3 szoba
60 m2

Falusi CSOK ingatlanok

Eladó családi ház
Eladó családi ház

Balatonfenyves

430 M Ft
4 szoba
274 m2
Eladó családi ház
Eladó családi ház

Kondoros

29.9 M Ft
4 szoba
187 m2
Eladó családi ház
Eladó családi ház

Onga

65 M Ft
5 szoba
168 m2
Eladó családi ház
Eladó családi ház

Balatonkeresztúr

149 M Ft
4 szoba
140 m2
Eladó családi ház
Eladó családi ház

Marcaltő

26 M Ft
3 szoba
103 m2
Eladó családi ház
Eladó családi ház

Bag

16.9 M Ft
6 szoba
160 m2
Eladó téglalakás
Eladó téglalakás

Balatonszemes

123.3 M Ft
2 szoba
70 m2
Eladó családi ház
Eladó családi ház

Badacsonytomaj, Kodály Zoltán utca

185 M Ft
6 + 1 szoba
210 m2