Eladó téglalakás
Miskolc, 4. emelet

+ 17 kép 1/20
54 900 000 Ft54.9 M Ft 533 010 Ft/m2
3 szoba
103 m2
4. emelet
építés éve:2010

Részletes adatok

Állapot: Felújított
Fűtés: Gázkazán
Energetikai besorolás: Nem adta meg a hirdető

Az OTP Bank lakáshitel ajánlataFizetett hirdetés

+36 70 439
dr. Rohács Andrea
OTP IP Miskolc Corvin 1-3

Érdekel az OTP Bank kedvezményes lakáshitel ajánlata? *

* A kérdésre „Igen” válasz bejelölése esetén, az „Üzenet küldése” gombra kattintva kijelentem, hogy az OTP Bank Nyrt. Adatkezelési tájékoztatójának tartalmát megismertem és tudomásul vettem.

Eladó téglalakás leírása

Eladó modern tetőtéri lakás Miskolc szívében, a Csabai kapu közkedvelt részén!

Miskolcon, a Petneházy bérházaknál kínálunk megvételre egy különleges hangulatú, világos, tetőtéri lakást, amely nemcsak kényelmes otthonként, de kiváló befektetésként is megállja a helyét!

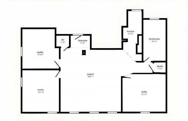
A lakás összesen 103 négyzetméter alapterületű, amelyből 69 nm hasznos területként szolgál, tökéletes elosztásának köszönhetően pedig minden négyzetméter jól kihasználható.

Az ingatlan 3 külön nyíló szobával és egy tágas nappalival rendelkezik, így akár egy 4-5 fős család számára is ideális. A nappalit Velux tetőtéri ablakok árasztják el fénnyel, amelyek külső hővédő és belső fényzáró rolókkal vannak felszerelve, így az év minden napján kellemes, otthonos hangulat uralkodik a lakásban.

A gázcirkós fűtésrendszer, padló- és radiátoros fűtés kombinációjával, garantálja a komfortos meleget a hidegebb hónapokban, míg a külön beépített hűtő-fűtő klíma a nyári hőséget teszi elviselhetővé. A lakás alacsony fenntartási költségei pedig még vonzóbbá teszik.

Az ingatlan elhelyezkedése kiváló, a közelben minden fontos szolgáltatás megtalálható: óvoda, iskola, üzletek (pl. Penny), posta , és a belváros csupán 5-8 perc alatt, három buszmegállónyi távolságra elérhető.

Befektetésként is kiváló választás a közeli Miskolci Egyetemnek köszönhetően stabil bérlői kör biztosított. A lakás szobái jól elkülöníthetők, így akár külön-külön is bérbe adhatók.

Parkolás díjmentesen megoldható az épület előtt.
Központi helyen fekszik az ingatlan. Iskola, óvoda, bolt, tömegközlekedés, autópálya 5 percen belül elérhető.
OTP Banki hátterünknek köszönhetően finanszírozási igényekben (pl. Otthon Start Hitelprogram , Babaváró, Falusi CSOK, CSOK Plusz, Lakáshitel, Személyi kölcsön stb.), illetve biztosítások tekintetében is díjmentesen, soron kívüli ügyintézéssel segítem ügyfeleim! Referenciaszám: M314048

Referencia szám: M314048

Hirdetés feltöltve: 2025. 10. 03. Utoljára módosítva: 2025. 10. 03.

3 szobás téglalakások ára Miskolcon

Ebből az összehasonlításból megtudhatod, hogyan viszonyul a lakás ára a környékbeli téglalakások átlagos árához. Ez nem azt jelenti, hogy ennyivel olcsóbb vagy drágább, mint amennyit a lakás ér, hanem hogy ennyivel tér el a környékbeli átlagtól.

Ennek a m² ára
Miskolc m² ár
533 e Ft
710 e Ft 25%
Ennek az ára
Miskolc átlagár
54.9 M Ft m Ft
54.9 m Ft 0%

Az ingatlan elhelyezkedése

Cím: Miskolc, 4. emelet

Eladó téglalakások a környékről

Eladó téglalakás
Eladó téglalakás

Kazincbarcika

18.8 M Ft
1 + 2 szoba
50 m2
Eladó téglalakás
Eladó téglalakás

Miskolc

64 M Ft
3 szoba
60 m2
Eladó téglalakás
Eladó téglalakás

Miskolc

59.99 M Ft
3 szoba
83 m2
Eladó téglalakás
Eladó téglalakás

Miskolc

69.9 M Ft
3 + 2 szoba
105 m2
Eladó téglalakás
Eladó téglalakás

Putnok

13.6 M Ft
3 szoba
123 m2
Eladó téglalakás
Eladó téglalakás

Miskolc

49.9 M Ft
3 szoba
122 m2
Eladó téglalakás
Eladó téglalakás

Miskolc

39.9 M Ft
2 szoba
77 m2
Eladó téglalakás
Eladó téglalakás

Ózd

10.4 M Ft
2 szoba
48 m2
Eladó téglalakás
Eladó téglalakás

Ózd

4.99 M Ft
2 szoba
55 m2
Eladó téglalakás
Eladó téglalakás

Miskolc

24.9 M Ft
2 szoba
52 m2
Eladó téglalakás
Eladó téglalakás

Miskolc

138 M Ft
4 szoba
110 m2
Eladó téglalakás
Eladó téglalakás

Miskolc

79.4 M Ft
3 + 2 szoba
116 m2
Eladó téglalakás
Eladó téglalakás

Borsodnádasd

7.9 M Ft
4 szoba
113 m2
Eladó téglalakás
Eladó téglalakás

Miskolc

39 M Ft
2 szoba
65 m2
Eladó téglalakás
Eladó téglalakás

Miskolc

64 M Ft
3 szoba
60 m2
Eladó téglalakás
Eladó téglalakás

Miskolc

69.9 M Ft
3 + 2 szoba
105 m2
Eladó téglalakás
Eladó téglalakás

Miskolc

59 M Ft
3 szoba
60 m2
Eladó téglalakás
Eladó téglalakás

Ózd

9.99 M Ft
2 szoba
58 m2
Eladó téglalakás
Eladó téglalakás

Miskolc

41.9 M Ft
3 szoba
81 m2
Eladó téglalakás
Eladó téglalakás

Miskolc

49 M Ft
2 szoba
51 m2
Eladó téglalakás
Eladó téglalakás

Miskolc

25 M Ft
2 + 1 szoba
55 m2
Eladó téglalakás
Eladó téglalakás

Miskolc

29.5 M Ft
2 szoba
65 m2
Eladó téglalakás
Eladó téglalakás

Miskolc

56.88 M Ft
3 szoba
76 m2
Eladó téglalakás
Eladó téglalakás

Tiszaújváros, Verebély utca

23.5 M Ft
1 + 1 szoba
39 m2

Falusi CSOK ingatlanok

Eladó családi ház
Eladó családi ház

Csokonyavisonta

20.5 M Ft
5 szoba
124 m2
Eladó családi ház
Eladó családi ház

Tápióbicske

37.5 M Ft
2 szoba
70 m2
Eladó családi ház
Eladó családi ház

Nagybajom

11.9 M Ft
2 szoba
70 m2
Eladó családi ház
Eladó családi ház

Karád

39.95 M Ft
3 szoba
100 m2
Eladó családi ház
Eladó családi ház

Mezőkeresztes

23.9 M Ft
2 + 1 szoba
82 m2
Eladó családi ház
Eladó családi ház

Bakonya

48 M Ft
3 szoba
168 m2
Eladó családi ház
Eladó családi ház

Hernádnémeti

19.9 M Ft
2 szoba
62 m2
Eladó családi ház
Eladó családi ház

Szob, Petőfi Sándor utca

23.5 M Ft
2 szoba
68 m2