Eladó téglalakás
Kiskunlacháza, 1. emelet

+ 8 kép 1/11
39 000 000 Ft39 M Ft 1 000 000 Ft/m2
2 szoba
39 m2
1. emelet
építés éve:2025

Részletes adatok

Fűtés: Egyéb
Extrák: Lift
Energetikai besorolás: Nem adta meg a hirdető

Az OTP Bank lakáshitel ajánlataFizetett hirdetés

+36 30 641
Csík Zsolt
referens

Érdekel az OTP Bank kedvezményes lakáshitel ajánlata? *

* A kérdésre „Igen” válasz bejelölése esetén, az „Üzenet küldése” gombra kattintva kijelentem, hogy az OTP Bank Nyrt. Adatkezelési tájékoztatójának tartalmát megismertem és tudomásul vettem.

Eladó téglalakás leírása

Kiskunlacháza központi részén, kínálom megvételre új-építésű 31 lakásos liftes társasház, földszinti 39 nm-es lakását!

Kiskunlacházán most épülő társasház első emelet 14-es. lakása eladó!

A társasházban 31 db lakás épül 27 és 54 nm között három szinten,
lakások 2025 második felében kerülnek átadásra.
Nézze meg a többi lakást is a hirdetésem között!

Műszaki tartalom:
-alap vasalt beton,
-falazat phorothetm tégla
-monolit beton födém
-nyílászáró 3rtg üvegezett műanyag szerkezetű
-tető fedése beton cserép
-fűtés hőszivattyú, padlófűtés hőleadással
-15 cm Dryvit rendszerű homlokzatszigetelés
-választható hideg és meleg burkolat.
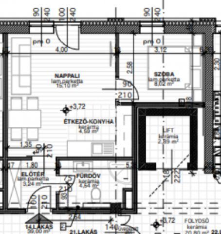
A lakás 39 nm, helyiségei:előtér 3,24 nm, fürdőszoba 4,84 nm, szoba 10,83 nm, étkező/konyha 2,67 nm, nappali 16,42 nm.
A lakáshoz vásárolható teremgarázshely melynek ára 3.500.000 ft, vagy földfelszíni parkolóhely melynek ára 1.500.000 ft, (megvásárlása nem kötelező), valamint tároló helyiség is vásárolható.
A társasházban 31 db lakás kerül megépítésre, a földszinti és első emeleti lakások erkély nélküliek, a 2 emeleti lakások terasz kapcsolattal rendelkeznek.

Amennyiben kérdése merül fel, vagy megtekintené a lakást keressen bizalommal!

FINANSZÍROZÁS:
Nálunk mindent egy helyen intézhet:
- hivatalos ingatlanközvetítés;
- szakszerű jogi képviselet;
- profi CSOK-PLUSZ, és hitelügyintézés: 16 Bank, több mint 100 konstrukció;

VÁROM MEGTISZTELŐ HÍVÁSÁT!

A részletes adatvédelmi tájékoztató folyamatosan elérhető a gdn-ingatlan adatvedelmi oldalon. ...TOVÁBBI, TÖBBEZRES INGATLAN KÍNÁLAT: www.gdn-ingatlan.hu - GDN azonosító: 379558

Hirdetés feltöltve: 2025. 03. 13. Utoljára módosítva: 2025. 10. 01.

2 szobás téglalakások ára Kiskunlacházán

Ebből az összehasonlításból megtudhatod, hogyan viszonyul a lakás ára a környékbeli téglalakások átlagos árához. Ez nem azt jelenti, hogy ennyivel olcsóbb vagy drágább, mint amennyit a lakás ér, hanem hogy ennyivel tér el a környékbeli átlagtól.

Ennek a m² ára
Kiskunlacháza m² ár
1000 e Ft
1042 e Ft 4%
Ennek az ára
Kiskunlacháza átlagár
39 M Ft m Ft
43.6 m Ft 11%

Az ingatlan elhelyezkedése

Cím: Kiskunlacháza, 1. emelet

Eladó téglalakások a környékről

Eladó téglalakás
Eladó téglalakás

Göd

29.5 M Ft
2 szoba
47 m2
Eladó téglalakás
Eladó téglalakás

Göd

44.5 M Ft
3 szoba
70 m2
Eladó téglalakás
Eladó téglalakás

Kiskunlacháza

40.26 M Ft
1 szoba
35 m2
Eladó téglalakás
Eladó téglalakás

Göd

66.9 M Ft
4 szoba
94 m2
Eladó téglalakás
Eladó téglalakás

Göd

28.9 M Ft
2 szoba
44 m2
Eladó téglalakás
Eladó téglalakás

Kiskunlacháza

32.45 M Ft
1 szoba
30 m2
Eladó téglalakás
Eladó téglalakás

Kiskunlacháza

38.764 M Ft
1 szoba
35 m2
Eladó téglalakás
Eladó téglalakás

Kiskunlacháza

45.232 M Ft
2 szoba
41 m2
Eladó téglalakás
Eladó téglalakás

Göd

42.9 M Ft
3 szoba
61 m2
Eladó téglalakás
Eladó téglalakás

Kiskunlacháza

40.26 M Ft
1 szoba
37 m2
Eladó téglalakás
Eladó téglalakás

Kiskunlacháza

72 M Ft
4 szoba
90 m2
Eladó téglalakás
Eladó téglalakás

Göd

90 M Ft
2 szoba
44 m2
Eladó téglalakás
Eladó téglalakás

Göd, Oázis utca

27.9 M Ft
2 szoba
44 m2
Eladó téglalakás
Eladó téglalakás

Göd

44.5 M Ft
3 szoba
73 m2
Eladó téglalakás
Eladó téglalakás

Göd

42.5 M Ft
3 szoba
65 m2
Eladó téglalakás
Eladó téglalakás

Kiskunlacháza

32.45 M Ft
1 szoba
30 m2
Eladó téglalakás
Eladó téglalakás

Kiskunlacháza

45.232 M Ft
2 szoba
41 m2
Eladó téglalakás
Eladó téglalakás

Göd

29.5 M Ft
2 szoba
44 m2
Eladó téglalakás
Eladó téglalakás

Göd

28.9 M Ft
2 szoba
46 m2
Eladó téglalakás
Eladó téglalakás

Kiskunlacháza

63.88 M Ft
3 szoba
53 m2
Eladó téglalakás
Eladó téglalakás

Göd

46.5 M Ft
3 szoba
69 m2
Eladó téglalakás
Eladó téglalakás

Kiskunlacháza

40.337 M Ft
1 szoba
36 m2
Eladó téglalakás
Eladó téglalakás

Göd

46.5 M Ft
4 szoba
72 m2
Eladó téglalakás
Eladó téglalakás

Kiskunlacháza

42.57 M Ft
2 szoba
38 m2

Falusi CSOK ingatlanok

Eladó családi ház
Eladó családi ház

Bábolna

90.3 M Ft
5 szoba
100 m2
Eladó családi ház
Eladó családi ház

Gönyű

94.077 M Ft
4 szoba
105 m2
Eladó téglalakás
Eladó téglalakás

Balatonszemes, Ady Endre u

58.9 M Ft
1 szoba
36 m2
Eladó téglalakás
Eladó téglalakás

Tokaj

192.5 M Ft
3 szoba
90 m2
Eladó családi ház
Eladó családi ház

Erdőbénye

69.5 M Ft
4 szoba
148 m2
Eladó ikerház
Eladó ikerház

Balatonkenese

84.99 M Ft
3 szoba
76 m2
Eladó családi ház
Eladó családi ház

Tápiószőlős

69 M Ft
3 szoba
77 m2
Eladó családi ház
Eladó családi ház

Somogyszil

27.9 M Ft
3 szoba
140 m2