Aerogate Homes

Eladó téglalakás
Kecskemét, földszint

+ 12 kép 1/15
104 900 000 Ft104.9 M Ft 1 219 767 Ft/m2
4 szoba
86 m2
földszint
építés éve:2018

Részletes adatok

Állapot: Újszerű
Fűtés: Gázkazán
Energetikai besorolás: Nem adta meg a hirdető

Az OTP Bank lakáshitel ajánlataFizetett hirdetés

+36 70 634
Bagó Diána
HOUSE36 Ingatlanbázis Kft.

Érdekel az OTP Bank kedvezményes lakáshitel ajánlata? *

* A kérdésre „Igen” válasz bejelölése esetén, az „Üzenet küldése” gombra kattintva kijelentem, hogy az OTP Bank Nyrt. Adatkezelési tájékoztatójának tartalmát megismertem és tudomásul vettem.

Eladó téglalakás leírása

Exkluzív, földszinti kertkapcsolatos lakás eladó egy közkedvelt, modern lakóparkban.
Ha a minőség, a kényelem és az elegancia fontos Önnek, akkor ez az ingatlan ideális választás.
A belső kialakítás során csak prémium minőségű anyagokat használtak.
A nagy üvegfelületeknek köszönhetően a lakás rendkívül világos,és több szobából közvetlen kijárat vezet a saját használatú, gondozott kertbe.
A lakáshoz tartozik egy teremgarázs, ami további 10.000.000 Ft és egy 5 m2 tároló ami 2.500.000 Ft.

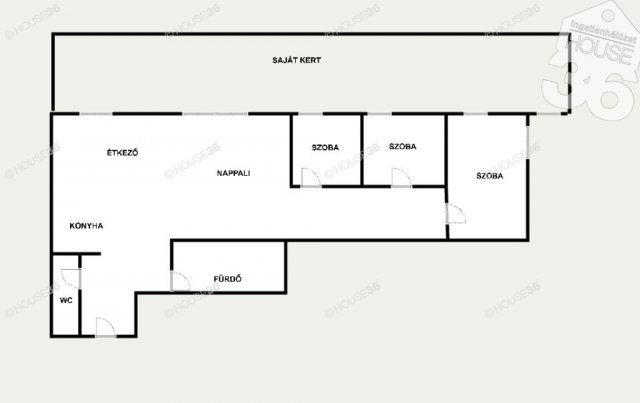
Jellemzői :
- 86 m2 lakótér, nappali + 3 külön nyíló szoba
- fürdőszoba káddal és tusolóval
- klíma
- alumínium nyílászárók, elektromos redőnnyel, szúnyoghálóval felszerelve
- kertkapcsolat 160 m2
- öntözőrendszer
- teremgarázs
- zárható tároló 5 m2

Figyelem az adatlap megbízónktól kapott adatok alapján készült, pontosságáért felelősséget nem tudunk vállalni!
Hívjon, szolgáltatásaink keresőink részére ingyenesek!
Az iroda legfrissebb, aktuális kínálatát a HOUSE36 saját weboldalán találja.

Hirdetés feltöltve: 2025. 12. 01. Utoljára módosítva: 2026. 01. 10.

4 szobás téglalakások ára Kecskeméten

Ebből az összehasonlításból megtudhatod, hogyan viszonyul a lakás ára a környékbeli téglalakások átlagos árához. Ez nem azt jelenti, hogy ennyivel olcsóbb vagy drágább, mint amennyit a lakás ér, hanem hogy ennyivel tér el a környékbeli átlagtól.

Ennek a m² ára
Kecskemét m² ár
1220 e Ft
978 e Ft -25%
Ennek az ára
Kecskemét átlagár
104.9 M Ft m Ft
94.9 m Ft -11%

Az ingatlan elhelyezkedése

Cím: Kecskemét, földszint

Eladó téglalakások a környékről

Eladó téglalakás
Eladó téglalakás

Baja, Jelky András tér

65 M Ft
3 szoba
75 m2
Eladó téglalakás
Eladó téglalakás

Kecskemét, Wesselényi utca

125 M Ft
3 szoba
141 m2
Eladó téglalakás
Eladó téglalakás

Baja

55 M Ft
4 szoba
68 m2
Eladó téglalakás
Eladó téglalakás

Felsőszentiván

23.9 M Ft
3 szoba
76 m2
Eladó téglalakás
Eladó téglalakás

Bácsalmás

7.49 M Ft
3 szoba
77 m2
Eladó téglalakás
Eladó téglalakás

Baja, Jelky András tér

65 M Ft
3 szoba
75 m2
Eladó téglalakás
Eladó téglalakás

Kecskemét

79.9 M Ft
2 + 2 szoba
90 m2
Eladó téglalakás
Eladó téglalakás

Baja

32.99 M Ft
2 szoba
70 m2
Eladó téglalakás
Eladó téglalakás

Bácsalmás

16.49 M Ft
2 + 1 szoba
65 m2
Eladó téglalakás
Eladó téglalakás

Kecskemét

86 M Ft
2 szoba
58 m2
Eladó téglalakás
Eladó téglalakás

Kecskemét

120 M Ft
4 + 1 szoba
132 m2
Eladó téglalakás
Eladó téglalakás

Kecskemét

69.99 M Ft
2 szoba
81 m2
Eladó téglalakás
Eladó téglalakás

Kecskemét, Kossuth-város, Bakócz Tamás utca 1

85.7 M Ft
3 szoba
62 m2
Eladó téglalakás
Eladó téglalakás

Kiskunfélegyháza

27 M Ft
4 szoba
101 m2
Eladó téglalakás
Eladó téglalakás

Kecskemét, Kossuth-város, Bakócz Tamás utca 1

72.9 M Ft
2 szoba
54 m2
Eladó téglalakás
Eladó téglalakás

Bácsalmás

7.49 M Ft
3 szoba
77 m2
Eladó téglalakás
Eladó téglalakás

Kecskemét, Kossuth-város, Bakócz Tamás utca 1

77 M Ft
2 szoba
57 m2
Eladó téglalakás
Eladó téglalakás

Kecskemét

24.9 M Ft
1 szoba
37 m2
Eladó téglalakás
Eladó téglalakás

Kecskemét, Kossuth-város, Bakócz Tamás utca 1

88.4 M Ft
3 szoba
67 m2
Eladó téglalakás
Eladó téglalakás

Kecskemét, Kossuth-város, Bakócz Tamás utca 1

82.5 M Ft
3 szoba
66 m2
Eladó téglalakás
Eladó téglalakás

Baja, Wesselényi utca

149.5 M Ft
1 szoba
620 m2
Eladó téglalakás
Eladó téglalakás

Baja

38.9 M Ft
3 szoba
92 m2
Eladó téglalakás
Eladó téglalakás

Kecskemét

120 M Ft
4 + 1 szoba
132 m2
Eladó téglalakás
Eladó téglalakás

Baja

39.7 M Ft
3 szoba
51 m2

Falusi CSOK ingatlanok

Eladó családi ház
Eladó családi ház

Palkonya

137 M Ft
6 szoba
160 m2
Eladó családi ház
Eladó családi ház

Sümegcsehi

119 M Ft
5 szoba
237 m2
Eladó családi ház
Eladó családi ház

Ádánd

57.9 M Ft
5 szoba
190 m2
Eladó ikerház
Eladó ikerház

Seregélyes

39.9 M Ft
4 szoba
150 m2
Eladó családi ház
Eladó családi ház

Szil

25 M Ft
2 szoba
90 m2
Eladó családi ház
Eladó családi ház

Hobol

50 M Ft
4 szoba
125 m2
Eladó családi ház
Eladó családi ház

Hosszúpereszteg

27.9 M Ft
4 szoba
121 m2
Eladó családi ház
Eladó családi ház

Vásárosdombó

14.99 M Ft
2 szoba
69 m2