Avico Greentop

Eladó téglalakás
Kecskemét, földszint

+ 12 kép 1/15
104 900 000 Ft104.9 M Ft 1 219 767 Ft/m2
4 szoba
86 m2
földszint
építés éve:2018

Részletes adatok

Állapot: Újszerű
Fűtés: Gázkazán
Energetikai besorolás: Nem adta meg a hirdető

Az OTP Bank lakáshitel ajánlataFizetett hirdetés

+36 70 421
Szécsényi Dóra
HOUSE36 Ingatlanbázis Kft.

Érdekel az OTP Bank kedvezményes lakáshitel ajánlata? *

* A kérdésre „Igen” válasz bejelölése esetén, az „Üzenet küldése” gombra kattintva kijelentem, hogy az OTP Bank Nyrt. Adatkezelési tájékoztatójának tartalmát megismertem és tudomásul vettem.

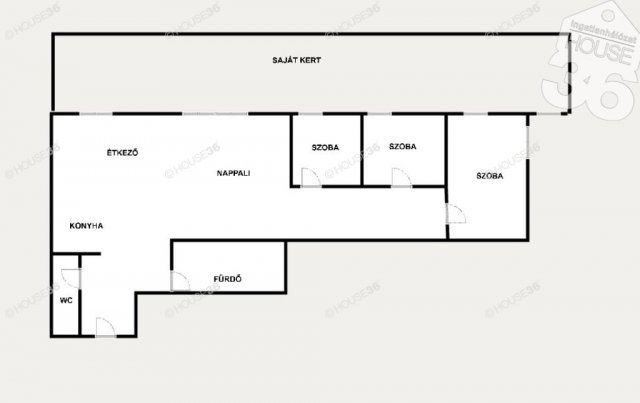
Eladó téglalakás leírása

Kecskemét-Hollandfaluban eladó egyföldszinti kertkapcsolatos lakás egy közkedvelt, modern lakóparkban.
Ha a minőség, a kényelem és az elegancia fontos Önnek, akkor ez az ingatlan ideális választás.
A belső kialakítás során csak prémium minőségű anyagokat használtak.
A nagy üvegfelületeknek köszönhetően a lakás rendkívül világos,és több szobából közvetlen kijárat vezet a saját használatú, gondozott kertbe.
A lakáshoz tartozik egy teremgarázs, ami további 10.000.000 Ft és egy 5 m2 tároló ami 2.500.000 Ft.

Jellemzői :
- 86 m2 lakótér, nappali + 3 külön nyíló szoba
- fürdőszoba káddal és tusolóval
- klíma
- alumínium nyílászárók, elektromos redőnnyel, szúnyoghálóval felszerelve
- kertkapcsolat 160 m2
- öntözőrendszer
- teremgarázs
- zárható tároló 5 m2

Figyelem az adatlap megbízónktól kapott adatok alapján készült, pontosságáért felelősséget nem tudunk vállalni!
Hívjon, szolgáltatásaink keresőink részére ingyenesek!
Az iroda legfrissebb, aktuális kínálatát a HOUSE36 saját weboldalán találja!

Hirdetés feltöltve: 2025. 11. 27. Utoljára módosítva: 2025. 12. 25.

4 szobás téglalakások ára Kecskeméten

Ebből az összehasonlításból megtudhatod, hogyan viszonyul a lakás ára a környékbeli téglalakások átlagos árához. Ez nem azt jelenti, hogy ennyivel olcsóbb vagy drágább, mint amennyit a lakás ér, hanem hogy ennyivel tér el a környékbeli átlagtól.

Ennek a m² ára
Kecskemét m² ár
1220 e Ft
972 e Ft -26%
Ennek az ára
Kecskemét átlagár
104.9 M Ft m Ft
95.9 m Ft -9%

Az ingatlan elhelyezkedése

Cím: Kecskemét, földszint

Eladó téglalakások a környékről

Eladó téglalakás
Eladó téglalakás

Baja, Jelky András tér

65 M Ft
3 szoba
75 m2
Eladó téglalakás
Eladó téglalakás

Kecskemét, Kossuth-város, Bakócz Tamás utca 1

86.5 M Ft
3 szoba
65 m2
Eladó téglalakás
Eladó téglalakás

Bácsalmás

7.49 M Ft
3 szoba
77 m2
Eladó téglalakás
Eladó téglalakás

Baja

43.2 M Ft
3 szoba
80 m2
Eladó téglalakás
Eladó téglalakás

Bácsalmás

7.49 M Ft
3 szoba
77 m2
Eladó téglalakás
Eladó téglalakás

Kiskunfélegyháza

27 M Ft
4 szoba
101 m2
Eladó téglalakás
Eladó téglalakás

Kecskemét

79.9 M Ft
2 + 2 szoba
90 m2
Eladó téglalakás
Eladó téglalakás

Baja

77.9 M Ft
5 szoba
200 m2
Eladó téglalakás
Eladó téglalakás

Bácsalmás

7.49 M Ft
3 szoba
77 m2
Eladó téglalakás
Eladó téglalakás

Ballószög

49.99 M Ft
1 szoba
48 m2
Eladó téglalakás
Eladó téglalakás

Baja

39.7 M Ft
3 szoba
51 m2
Eladó téglalakás
Eladó téglalakás

Baja, Wesselényi utca

149.5 M Ft
1 szoba
620 m2
Eladó téglalakás
Eladó téglalakás

Baja

38.9 M Ft
3 szoba
92 m2
Eladó téglalakás
Eladó téglalakás

Kecskemét

64.5 M Ft
1 szoba
37 m2
Eladó téglalakás
Eladó téglalakás

Kecskemét

79.9 M Ft
2 + 2 szoba
90 m2
Eladó téglalakás
Eladó téglalakás

Kecskemét

120 M Ft
4 + 1 szoba
132 m2
Eladó téglalakás
Eladó téglalakás

Kecskemét, Kossuth-város, Bakócz Tamás utca 1

88.4 M Ft
3 szoba
67 m2
Eladó téglalakás
Eladó téglalakás

Baja

149.5 M Ft
1 szoba
620 m2
Eladó téglalakás
Eladó téglalakás

Kecskemét

69.99 M Ft
2 szoba
81 m2
Eladó téglalakás
Eladó téglalakás

Baja

55 M Ft
4 szoba
68 m2
Eladó téglalakás
Eladó téglalakás

Kecskemét

24.9 M Ft
1 szoba
37 m2
Eladó téglalakás
Eladó téglalakás

Baja, Jelky András tér

65 M Ft
3 szoba
75 m2
Eladó téglalakás
Eladó téglalakás

Kecskemét, Kossuth-város, Bakócz Tamás utca 1

81 M Ft
3 szoba
60 m2
Eladó téglalakás
Eladó téglalakás

Kecskemét, Kossuth-város, Bakócz Tamás utca 1

77 M Ft
2 szoba
57 m2

Falusi CSOK ingatlanok

Eladó családi ház
Eladó családi ház

Mezőzombor

19.99 M Ft
3 szoba
91 m2
Eladó családi ház
Eladó családi ház

Enese

82.9 M Ft
4 szoba
90 m2
Eladó családi ház
Eladó családi ház

Mezőfalva

39 M Ft
3 szoba
77 m2
Eladó családi ház
Eladó családi ház

Abaújszántó

19.99 M Ft
3 szoba
84 m2
Eladó családi ház
Eladó családi ház

Háromfa, Kossuth

22.4 M Ft
139 m2
Eladó családi ház
Eladó családi ház

Hács

11.43 M Ft
4 + 1 szoba
82 m2
Eladó családi ház
Eladó családi ház

Törtel

39 M Ft
1 + 1 szoba
118 m2
Eladó családi ház
Eladó családi ház

Nemesbőd

87 M Ft
5 szoba
120 m2