Astora Olive Club House

Eladó téglalakás
Kecskemét, földszint

+ 1 kép 1/4
72 000 000 Ft72 M Ft 288 000 Ft/m2
5 szoba
250 m2
földszint

Részletes adatok

Fűtés: Egyéb
Energetikai besorolás: Nem adta meg a hirdető

Az OTP Bank lakáshitel ajánlataFizetett hirdetés

+36 70 389
Várnagy Krisztina
HOUSE36 Ingatlanbázis Kft.

Érdekel az OTP Bank kedvezményes lakáshitel ajánlata? *

* A kérdésre „Igen” válasz bejelölése esetén, az „Üzenet küldése” gombra kattintva kijelentem, hogy az OTP Bank Nyrt. Adatkezelési tájékoztatójának tartalmát megismertem és tudomásul vettem.

Eladó téglalakás leírása

Kecskemét történelmi belvárosában eladó egy igazán különleges ingatlan!

Az épület kiváló befektetés a belvárost kedvelők és a felújítást kedvelők számára.
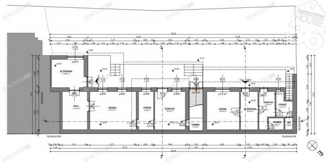
Az épület 2 hrsz - on van bejegyezve. Egy nagyobb, de akár 3 kisebb ingatlan is kialakítható a jelenlegi épületrészekből, vagy akár el is bontható.
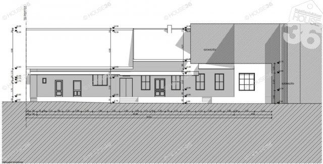
Az épület földszinti része 135,4 m2, és 3 bejárattal rendelkezik, az emelet jelenleg 100 m2, összesen 235 m2!
Építési tervekkel, önálló, teljeskörű tulajdonjog használattal a kb 300 m2 - es udvarra.
2 beállási lehetőséggel.
Ha felkeltette érdeklődését keressen meg és megmutatom a lehetőségeket.

​Az adatok tájékoztató jellegűek!
FIGYELEM! Az adatok Megbízónktól kapott információk alapján készültek, pontosságukért felelősséget nem tudunk vállalni!
Hívjon, szolgáltatásaink Vevőink részére díjmentesek!
Amennyiben eladó vagy kiadó ingatlana van, kérem forduljon hozzám bizalommal!
Az iroda legfrissebb, aktuális kínálatát a HOUSE36 saját weboldalán találja!

Hirdetés feltöltve: 2025. 10. 03. Utoljára módosítva: 2025. 11. 02.

5 szobás téglalakások ára Kecskeméten

Ebből az összehasonlításból megtudhatod, hogyan viszonyul a lakás ára a környékbeli téglalakások átlagos árához. Ez nem azt jelenti, hogy ennyivel olcsóbb vagy drágább, mint amennyit a lakás ér, hanem hogy ennyivel tér el a környékbeli átlagtól.

Ennek a m² ára
Kecskemét m² ár
288 e Ft
734 e Ft 61%
Ennek az ára
Kecskemét átlagár
72 M Ft m Ft
100.8 m Ft 29%

Az ingatlan elhelyezkedése

Cím: Kecskemét, földszint

Eladó téglalakások a környékről

Eladó téglalakás
Eladó téglalakás

Kecskemét

120 M Ft
4 + 1 szoba
132 m2
Eladó téglalakás
Eladó téglalakás

Baja

180 M Ft
9 + 4 szoba
318 m2
Eladó téglalakás
Eladó téglalakás

Kecskemét, Bethlen-város, Wesselényi utca

125 M Ft
3 szoba
141 m2
Eladó téglalakás
Eladó téglalakás

Kecskemét

99 M Ft
5 szoba
129 m2
Eladó téglalakás
Eladó téglalakás

Baja, Jelky András tér

65 M Ft
3 szoba
75 m2
Eladó téglalakás
Eladó téglalakás

Kecskemét

120 M Ft
4 + 1 szoba
132 m2
Eladó téglalakás
Eladó téglalakás

Baja, Jelky András tér

65 M Ft
3 szoba
75 m2
Eladó téglalakás
Eladó téglalakás

Baja

43.2 M Ft
3 szoba
80 m2
Eladó téglalakás
Eladó téglalakás

Bácsalmás

16.49 M Ft
2 + 1 szoba
65 m2
Eladó téglalakás
Eladó téglalakás

Kecskemét

26 M Ft
1 szoba
37 m2
Eladó téglalakás
Eladó téglalakás

Kecskemét, Kossuth-város, Bakócz Tamás utca 1

85.7 M Ft
3 szoba
62 m2
Eladó téglalakás
Eladó téglalakás

Baja

41.9 M Ft
4 szoba
111 m2
Eladó téglalakás
Eladó téglalakás

Bácsalmás

7.49 M Ft
3 szoba
77 m2
Eladó téglalakás
Eladó téglalakás

Kecskemét, Kossuth-város, Bakócz Tamás utca 1

82.5 M Ft
3 szoba
66 m2
Eladó téglalakás
Eladó téglalakás

Kecskemét, Kossuth-város, Bakócz Tamás utca 1

81 M Ft
3 szoba
60 m2
Eladó téglalakás
Eladó téglalakás

Felsőszentiván

23.9 M Ft
3 szoba
76 m2
Eladó téglalakás
Eladó téglalakás

Kecskemét, Kossuth-város, Bakócz Tamás utca 1

88.4 M Ft
3 szoba
67 m2
Eladó téglalakás
Eladó téglalakás

Baja

77.9 M Ft
5 szoba
200 m2
Eladó téglalakás
Eladó téglalakás

Baja

55 M Ft
4 szoba
68 m2
Eladó téglalakás
Eladó téglalakás

Bácsalmás

35.99 M Ft
3 szoba
120 m2
Eladó téglalakás
Eladó téglalakás

Bácsalmás

7.49 M Ft
3 szoba
77 m2
Eladó téglalakás
Eladó téglalakás

Baja, Wesselényi utca

149.5 M Ft
1 szoba
620 m2
Eladó téglalakás
Eladó téglalakás

Bácsalmás

11.99 M Ft
2 szoba
46 m2
Eladó téglalakás
Eladó téglalakás

Kecskemét, Kossuth-város, Bakócz Tamás utca 1

86.5 M Ft
3 szoba
65 m2

Falusi CSOK ingatlanok

Eladó családi ház
Eladó családi ház

Magyarszék

48.5 M Ft
3 + 1 szoba
86 m2
Eladó családi ház
Eladó családi ház

Ónod, Kossuth út 10

27.499 M Ft
3 + 2 szoba
120 m2
Eladó családi ház
Eladó családi ház

Kenyeri

21.8 M Ft
2 szoba
75 m2
Eladó családi ház
Eladó családi ház

Tiszaalpár

29 M Ft
4 szoba
132 m2
Eladó családi ház
Eladó családi ház

Villány

65 M Ft
3 szoba
95 m2
Eladó ikerház
Eladó ikerház

Táborfalva

49.9 M Ft
4 szoba
54 m2
Eladó családi ház
Eladó családi ház

Sárosd

21.9 M Ft
3 szoba
86 m2
Eladó családi ház
Eladó családi ház

Sárosd

21.9 M Ft
3 szoba
86 m2