Eladó téglalakás
Kecskemét, 2. emelet

+ 4 kép 1/7
90 900 000 Ft90.9 M Ft 882 524 Ft/m2
3 szoba
103 m2
2. emelet

Részletes adatok

Fűtés: Házközponti egyedi méréssel
Parkolás: Garázs
Közmű: Víz, Gáz, Villany, Csatorna
Energetikai besorolás: Nem adta meg a hirdető

Az OTP Bank lakáshitel ajánlataFizetett hirdetés

+36 30 341
B. Kocsis Zsuzsa
referens

Érdekel az OTP Bank kedvezményes lakáshitel ajánlata? *

* A kérdésre „Igen” válasz bejelölése esetén, az „Üzenet küldése” gombra kattintva kijelentem, hogy az OTP Bank Nyrt. Adatkezelési tájékoztatójának tartalmát megismertem és tudomásul vettem.

Eladó téglalakás leírása

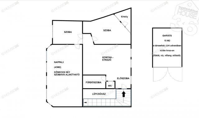
Kecskemét szívében, kiváló lokációval kínálunk eladásra egy 103 m²-es, 2. emeleti, erkélyes, téglaépítésű lakást, amelyhez külön helyrajzi számon nyilvántartott, 15 m²-es, fűtött garázs is tartozik (+13 M Ft).

Főbb jellemzők:
szigetelt, tégla épület, rendezett és csendes lépcsőház, barátságos lakóközösség
nappali (43 m²), amelyből akár 2 külön szoba is kialakítható
2 hálószoba
külön fürdőszoba és WC
5 m²-es beépített erkély
2 db klíma
modern műanyag nyílászárók szúnyoghálóval és redőnnyel
3 fázis, kedvező fenntartási költségek

A garázs:
+13 millió Ft
15 m² alapterület
zárt udvarban található
fűtött, villannyal és vízzel ellátott
saját helyrajzi számon, csak a lakással együtt vásárolható meg

Lokáció:
Kecskemét belvárosában, minden elérhető közelségben: üzletek, piac, kórház, bevásárlási lehetőségek
Helyi járatú buszmegálló kb. 50 méterre
Bölcsőde, óvoda, iskola gyalogosan elérhető
A városközpont 5–7 perc sétára

A lakás teljes mértékben hitelezhető, ráadásul igénybe vehető rá a 3%-os Otthon Start hitel is!
Ideális választás családoknak, akik tágas, belvárosi otthont keresnek kiváló adottságokkal.

Hirdetés feltöltve: 2025. 09. 09. Utoljára módosítva: 2025. 09. 18.

3 szobás téglalakások ára Kecskeméten

Ebből az összehasonlításból megtudhatod, hogyan viszonyul a lakás ára a környékbeli téglalakások átlagos árához. Ez nem azt jelenti, hogy ennyivel olcsóbb vagy drágább, mint amennyit a lakás ér, hanem hogy ennyivel tér el a környékbeli átlagtól.

Ennek a m² ára
Kecskemét m² ár
883 e Ft
909 e Ft 3%
Ennek az ára
Kecskemét átlagár
90.9 M Ft m Ft
65.6 m Ft -39%

Az ingatlan elhelyezkedése

Cím: Kecskemét, 2. emelet

Eladó téglalakások a környékről

Eladó téglalakás
Eladó téglalakás

Kecskemét

99 M Ft
5 szoba
129 m2
Eladó téglalakás
Eladó téglalakás

Kecskemét

120 M Ft
4 + 1 szoba
132 m2
Eladó téglalakás
Eladó téglalakás

Kecskemét

75 M Ft
4 szoba
111 m2
Eladó téglalakás
Eladó téglalakás

Kecskemét

120 M Ft
4 + 1 szoba
132 m2
Eladó téglalakás
Eladó téglalakás

Kecskemét

106.9 M Ft
4 szoba
112 m2
Eladó téglalakás
Eladó téglalakás

Kiskunfélegyháza

27 M Ft
4 szoba
101 m2
Eladó téglalakás
Eladó téglalakás

Kecskemét, Mária-város, Bakócz Tamás utca 1

81 M Ft
3 szoba
60 m2
Eladó téglalakás
Eladó téglalakás

Kecskemét

78.9 M Ft
3 szoba
74 m2
Eladó téglalakás
Eladó téglalakás

Baja

77.9 M Ft
5 szoba
200 m2
Eladó téglalakás
Eladó téglalakás

Kecskemét, Bethlen-város, Wesselényi utca

125 M Ft
3 szoba
141 m2
Eladó téglalakás
Eladó téglalakás

Bácsalmás

11.99 M Ft
2 szoba
46 m2
Eladó téglalakás
Eladó téglalakás

Baja, Wesselényi utca

149.5 M Ft
1 szoba
620 m2
Eladó téglalakás
Eladó téglalakás

Helvécia

54 M Ft
2 szoba
65 m2
Eladó téglalakás
Eladó téglalakás

Baja

43.2 M Ft
3 szoba
80 m2
Eladó téglalakás
Eladó téglalakás

Kecskemét

26 M Ft
1 szoba
37 m2
Eladó téglalakás
Eladó téglalakás

Bácsalmás

35.99 M Ft
3 szoba
120 m2
Eladó téglalakás
Eladó téglalakás

Kecskemét

69.9 M Ft
2 + 1 szoba
83 m2
Eladó téglalakás
Eladó téglalakás

Baja, Jelky András tér

65 M Ft
3 szoba
75 m2
Eladó téglalakás
Eladó téglalakás

Baja

41.9 M Ft
4 szoba
111 m2
Eladó téglalakás
Eladó téglalakás

Kecskemét

145 M Ft
3 szoba
79 m2
Eladó téglalakás
Eladó téglalakás

Bácsalmás

7.49 M Ft
3 szoba
77 m2
Eladó téglalakás
Eladó téglalakás

Felsőszentiván

23.9 M Ft
3 szoba
76 m2
Eladó téglalakás
Eladó téglalakás

Kecskemét

86 M Ft
2 szoba
58 m2
Eladó téglalakás
Eladó téglalakás

Kecskemét

26 M Ft
1 szoba
37 m2

Falusi CSOK ingatlanok

Eladó családi ház
Eladó családi ház

Simonfa, Dózsa György utca

16.5 M Ft
1 szoba
40 m2
Eladó családi ház
Eladó családi ház

Kutas

14.6 M Ft
3 szoba
65 m2
Eladó családi ház
Eladó családi ház

Táborfalva

24.9 M Ft
2 + 1 szoba
81 m2
Eladó családi ház
Eladó családi ház

Segesd

3.9 M Ft
2 szoba
65 m2
Eladó családi ház
Eladó családi ház

Bár

89.5 M Ft
4 + 1 szoba
172 m2
Eladó ikerház
Eladó ikerház

Seregélyes

94.9 M Ft
4 szoba
107 m2
Eladó családi ház
Eladó családi ház

Csokonyavisonta

22.9 M Ft
3 szoba
90 m2
Eladó családi ház
Eladó családi ház

Makád

140 M Ft
4 szoba
79 m2