Astora Olive Club House

Eladó téglalakás
Kecskemét, 4. emelet

+ 7 kép 1/10
74 990 000 Ft74.99 M Ft 1 171 719 Ft/m2
3 szoba
64 m2
4. emelet
építés éve:2021

Részletes adatok

Állapot: Újszerű
Fűtés: Házközponti egyedi méréssel
Energetikai besorolás: Nem adta meg a hirdető

Az OTP Bank lakáshitel ajánlataFizetett hirdetés

+36 70 645
Biró Ramóna
HOUSE36 Ingatlanbázis Kft.

Érdekel az OTP Bank kedvezményes lakáshitel ajánlata? *

* A kérdésre „Igen” válasz bejelölése esetén, az „Üzenet küldése” gombra kattintva kijelentem, hogy az OTP Bank Nyrt. Adatkezelési tájékoztatójának tartalmát megismertem és tudomásul vettem.

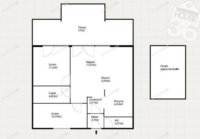
Eladó téglalakás leírása

Kecskeméten a Homokbányán ELADÓ egy igazi gyöngyszem! Nagyszerű kilátás a saját tetőteraszról babérmeggy bokrokkal körbe ültetve, prémium kategóriás felszereltség és kivitelezés. Világos terek, lakberendező által megalkotott elrendezés és egyedi színvilág.

Jellemzői:
- Lakótér: 64 m2
- Terasz: 26 m2
- Nappali + 2 szoba
- Konyha étkezővel és nappali egy térben
- Fürdőszobában zuhanyzó és fürdőkád is
- Külön mosdó
- Hűtő-fűtő klíma
- Liftes társasház
- Tégla építés (2021-ben)
- Elektromos kapu az udvarba való bejutáshoz
- Fedett gépkocsi beálló
- Teljes bútorzattal és felszereltséggel együtt

Figyelem az adatlap megbízónktól kapott adatok alapján készült, pontosságáért felelősséget nem tudunk vállalni!
Szolgáltatásaink Kereső ügyfeleink számára INGYENESEK!
Amennyiben eladó-kiadó ingatlana van vagy finanszírozási megoldást keres, hívjon, megtaláljuk a legjobb lehetőséget Önnek!

A HOUSE36 kínálatában található összes ingatlannal kapcsolatban tudok felvilágosítást nyújtani!
Hívjon bizalommal!
Az iroda legfrissebb, aktuális kínálatát a HOUSE36 saját weboldalán találja!

Hirdetés feltöltve: 2025. 06. 05. Utoljára módosítva: 2025. 11. 11.

3 szobás téglalakások ára Kecskeméten

Ebből az összehasonlításból megtudhatod, hogyan viszonyul a lakás ára a környékbeli téglalakások átlagos árához. Ez nem azt jelenti, hogy ennyivel olcsóbb vagy drágább, mint amennyit a lakás ér, hanem hogy ennyivel tér el a környékbeli átlagtól.

Ennek a m² ára
Kecskemét m² ár
1172 e Ft
952 e Ft -23%
Ennek az ára
Kecskemét átlagár
74.99 M Ft m Ft
69.9 m Ft -7%

Az ingatlan elhelyezkedése

Cím: Kecskemét, 4. emelet

Eladó téglalakások a környékről

Eladó téglalakás
Eladó téglalakás

Baja, Jelky András tér

65 M Ft
3 szoba
75 m2
Eladó téglalakás
Eladó téglalakás

Kecskemét, Kossuth-város, Bakócz Tamás utca 1

77 M Ft
2 szoba
57 m2
Eladó téglalakás
Eladó téglalakás

Kecskemét

120 M Ft
4 + 1 szoba
132 m2
Eladó téglalakás
Eladó téglalakás

Kecskemét, Kossuth-város, Bakócz Tamás utca 1

85.7 M Ft
3 szoba
62 m2
Eladó téglalakás
Eladó téglalakás

Baja

41.9 M Ft
4 szoba
111 m2
Eladó téglalakás
Eladó téglalakás

Kecskemét

79.9 M Ft
2 + 2 szoba
90 m2
Eladó téglalakás
Eladó téglalakás

Kecskemét

69.9 M Ft
2 + 1 szoba
83 m2
Eladó téglalakás
Eladó téglalakás

Baja

41.9 M Ft
3 szoba
64 m2
Eladó téglalakás
Eladó téglalakás

Baja

55 M Ft
4 szoba
68 m2
Eladó téglalakás
Eladó téglalakás

Baja, Jelky András tér

65 M Ft
3 szoba
75 m2
Eladó téglalakás
Eladó téglalakás

Baja, Wesselényi utca

149.5 M Ft
1 szoba
620 m2
Eladó téglalakás
Eladó téglalakás

Kecskemét, Kossuth-város, Bakócz Tamás utca 1

81 M Ft
3 szoba
60 m2
Eladó téglalakás
Eladó téglalakás

Kecskemét

99 M Ft
5 szoba
129 m2
Eladó téglalakás
Eladó téglalakás

Kecskemét

145 M Ft
3 szoba
79 m2
Eladó téglalakás
Eladó téglalakás

Kiskunfélegyháza

27 M Ft
4 szoba
101 m2
Eladó téglalakás
Eladó téglalakás

Kecskemét, Kossuth-város, Bakócz Tamás utca 1

88.4 M Ft
3 szoba
67 m2
Eladó téglalakás
Eladó téglalakás

Bácsalmás

7.49 M Ft
3 szoba
77 m2
Eladó téglalakás
Eladó téglalakás

Kecskemét

26 M Ft
1 szoba
37 m2
Eladó téglalakás
Eladó téglalakás

Bácsalmás

7.49 M Ft
3 szoba
77 m2
Eladó téglalakás
Eladó téglalakás

Kecskemét

120 M Ft
4 + 1 szoba
132 m2
Eladó téglalakás
Eladó téglalakás

Bácsalmás

35.99 M Ft
3 szoba
120 m2
Eladó téglalakás
Eladó téglalakás

Kecskemét

84.2 M Ft
2 szoba
55 m2
Eladó téglalakás
Eladó téglalakás

Kecskemét

79.9 M Ft
2 + 2 szoba
90 m2
Eladó téglalakás
Eladó téglalakás

Kecskemét, Kossuth-város, Bakócz Tamás utca 1

82.5 M Ft
3 szoba
66 m2

Falusi CSOK ingatlanok

Eladó családi ház
Eladó családi ház

Abasár

33.9 M Ft
4 szoba
133 m2
Eladó téglalakás
Eladó téglalakás

Balatonszemes

110.9 M Ft
2 szoba
60 m2
Eladó családi ház
Eladó családi ház

Zalaháshágy

115 M Ft
4 szoba
430 m2
Eladó családi ház
Eladó családi ház

Erdősmecske

32 M Ft
3 szoba
115 m2
Eladó családi ház
Eladó családi ház

Taktaharkány

16.9 M Ft
4 + 1 szoba
140 m2
Eladó családi ház
Eladó családi ház

Kocsér

19.9 M Ft
1 + 2 szoba
73 m2
Eladó téglalakás
Eladó téglalakás

Balatonszemes

244.5 M Ft
3 szoba
107 m2
Eladó családi ház
Eladó családi ház

Tápióság

12.9 M Ft
1 szoba
50 m2