Stay Family Park

Eladó téglalakás
Kazincbarcika, 7. emelet

1/1
28 000 000 Ft28 M Ft 482 759 Ft/m2
2 szoba
58 m2
7. emelet
építés éve:1965

Részletes adatok

Állapot: Átlagos
Fűtés: Távfűtés
Extrák: Lift
Energetikai besorolás: Nem adta meg a hirdető
Zenga Premier

Friss hirdetések, amiket nem találsz meg más ingatlankereső portálon.

Fedezd fel elsőként a Zenga Premier címkés eladó ingatlanokat!

További részletek a zenga.hu-n

Az OTP Bank lakáshitel ajánlataFizetett hirdetés

+36 20 491
Pucsok Hajnalka
referens

Érdekel az OTP Bank kedvezményes lakáshitel ajánlata? *

* A kérdésre „Igen” válasz bejelölése esetén, az „Üzenet küldése” gombra kattintva kijelentem, hogy az OTP Bank Nyrt. Adatkezelési tájékoztatójának tartalmát megismertem és tudomásul vettem.

Eladó téglalakás leírása

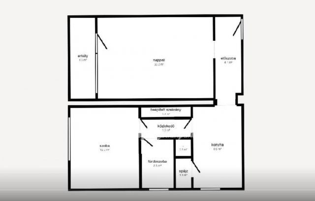
Kazincbarcika központjában, a Pollack Mihály úton eladó egy 2 szobás, 58 m2-es, nagyerkélyes, részben felújított, világos és jó elosztású lakás. Az ingatlanhoz 5 m2-es saját tárolóhelyiség tartozik. A korszerűsítés részeként a kisszoba külső fala szigetelést kapott, a nyílászárók műanyagok, hőszigeteltek, villanybojler került a gáz vízmelegítő helyére, a víz- és szennyvízvezetékek részlegesen cseréltek, a fürdőszoba felújított, a villamos vezetékek a fürdőszobában cserélve voltak. A ház tiszta, rendezett, liftes lépcsőház, kulturált lakóközösséggel. A parkolás könnyen megoldható a ház előtt. Kiváló választás lehet családoknak, fiatal pároknak vagy befektetésre is. A közelben üzletsor, bankok, óvoda, iskola, orvosi rendelő, gyógyszertár, konditerem, buszmegálló, Csónakázó tó. OTTHON START PROGRAM igényelhető! Ingatlanirodánk ügyvédi háttérrel, babaváró hitel, CSOK Plusz, OTTHON START 3%-os hitel, valamint kamatkedvezményes hitel ügyintézésével támogatja ügyfelei ingatlanvásárlását! Érdeklődés esetén hivatkozzon az M316402 referencia számra!

Hirdetés feltöltve: 2025. 11. 02.

2 szobás téglalakások ára Kazincbarcikán

Ebből az összehasonlításból megtudhatod, hogyan viszonyul a lakás ára a környékbeli téglalakások átlagos árához. Ez nem azt jelenti, hogy ennyivel olcsóbb vagy drágább, mint amennyit a lakás ér, hanem hogy ennyivel tér el a környékbeli átlagtól.

Ennek a m² ára
Kazincbarcika m² ár
483 e Ft
427 e Ft -13%
Ennek az ára
Kazincbarcika átlagár
28 M Ft m Ft
23.3 m Ft -20%

Az ingatlan elhelyezkedése

Cím: Kazincbarcika, 7. emelet

Eladó téglalakások a környékről

Eladó téglalakás
Eladó téglalakás

Ózd

10.5 M Ft
2 szoba
53 m2
Eladó téglalakás
Eladó téglalakás

Kazincbarcika

15.9 M Ft
1 szoba
44 m2
Eladó téglalakás
Eladó téglalakás

Kazincbarcika

14.9 M Ft
1 szoba
38 m2
Eladó téglalakás
Eladó téglalakás

Miskolc

49 M Ft
2 szoba
51 m2
Eladó téglalakás
Eladó téglalakás

Kazincbarcika

14.9 M Ft
1 szoba
38 m2
Eladó téglalakás
Eladó téglalakás

Miskolc

138 M Ft
4 szoba
110 m2
Eladó téglalakás
Eladó téglalakás

Kazincbarcika

15.9 M Ft
1 szoba
44 m2
Eladó téglalakás
Eladó téglalakás

Putnok

8.8 M Ft
2 szoba
52 m2
Eladó téglalakás
Eladó téglalakás

Kazincbarcika

14.9 M Ft
1 szoba
38 m2
Eladó téglalakás
Eladó téglalakás

Kazincbarcika

15 M Ft
2 szoba
57 m2
Eladó téglalakás
Eladó téglalakás

Miskolc

59 M Ft
3 szoba
60 m2
Eladó téglalakás
Eladó téglalakás

Kazincbarcika, Május 1 út

21 M Ft
1 szoba
45 m2
Eladó téglalakás
Eladó téglalakás

Tiszaújváros, Verebély utca

23.9 M Ft
1 + 1 szoba
39 m2
Eladó téglalakás
Eladó téglalakás

Miskolc

64 M Ft
3 szoba
60 m2
Eladó téglalakás
Eladó téglalakás

Kazincbarcika

21.8 M Ft
1 + 2 szoba
50 m2
Eladó téglalakás
Eladó téglalakás

Tiszaújváros

60.06 M Ft
2 szoba
68 m2
Eladó téglalakás
Eladó téglalakás

Kazincbarcika

14.9 M Ft
1 szoba
38 m2
Eladó téglalakás
Eladó téglalakás

Miskolc

39.9 M Ft
2 szoba
77 m2
Eladó téglalakás
Eladó téglalakás

Kazincbarcika

18 M Ft
2 szoba
60 m2
Eladó téglalakás
Eladó téglalakás

Kazincbarcika

18 M Ft
2 + 1 szoba
51 m2
Eladó téglalakás
Eladó téglalakás

Kazincbarcika

15.9 M Ft
1 szoba
44 m2
Eladó téglalakás
Eladó téglalakás

Kazincbarcika

15.9 M Ft
1 szoba
44 m2
Eladó téglalakás
Eladó téglalakás

Sárospatak, Tompa Mihály utca

23.9 M Ft
2 szoba
62 m2
Eladó téglalakás
Eladó téglalakás

Ózd

4.99 M Ft
2 szoba
55 m2

Falusi CSOK ingatlanok

Eladó családi ház
Eladó családi ház

Mályi

89.9 M Ft
4 szoba
100 m2
Eladó családi ház
Eladó családi ház

Mezőkeresztes

23.9 M Ft
2 + 1 szoba
82 m2
Eladó családi ház
Eladó családi ház

Nagyberény

24.9 M Ft
3 szoba
62 m2
Eladó családi ház
Eladó családi ház

Egyed

24.9 M Ft
2 + 1 szoba
56 m2
Eladó családi ház
Eladó családi ház

Tápióság

12.9 M Ft
1 szoba
50 m2
Eladó családi ház
Eladó családi ház

Onga

65 M Ft
5 szoba
168 m2
Eladó családi ház
Eladó családi ház

Bezenye

84.9 M Ft
4 + 1 szoba
145 m2
Eladó családi ház
Eladó családi ház

Somogymeggyes

14 M Ft
3 szoba
86 m2