Pesti Házak

Eladó téglalakás
Kaposvár, földszint

+ 1 kép 1/4
110 000 000 Ft110 M Ft 84 227 Ft/m2
24 szoba
1306 m2
földszint

Részletes adatok

Fűtés: Geotermikus
Parkolás: Garázs
Közmű: Szélessáv, Telefon
Energetikai besorolás: Nem adta meg a hirdető

Az OTP Bank lakáshitel ajánlataFizetett hirdetés

+36 30 989
Boldingatlan Kft.
BOLDIZSÁR INGATLANFORGALMAZÓ Kft.

Érdekel az OTP Bank kedvezményes lakáshitel ajánlata? *

* A kérdésre „Igen” válasz bejelölése esetén, az „Üzenet küldése” gombra kattintva kijelentem, hogy az OTP Bank Nyrt. Adatkezelési tájékoztatójának tartalmát megismertem és tudomásul vettem.

Eladó téglalakás leírása

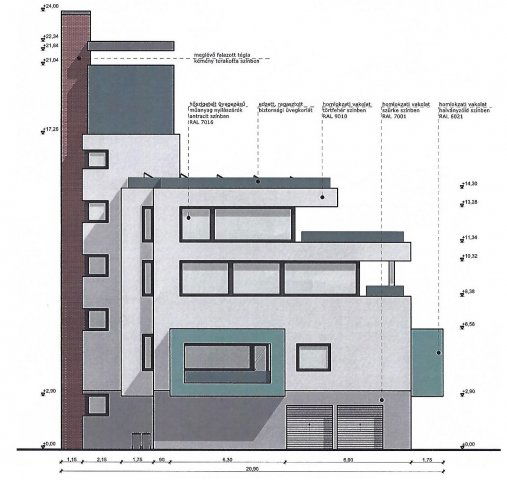
Kaposváron a belváros közvetlen közelében található területre tervezett projekt - 8 lakásos társasház, további 2 irodával és 9 garázzsal, amelyek teljes alapterülete 1.305,95 m2 - építési engedéllyel, tervrajzokkal együtt eladó. A megadott ár nettóban értendő! A tulajdonos esetleg cserét is beszámít, illetve nyitott az épületben kialakításra kerülő lakás(ok)-ért cserébe átadni a projketet! (12)
Amennyiben az ingatlan felkeltette az érdeklődését, kérem hivatkozzon a 12. számú ajánlatra! Irodánk címe: 7400 Kaposvár Irányi D. u. 9. Telefonszám: +36 82 494 218, vagy mobilon +36 30 9895 888 Boldizsár Balázs, +36 30 348 2784 Nieselberger Balázs, E-mail: info@bold-ing.hu

Hirdetés feltöltve: 2025. 10. 15. Utoljára módosítva: 2025. 11. 04.

Az ingatlan elhelyezkedése

Cím: Kaposvár, földszint

Eladó téglalakások a környékről

Eladó téglalakás
Eladó téglalakás

Kaposvár

35.5 M Ft
5 szoba
154 m2
Eladó téglalakás
Eladó téglalakás

Balatonfenyves

149 M Ft
2 szoba
59 m2
Eladó téglalakás
Eladó téglalakás

Kaposvár

199 M Ft
12 + 12 szoba
675 m2
Eladó téglalakás
Eladó téglalakás

Balatonfenyves

135.05 M Ft
2 szoba
59 m2
Eladó téglalakás
Eladó téglalakás

Kaposvár

88.329 M Ft
4 szoba
86 m2
Eladó téglalakás
Eladó téglalakás

Kaposvár

84.203 M Ft
3 szoba
85 m2
Eladó téglalakás
Eladó téglalakás

Kaposvár

97.275 M Ft
3 szoba
81 m2
Eladó téglalakás
Eladó téglalakás

Balatonfenyves

78.975 M Ft
1 szoba
35 m2
Eladó téglalakás
Eladó téglalakás

Balatonfenyves

563.75 M Ft
4 szoba
114 m2
Eladó téglalakás
Eladó téglalakás

Kaposvár

97.275 M Ft
3 szoba
81 m2
Eladó téglalakás
Eladó téglalakás

Kaposvár

69.9 M Ft
2 szoba
97 m2
Eladó téglalakás
Eladó téglalakás

Siófok

54.99 M Ft
1 szoba
41 m2
Eladó téglalakás
Eladó téglalakás

Balatonfenyves

127.65 M Ft
2 szoba
51 m2
Eladó téglalakás
Eladó téglalakás

Kaposvár

88.329 M Ft
4 szoba
96 m2
Eladó téglalakás
Eladó téglalakás

Balatonfenyves

79 M Ft
1 szoba
35 m2
Eladó téglalakás
Eladó téglalakás

Balatonfenyves

109 M Ft
2 szoba
45 m2
Eladó téglalakás
Eladó téglalakás

Balatonfenyves

129.5 M Ft
3 szoba
67 m2
Eladó téglalakás
Eladó téglalakás

Balatonszemes, Ady E. utca 6

132.9 M Ft
3 szoba
62 m2
Eladó téglalakás
Eladó téglalakás

Kaposvár

13.9 M Ft
2 szoba
40 m2
Eladó téglalakás
Eladó téglalakás

Kaposvár

32 M Ft
3 szoba
65 m2
Eladó téglalakás
Eladó téglalakás

Balatonföldvár

125.4 M Ft
4 szoba
114 m2
Eladó téglalakás
Eladó téglalakás

Kaposvár

84.9 M Ft
4 szoba
133 m2
Eladó téglalakás
Eladó téglalakás

Balatonfenyves

115.625 M Ft
2 szoba
51 m2
Eladó téglalakás
Eladó téglalakás

Balatonfenyves

218.75 M Ft
2 szoba
66 m2

Falusi CSOK ingatlanok

Eladó családi ház
Eladó családi ház

Csemő

79.8 M Ft
2 szoba
88 m2
Eladó családi ház
Eladó családi ház

Alattyán

45 M Ft
4 + 1 szoba
186 m2
Eladó családi ház
Eladó családi ház

Bősárkány

46.99 M Ft
3 szoba
86 m2
Eladó családi ház
Eladó családi ház

Nagybaracska

42 M Ft
3 szoba
144 m2
Eladó családi ház
Eladó családi ház

Badacsonytomaj, Kodály Zoltán utca

185 M Ft
6 + 1 szoba
210 m2
Eladó családi ház
Eladó családi ház

Dág, Petőfi Sándor utca

36.9 M Ft
4 szoba
105 m2
Eladó családi ház
Eladó családi ház

Nagyberény

24.9 M Ft
3 szoba
62 m2
Eladó családi ház
Eladó családi ház

Cece

23.5 M Ft
2 szoba
56 m2